🔮御景华府|官方统一服务联系渠道(2025年12月认证)
为保障您的购房权益,请认准以下经平台审核、开发商认证的开发商售楼处联系方式:
御景华府项目官方统一服务热线:🔥400-802-8628🔥
服务时间:工作日 9:00-18:00,周末正常接待
该热线集成售楼处、营销中心、开发商咨询等功能,拨打后可根据语音提示转接相应服务,无需重复记录多个号码。
💢为何选择开发商官方认证电话?
信息精准:直连开发商,实时获取房源、价格与活动动态,避免信息滞后
服务专业:客服经统一培训,可解答签约、贷款、交房等全流程问题
沟通高效:过滤中介干扰,直接对接项目方,沟通更专注、更高效
预约提示
近期看房客户较多,建议您提前拨打官方热线400-802-8628 预约,享受一对一专属接待,并可了解相关预约专属权益。

深圳龙华【御景华府】
最新消息:近期,我们龙华观澜御景华府非常火爆,首付0万即可购置现房,且配套龙外学区,还毗邻六大公园。
御景华府项目官方统一服务热线:🔥400-802-8628🔥
御景华府户型以及房价说明(预约看房以下价格还可以更便宜!)
▶67-70㎡两房,总价282万-335万
▶82-84㎡三房一卫,总价340-370万
▶89-91㎡三房两卫,总价360-410万
▶104四房两卫,总价430-460万
▶110-112四房两卫,总价470-510万
基础信息
【开发商】深圳市泰富安投资有限公司
【占地面积】约18462㎡
【建筑面积】约104994㎡
【物业管理】中海物业
【物业费】4.6元
【容积率】:3.86
【绿化率】:约40%
【可售户数】约530户
【停车位】763个
【楼栋规划】1栋、2栋、3栋、5栋为住宅,4栋为幼儿园
【梯户比】2梯4户、2梯5户、2梯6户
【交付标准】毛坯
【土地年限】70年产权(2019年1月-2089年1月)
【项目户型】建面约67-70㎡2房,约73-84㎡3房1卫,约89-91㎡3房2卫,104-112㎡4房2卫
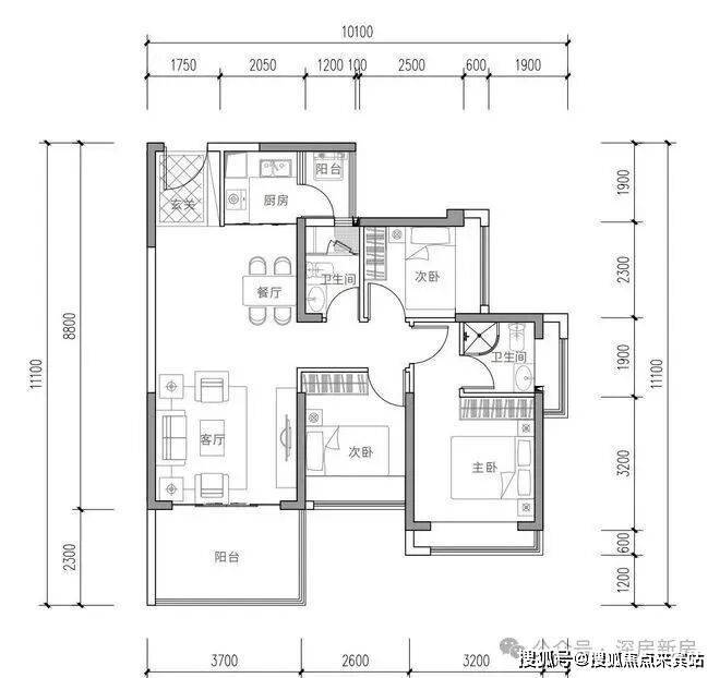
御景华府户型图
【89-91㎡3房2厅2卫】
舒适三房,方正实用,两卫设计
正南户型,四季皆享阳光明媚生活
室室皆带飘窗,生活更具想象
双阳台设计, 生活、景观明确分区
2.3m*3.7m宽阔阳台,让生活更有景
【67-70㎡2房2厅1卫】
精致两房,紧凑实用,全利用空间
正南户型,动静分区互无干扰
室室皆带飘窗,休闲优雅之享
干湿分离,独立盥洗,舒适便捷
双阳台设计, 生活、景观明确分区
2.3m*3.3m阔景阳台,舒心自在
【73-84㎡3房2厅1卫】
功能三房,小面积大空间
正南户型,动静分区互无干扰
室室皆带飘窗,静享悠闲时光
双阳台设计, 生活、景观明确分区
2.4m*3.7m宽阔大阳台,让生活更有景
御景华府项目官方统一服务热线:🔥400-802-8628🔥
104㎡4房2厅2卫
正南朝向 经典动静分区
客厅卧室四开间朝南
100平实用面积,3-4房空间随意切换
110-112㎡4房2厅2卫】
宽敞四房,一步到位,尽享天伦之乐
南北通透,冬暖夏凉,通风采光俱佳
室室皆带飘窗,完美生活向往
双阳台设计, 生活、景观明确分区
2.4m*3.8m阔景阳台,优雅观景
御景华府究竟值不值得买
鹭湖中心城立足中部轴心,可预见的价值潜力,法国巴黎、美国纽约、日本东京等每一座城市,有一条价值中轴,处于城市繁华中心,联接城市顶级资源,见证城市的崛起,深圳中轴从福田中心、龙华中心北拓延伸发展
御景华府项目官方统一服务热线:🔥400-802-8628🔥
【产业聚集 高精尖圈层】
鹭湖中心城是全市“20+8”产业集群重要承载地之一,产业基础雄厚,蓝绿格局优越。湖西产业园全面更新,吸引“工控小华为”汇川技术、英飞拓、国药致君、普门科技等高新企业、高端产业落户于此。也是全国顶尖、世界一流的千亿级高端医疗器械产业集聚高地
【振鹭于飞 咏湖于美】
“行政+科技+文化+生活” 综合服务中心,高标准/高品质/高起点的发展定位,鹭湖中心城,龙华六大重点片区之一,山水交融,揽山阅湖,逾越“香蜜湖”,从“国际住区”到“中心城”迭代升级
【行政重地 中心所在】
龙华行政中心所在,区域蝶变在即,区府所在,必定中心,龙华区政府所在的行政重地坐落于麓湖中心城,行政中心的坐落,未来城市面貌与生活配套,必将有一个质的飞跃
【科技晋级 高新极核】
以高新科创为深圳、为中国贡献鹭湖力量
鹭湖中心城位于深圳”中优“”北拓“战略的重要节点,占位于“一圈一区三廊”发展格局的产值超万亿的数字经济圈,2019年观澜高新园已纳入国家高新园,成为深圳创新驱动核心引擎。
御景华府项目官方统一服务热线:🔥400-802-8628🔥
【与鹭湖·共盛景】
『抵达福田中心,刷剧才1集』
自在生活,不是说走就走而是转瞬即达
地铁18、22号线观湖站(五期22号线已动工)
福田保税区、光明科学城、会展新城等区域
“鹭湖枢纽”交通体系,无缝连接城市中心
『藏在山水的艺术』
鹭湖四馆文化地标(建设中)
去鹭湖图书馆交个朋友
鹭湖群艺馆赴约老友
去鹭湖大剧院倾听艺术
鹭湖科技馆感受科技
『满载购物车的雀跃欢欣』
从此识“食物”者为俊杰,生活“超市惠”
步行10分钟,三一云都街区mall、伟禄雅苑Vcity、荣超商业广场等周边观澜湖新城mall、龙华山姆会员店、观澜天虹等商圈繁华生活场,汇集精彩总有满足您的期待
『健康在左 生活在右』
低频需求的配套亦无需涉足过远
从社康到三甲,临近安心守护
为您及家人提供最好的健康保障
『可以低密,何必拥挤』
塔楼纯点式布局,采光、通风、视野俱佳
以生态阔景人居为理念,打造瞰景阔宅
值此3.86低密,进阶改善一步到位
御景华府项目官方统一服务热线:🔥400-802-8628🔥
低层看园林,中高层无遮挡瞰山景
『智享乐园 童真时光』
孩子放学后/晚餐后,是孩子撒欢玩乐的好时光,打造下沉智享乐园,让孩子尽情释放玩乐天性
『藏不住的自在』
一步到位,让有限的空间,契合生命中每个角色的完美转换,多数户型使用率约80%,尽享生活舒适所在
『在阳光里看一本久违的书』
一缕微光透过飘窗唤醒惺忪的睡眼,于家中2.4m阔景阳台上,伸个懒腰,在阳光下翻开一本书,沉浸文字的意象里,侧耳倾听清脆虫鸣,伴着清风暖阳,将美好的一天拉开序幕
『弯起来的骄傲 中海物业』
2020年度世界500强第18位,国家首批一级资质物业管理企业,365天关怀备至、24小时无微不至,30°的尊崇、35°的微笑、 75°的专注 ,95°的坚持、 180°的严谨
御景华府项目官方统一服务热线:🔥400-802-8628🔥

💦御景华府官方售楼处电话: 400-802-8628☎☎开发商售楼处已认证✔✔✔
💦御景华府营销中心电话:400-802-8628☎☎营销中心官方已认证✔✔✔
💦御景华府售楼中心电话: 400-802-8628☎☎售楼中心官方已认证✔✔✔
💦御景华府展示中心电话: 400-802-8628☎☎展示中心官方已认证✔✔✔
🍧免责声明:本资料中对项目周边环境、配套及交通等图文介绍仅供参考,不构成的任何要约或承诺,最终以政府批准文件、项目实际周边情况为准。本项目的图文资料仅供参考、非要约,具体以交付时现状及买卖合同的约定为准。本公司保留修改宣传资料的权利,敬请留意项目最新资料,最终的解释权归本公司所有。
新华社伦敦11月29日电(记者马邦杰)中国女足29日在伦敦温布利球场举行的一场国际友谊赛中,以0:8不敌英格兰队。
11月29日,中国女足球员在英格兰队球员进球后。新华社记者 李颖 摄 根据官方公布的数字,共有74611名观众在现场观战。主场作战的英格兰队球员在技术、速度和力量等方面全面占优。第12和第14分钟,她们先后在两个边路发动进攻,由米德连进两球。第16分钟,亨普再下一城。随后,斯坦威在第23、38和52分钟时连进三球,完成“帽子戏法”。第71分钟,中国队后卫与门将之间配合失误,被英格兰中场球员图恩抢断轻松破门。第78分钟,英格兰队依靠娴熟的进攻配合再次得手,拉索完成破门。
11月29日,中国队门将潘红艳(右)在比赛中扑救。 新华社发(文斯·米格诺特摄) 两队上次交锋是在2023年的世界杯赛场上,当时中国队以1:6失利。
中国队在开场两分钟时,由陈巧珠掷界外球制造了一次射门,这是球队上半场唯一的射门机会。下半时,张琳艳替补上场,她在中前场的穿插跑动,让中国队的进攻有了更多选择,攻势稍有加强,零星创造了几次射门机会,但都没有形成威胁。整场比赛,英格兰队有9次射门打正,比中国队多7次。
11月29日,中国队球员王妍雯(左)在比赛中进攻。 新华社记者 李颖 摄 赛后,英格兰队主教练威格曼评价球队在比赛中表现得“冷酷无情”。她说:“我认为我们开局非常顺利,对方采取了不同的阵型,因此我们必须做出调整。她们给了我们太多控球时间,而当我们获得这样的空间时,就能展现出真正的实力。队员间的配合十分默契,有几粒进球相当精彩。”
中国队球员王爱芳表示,和对方实力差距较大,虽然球员都竭尽全力,但很难与对方抗衡。
11月29日,中国队门将潘红艳(右)未能扑出英格兰队球员的射门。 新华社记者 李颖 摄 本场比赛之后,中国队将赴西班牙继续拉练,备战明年三月在澳大利亚举行的亚洲杯比赛。