深圳玖玖颂阁售楼处电话:400-166-9557【售楼中心】
深圳玖玖颂阁营销中心电话:400-166-9557【营销中心】
提前预约售楼处看房,可享受线上预约折扣,一对一专属置业顾问服务。
深圳玖玖颂阁怎么样?展示中心,优缺点?怎么样?好不好?均价多少?附近有什么学校?楼盘详情介绍;包含售楼处电话、一平多少钱、物业费、地址、学校、户型图、交楼时间、区位优势、交通、周边商业配套等楼盘详细资料,请拨打售楼处电话400-166-9557,销售会为您详细介绍。
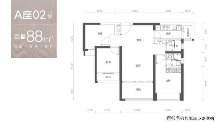
玖玖颂阁项目位于宝安区新安片区,占位前海黄金圈内环,享受宝中醇熟配套。项目周边13所公园环绕,地铁12号线上川站与15号线(规划中)流塘站。项目在售建面89-133㎡三至四房,全南向板楼设计,通风采光佳;建面89㎡三房两厅两卫,人生第一套房不必迁就;建面128-133㎡四房两厅两卫,阔绰奢宅,三代同堂的进阶之选。

【玖玖颂阁】——前海馥心 雅奢新著区
【开发商】深圳市俊弘星实业有限公司
【项目位置】宝安区新安街道新安四路与建安一路交汇处
【总占地】约1.4万㎡
【总建面】约10.41万㎡
【可售套数】379
【推售面积段】83-90㎡3房(745万-858万);128-133㎡4房(1160万- 1245万)
【梯户比】A-C座2梯4户,D座2梯5户
【容积率】5.04
【车位数】714
【物业公司】中熙物业
【物业费】住宅6.00元/平方米·月
【产权年限】70年 (2018年-2088年)
【交楼标准】精装交付
【售楼处电话】400-166-9557
【享受千亿醇熟配套,成中央核心居住区】项目地处前海核心区域,位于城市发展动力最强劲的前海核心轴上。新安与宝中已经正式一体化,近享大湾区时代前海的超级发展红利。目前,新安片区,尤其是在沿前进路正在进行着大规模的城市更新,分布着众多城市更新项目,超千万的更新体量,其中超过400万平米的城市综合体,拥有逾100万平米的商业,周边价值腾飞在即。
占位前海黄金圈,圈定深圳一环包含:2大CBD,深圳湾CBD和前海CBD;三大总部基地:后海中心总部基地、留仙洞总部基地、深圳湾高新区总部基地;两大交通枢纽中心,7条地铁线;300家以上世界 500 强企业;深圳最具实力企业和创富能力的人才以及最高价值的资产都在圈内。
超千万旧改塑造全新城市面貌,引领片区价值跃升区域内旧改体量超过1000万㎡,项目2km内汇聚8个旧改,焕新城市面貌。近5年新安房价涨幅高达111%,最具发展潜力的片区,前景十分可期。
周边配套:
交通配套:
家门口的双地铁,半小时通达全城项目距离12号线上川站F2出口约100米;距规划中15号线(流塘站)约700米(2028年开通);北环大道、G107国道、宝安大道在侧,半小时通达全城。
深圳玖玖颂阁售楼处24小时电话:400-166-9557售楼中心
深圳玖玖颂阁售楼中心电话:400-166-9557营销中心【24小时电话】
深圳玖玖颂阁营销中心电话:400-166-9557售楼部【24小时电话】
教育配套:
家楼下两所双省一级学校,步行式上学楼下就是两所省一级、历史悠久的学校(弘雅小学20年建校史、文汇学校30年建校史),弘雅小学是宝安区“窗口型艺术特色示范学校”,文汇中学升学率排名宝安区前列。
商业配套:
全市最密集商圈,满足不同人群生活需求全深圳密度最高的商圈,其中2个高端购物中心壹方城、海雅缤纷城,驱车10分钟即达,楼下就有天虹、沃尔玛,满足日常购物逛街需求。
休闲:
公园环绕,户外休闲便利项目周边配备13大公园:流塘公园、宝安公园、碧海湾公园、西乡公园、灵芝公园、新安公园、滨海文化公园等,项目距离宝安公园直线距离仅1.5公里,距离流塘公园直线距离仅607米,出入公园环绕,宜居属性高。
户型图:
【“熙管家”全方位服务,护航品质生活】本项目由深圳市中熙物业管理有限公司进行物业服务,所服务的项目曾获深圳市住宅示范小区、南山区住宅示范小区等荣誉,同时在管项目达十几个,均在深圳、东莞两地,深谙本土客户的需求,设立“栋管家”一站式服务机制,经过十几年的运营,培养了一批具有丰富管理经验的“熙管家”,为业主提供全方位贴心服务。
【整体围合式布局,外立面打造现代化品质美学】采用围合式布局,接续中国传统建筑布局精髓,强调建筑围绕中心环境而设计,从而让景观共享最大化,实现户户有景的均好布局,不仅通风、采光效果好之外,楼间距也得以拉大,私密性也得到了更好的保护;更重要的是,围合出的园林,将可打造更多样的立体景观空间。

深圳玖玖颂阁
深圳玖玖颂阁开发商售楼处电话:400-166-9557售楼中心(售楼部电话)
深圳玖玖颂阁营销中心电话:400-166-9557销售中心
欢迎来电咨询楼盘、看房请提前预约,电话预约看房享受专属优惠折扣
深圳玖玖颂阁营销中心电话:400-166-9557销售中心有多少栋,几梯几户,小区有多少户人家,容积率多少,总高有多少层,交楼时间,户型有那些,价格多少、有哪些折扣、离地铁近吗,哪个地铁口,是带什么学位?售楼处电话,营销中心电话,售楼处在哪里?在哪个位置,营销中心在哪里?
免责声明:以上所发布的相关介绍详情仅供参考!以上内容图片部分来自网络,如涉及版权问题请及时联系本人删除。