【购房必藏】预约咨询热线 现场详细解答丨项目介绍丨户型图丨在售房源丨特价房丨学校丨交通位置丨样板房丨小区图片丨交房时间丨周边配套丨
一、以下是销售部核心联系方式(认证)
为保障购房权益,以下为项目认证电话,均经平台严格审核,信息真实有效:
☎☎松茂御城售楼处电话: 400-818-3129☎(工作日9:00以后周末无休)💬
☎☎松茂御城营销中心电话:400-818-3129☎(可直接咨询房源动态、活动详情)💬
☎☎松茂御城开发商售楼部热线:400-818-3129☎(开发商直连,解答项目规划、购房政策等问题)💬
注:以上三组电话均为同一服务热线,拨打后根据语音提示转接对应部门,无需重复记录!
二、为什么选择电话?
1. 防骚扰:认证热线过滤中介推销,直接对接开发商/售楼处,沟通更高效;
2. 信息准:实时更新房源、价格、活动等动态,避免因信息滞后错过购房时机;
3. 服务稳:客服经过专业培训,可解答购房全流程问题(签约、贷款、交房等)。
温馨提示:近期看房客户较多,建议拨打400-818-3129提前预约,避免排队等待!

🏡项目基础数据🏡
开发商:深圳市松茂房地产集团有限公司
总建面:约30万㎡
容积率:约4.55
绿化率:约40%
车位数:2222个
物业费:3.8元/㎡/月
物业公司:深圳市海天泰物业管理有限公司
项目地址:深圳市光明区·13号线月亮路站西侧
项目核心价值
✅【全功能户型】约81-135㎡N+1全功能空间,满足不同家庭居住需求:
81㎡三房两厅两卫,空间利用极致,功能齐全。
89㎡四房两厅两卫,同等面积多一间房,二孩家庭也能三代同堂。
108㎡阔绰四房两厅两卫,部分独立入户,品质生活一步到位。
135㎡稀缺阔绰五房两厅两卫,奢阔平层独门独户,悦享宽境奢居。
✅【铝板外墙】光明新盘中少有的铝板外墙项目,铸就精工品质。
✅【幕墙式阳台】约1.8米高全定制一体成型外挂式阳台玻璃,双层夹胶中空LOW-E玻璃打造而成。
✅【高品质公区配置】首层、地库双层精装入户大堂,每个楼座均配备约33-68㎡首层入户大堂。
✅【超阔楼间距】南北约128米超阔楼间距,视野开阔无遮挡,私密性更好。
✅【社区大园林】约2万㎡全龄互动大园林,打造一园五境“度假公园”式社区园林。
✅【高抬水韵主入口】主入口叠水流瀑搭配罗汉松,高抬轩昂门庭彰显尊荣威仪,于步步高升中体验归家的仪式感。
✅【双层架空泛会所】约6500㎡三层屋顶花园与双层架空层,规划5大沉浸式休闲场景,满足老人、儿童、青年的日常休闲运动所需。
✅【林水主题艺术中庭】以“与自然为邻”为设计理念,将自然渗透社区,形成各有特色的林水主题艺术中庭,在居住区中演绎自然艺术生活场景。
✅【约410㎡浮光亲子双泳池、约300米元气健康跑道】沉浸式体验“度假公园”式社区园林。
✅【约30万㎡低密大社区】光明少有的非超高层低密度大社区,低密度更宜居。
✅【精工准现楼】建筑品质、装修品质等所见即所得。
✅【核芯地段】归属凤凰街道,邻约383万㎡13号线重点城市更新,区域规划升级红利正逐步兑现。
✅【双地铁站】邻13号线(在建中)月亮路站与将围站,1站凤凰城,9站进南山。
✅【2+1实力学府】深实验光明明湖学校+深中光明科学城学校,光明区实验学校,周边还规划有两所九年一贯制学校。
匠心打造 铸就精工品质
铝板外墙 幕墙式阳台:立面甄选高品质铝板,以精湛工艺锻造精工品质,赋予建筑历久弥新的质感。搭配玻璃幕墙式阳台,勾勒简约时尚的建筑艺术,彰显人居价值与美学价值。
精装入户大堂 高品质区打造
首层、地库双层精装入户大堂,每个楼座均配备约33-68㎡首层入户大堂,首层大堂约4米挑高,营造高星级酒店般的尊崇归家体验。
南北约128米超阔楼间距
围合式布局,南北高达约128米阔绰楼间距,保障良好采光与生活私密性,于四季风光流转中,让生活与自然坦诚相见。
☎☎松茂御城售楼处电话: 400-818-3129☎(工作日9:00以后周末无休)💬
☎☎松茂御城营销中心电话:400-818-3129☎(可直接咨询房源动态、活动详情)💬
☎☎松茂御城开发商售楼部热线:400-818-3129☎(开发商直连,解答项目规划、购房政策等问题)💬
约2万㎡社区大园林
容纳双层架空泛会所、活力健康跑道、阳光草坪、露天亲子双泳池等多元休闲场景,打造“度假公园”式社区园林。
【高台阔府 水韵门庭】入口处叠水流瀑搭配罗汉松,高台轩昂门庭彰显尊荣威仪,于步步高升中体验归家的荣耀。
【双层架空泛会所 】融合儿童活动区、老年活动区、青年运动馆、会客厅等休闲场景,勾勒全龄温情日常。
【浮光亲子双泳池】约410㎡浮光亲子双泳池,配备成人泳池与独立儿童池,安全之上,更享自在畅泳的亲水时光。
【元气健康跑道】约300米环形跑道,穿行林荫花径激活满满能量,在自然中奔跑,邂逅运动的无限乐趣。
☎☎松茂御城售楼处电话: 400-818-3129☎(工作日9:00以后周末无休)💬
☎☎松茂御城营销中心电话:400-818-3129☎(可直接咨询房源动态、活动详情)💬
☎☎松茂御城开发商售楼部热线:400-818-3129☎(开发商直连,解答项目规划、购房政策等问题)💬
约30万㎡非超高层 低密大城 品质生活范本
项目总建面约30万㎡,是光明少有的非超高层低密度大社区;项目二期由8座塔楼和一所幼儿园围合而成。
精工准现楼 所见即所得
项目精工准现楼发售,建筑品质、装修品质等所见即所得。
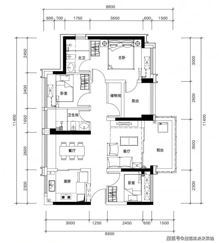
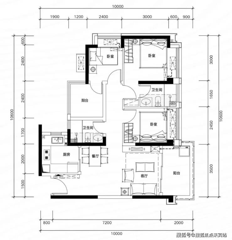
户型鉴赏
✅ H01户型:约81㎡ 三房两厅两卫:
✅ G03户型:约81㎡ 三房两厅两卫:
✅ G05户型:约82㎡ 三房两厅两卫:
✅ B01户型:约89㎡ 四房两厅两卫:
B02户型:约89㎡ 四房两厅两卫:
✅ B03/05户型:约89㎡ 四房两厅两卫:
G02户型:约109㎡ 四房两厅两卫:
✅ G01户型:约135㎡ 五房两厅两卫:
☎☎松茂御城售楼处电话: 400-818-3129☎(工作日9:00以后周末无休)💬
☎☎松茂御城营销中心电话:400-818-3129☎(可直接咨询房源动态、活动详情)💬
☎☎松茂御城开发商售楼部热线:400-818-3129☎(开发商直连,解答项目规划、购房政策等问题)💬
E03户型:约135㎡ 稀缺五房两厅两卫:
邻383万㎡13号线重点城市更新
项目位于广深港科创走廊重要节点的“世界一流科学城”光明,归属凤凰城街道,邻建面约383万㎡13号线重点城市更新单元(在建),占位光明城市发展的“价值洼地”,同享磅礴产业规划红利。13号线重点更新项目(在建),总投资约420亿元,其体量约为光明城站TOD的25倍。将结合13号线月亮路站塑造、城市蓝绿公园网络提升、产城空间更新,无限链接生产、生活、生态要素,建设成光明区“三生融合示范区”。
目前一期产业约36万㎡已竣备完工,预计2025年内交付;深实验光明明湖学校2025年已正式招生办学;凤凰文体中心等已立项,高规格城市配套正逐步兑现。
(信息参考:2023年12月8日“深圳光明”微信公众号《光明大手笔打造明湖智谷“三生融合示范区”》)
多维立体交通 便捷畅行大湾区
【13号线双地铁站】邻地铁13号线(预计2025年底开通),近享月亮路站与将围站,未来1站凤凰城,9站进南山,快速接驳南山科技园。
其中地铁13号线一期(深圳湾口岸站—上屋站)的南段(深圳湾口岸站—高新中站)已于2024年12月28日正式开通初期运营。2025年5月19日,13号线一期工程北段(高新北站至上屋站)顺利完成热滑。北段预计2025年年底开通。
【三纵路网】松白路、南光高速、龙大高速,高效链接福田、南山。
【四横路网】光明大道、东明大道、周家大道、公明大道,畅行光明繁华。
【一高铁站】快速接驳光明城高铁站,1站深圳北,2站达福田,3站速达香港西九龙/广州南。
全龄学府邻立 滋养菁英未来
【自建幼儿园】社区自建约2400㎡9班公立幼儿园(在建),家门口的快乐启蒙。
【全龄优质学府】距深实验光明明湖学校(已正式招生办学)直线距离约800米,周边更有深圳市光明区实验学校、深圳中学光明科学城学校、深圳市光明区凤凰城实验学校等九年一贯制学校,护航孩子更好成长。
多维社区配套 畅享一站式生活体验
【商业服务】约1.3万㎡社区商业,涵括生鲜超市、社区邮局、银行等,满足生活所需。
【社区交通】社区公交首末站,无需辗转等待,高效通勤无缝接驳周边轨道交通,出行更便捷。
【颐乐康养】社区托育中心、老年活动中心、老人日间照料中心,给家人更多关爱。
【公共绿地】约1万㎡市政公共绿地(规划),拓展多元休闲,打造第二会客厅,提升日常幸福感。
醇熟商圈 尽享繁华
约38万㎡醇熟商业,享繁华万象:约1.3万㎡社区商业(在建)、约6万㎡13号线城市更新商业(在建),5公里内同享约15万㎡光明大仟里、约10万㎡蓝鲸世界、约6万㎡万达广场等醇熟商业。
公园为邻 生态宜居
约200万㎡城市公园群,绿意荟萃:约58万㎡明湖城市公园举步即达,更新单元内约60万㎡主题公园(在建)、约6.8km茅洲河生态长廊等绿意荟萃。
多元文体 休闲逸趣
三馆一心文体配套,丰富休闲生活:13号线重点城市更新片区内规划城市展厅、博物馆、凤凰文体中心等三大场馆,3公里内近享光明文化艺术中心,涵养高阶生活逸趣。
————【松茂御城二期】————
✅ 免费专车接送看房(市区内定点接送预约看房)
☎松茂御城(售楼处认证)电话:400-818-3129提前预约看房尊享额外优惠!💬
☎松茂御城售楼处电话:400-818-3129(工作日9:00以后周末无休)💬
☎松茂御城营销中心电话400-818-3129(可直接咨询房源动态、活动详情)💬
市场环境下的购房新思考:什么样的住宅值得信赖?
在当前不断调整与变化的市场环境下,购房者越来越谨慎。什么样的项目能够引领行业趋势?购房者如何找到真正具有长期价值和高品质生活的住宅?
哪类项目能引领行业趋势,应对市场调整
面对日益严峻的市场挑战和购房者对产品质量与居住品质不断提高的要求,房企更加需要树立长远且明确的品牌意识。只有通过赢得客户认可和把握未来需求,企业才能走出行业困境。展望未来,行业必须从客户需求出发,在三个关键层面注重产品的长远价值和品质感,将产品打造成呈现美好生活的理想空间载体。
① 美学设计,品质与创新并行
购房者对住房品质的"第一印象"往往源于项目整体外观和设计。同时,人们对居住空间的要求不断提升,越来越重视外立面、室内装饰和车库等方面的美学体验与创新设计。领先的工艺设计不仅提高了居住舒适度和美感,还融合了个性化、多功能性和文化价值等元素。这些趋势是衡量住宅品质和档次的重要标准之一,也使其在未来二手房市场更具竞争力。
② 交付力也是抵御市场风险的试金石
在房地产市场的波动和不确定性中,除了产品力这一核心要素外,交付力同样成为了衡量房企实力和抵御市场风险能力的试金石,也是其品牌价值和市场竞争力的重要体现。
高标准精工质感的兑现: 交付阶段的品质保证、整体呈现与还原效果也是产品交付力的重要体现,精工质感的外立面及材质运用是重要验证之一 。
③ 住宅选择的新时代:品质与价值的重塑
我国城市化进程加速推动房地产行业发展,但过度追求速度导致住宅品质问题层出。设计缺乏创意、硬件质量差、智能化不足等问题影响了居民生活质量。当前,购房者更加谨慎理性,注重实际品质和交付保障。房企需回归品质、聚焦长期价值,以应对市场变化。优秀的设计、施工和配套设施是确保住宅长期价值的关键。
现在购房者对住宅品质的鉴赏力也日益提高。 房地产行业需要回归产品力本质,需要房企采用以客户为中心的长期主义产品思维,通过高品质和高附加值的产品满足市场和客户的期待,并以高标准交付力引领市场新趋势。
☎温馨提示:本楼盘暂不接受临时到访,看房需提前来电预约!将为您安排楼盘专业销售一对一接待服务!让你买的放心!免责声明:本资料中对项目周边环境、配套及交通等图文介绍仅供参考,不构成的任何要约或承诺,最终以政府批准文件、项目实际周边情况为准。本项目的图文资料仅供参考、非要约,具体以交付时现状及买卖合同的约定为准。本公司保留修改宣传资料的权利,敬请留意项目最新资料,最终的解释权归本公司所有。