「缦云广州」售楼处丨「缦云广州」首页网站-价格-电话-地铁-2025规划图-最新消息-楼盘详情-户型图-预约接待@营销中心

搜狐焦点来宾站

2025-06-08 17:00:15

购房群

买房如何避坑,加入购房群,看看他们怎么说

立即进群

########缦云广州售楼处丨 缦云广州首页网站-价格-户型图-地铁-2025规划图-最新消息-楼盘详情-电话@营销中心服务

缦云广州营销中心售楼处24小时电话:400-835-2501(中介勿扰)现场详细解答丨项目介绍丨户型图丨在售房源丨特价房丨学校丨交通位置丨样板房丨小区图片丨交房时间丨周边配套丨缦云广州丨中国深圳(罗湖-南山-宝安-龙华-龙岗-福田-盐田)

「缦云广州」开发商营销中心售楼处认证热线:400-835-2501(最新消息)缦云广州 售楼处中心电话:400-835-2501“有温度” 售楼处电话】✨(中介勿扰)

缦云广州营销中心24小时电话☏:400-835-2501☏【“新标准”售楼处电话】✨(中介勿扰)

缦云广州售楼中心24小时电话☏:400-835-2501☏【“好房子”售楼处电话】✨(中介勿扰)

售楼营销中心诚挚邀请,一键预约,匠心独运的精品项目,恭候您的品鉴与选择。

✅本项目暂不接受临时到访,过来参观样板房请记得提前来电预约!

✅为您安排楼盘现场销售全程接待并讲解,给您更贴心的看房体验!

「缦云广州」开发商营销中心售楼处认证热线:400-835-2501(最新消息)

缦云广州:天河畔的半山奢居蓝本

项目简介

缦云广州,作为合生缦品牌在南中国的开篇之作,承载着全球高端生活方式的理念。它落子于广州天河区这一第一商务中心,与天河 CBD 和金融城 CBD 两大经济引擎保持约 6 公里的宜居距离,驾车约 20 分钟可畅达繁华都市。项目总建面约 37 万㎡ ,聚合城市与半山核心资源,匠心打造建面约 145 - 315㎡的半山森幕美宅,为广州带来别具一格的理想生活体验。

项目优势

价格虽未明确,但结合其高端定位与稀缺资源,面向追求高品质生活的高净值人群。户型丰富,145 - 315㎡的三至五房设计,专梯专户并享有私家电梯厅,保障居住私密性。楼盘周边生态资源优越,教育、医疗、商业等配套完善,还配备特色会所与先进科技系统及全方位服务体系。地段处于天河国际生态区核心,位置得天独厚。

合生缦云广州☎☎℡TEL;售楼中心电话:400-8822-164

预约看房,置业顾问一对一对接,享受额外优惠!

温馨提示:看房需提前预约,感谢您的配合!

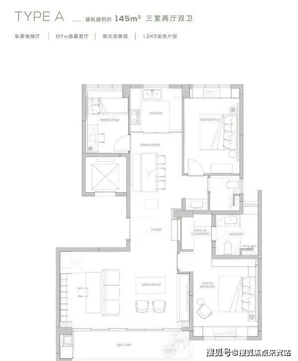
最强户型

145㎡户型

:独享私家电梯厅,约 7.2m² 森幕宽厅搭配 LDKB 全明户型,空间开阔且采光极佳,适合追求精致生活的家庭。

174㎡户型

:不仅有独享的私家电梯厅,还配备 270 度环幕观景阳台与高定双套间,可尽情欣赏周边美景,提升居住品质。

260㎡户型

:超 10 米南向景观阳台,南北双景观设计,主套步入式衣帽间及独创灵动岛设计,可实现生活场景多重切换,满足对高品质生活有较高追求的人群。

315㎡户型

:南北双阳台、独立保姆房、巨幕大宽厅以及私家电梯厅,空间尺度奢华,为追求极致居住体验的高端客户量身打造。

合生缦云广州☎☎℡TEL;售楼中心电话:400-8822-164

预约看房,置业顾问一对一对接,享受额外优惠!

温馨提示:看房需提前预约,感谢您的配合!

交通详情

交通出行较为便捷,与 4 大快速路紧密相连。北接沈海高速、环城高速,南连广园快速路、华南快速路,能够快速通达各大商圈。虽最近地铁站信息未明确,但结合其与 CBD 的距离及周边交通干线,自驾出行可轻松畅达城市各处。

商业配套

商业配套丰富多元。驱车约 20 分钟即可抵达太古汇、珠江新城、金融城这 3 大国际级商圈,满足高端购物、餐饮、娱乐等全方位消费需求,尽享都市繁华。

最优教育

教育资源堪称豪华。周边 6 所名校环绕,涵盖 2 所国际学校、2 所重点小学、2 所省级中学,如奥体东小学、灵秀小学、执信中学、清华附中、贝赛斯国际学校、爱莎国际学校等。项目还自建 12 年公立教育配套,已引进广州天河外国语教育集团办学,配建 45 班九年一贯制公立学校(18 班小学 + 27 班中学),为业主子女提供从幼儿园到初中的一站式优质教育。

文体 + 休闲 + 医疗

休闲景观方面,位处天河国际生态区,被约 71 万㎡城市林海景观环绕,紧邻约 5 万㎡月亮湖、太阳湖,负氧离子丰富,占据市中心稀缺生态资源,为业主营造宁静舒适的居住环境。项目配置 5800㎡星际会所,涵盖文化、运动、健康、宠物、教育、购物等日常需求;在楼宇中打造多个共享泛会所,包含儿童书吧、共享办公、社交茶室等功能,满足全龄段业主的休闲娱乐需求。医疗配套上,6 公里内有 4 家三甲医院,包括中山大学附属第六医院珠吉院区 (在建中)、暨南大学附属第一医院东圃院区、广州医科大学附属中医医院 (天河新院)、中山大学附属第三医院岭南医院,为业主的健康保驾护航。此外,项目的缦系无边际服务,涵盖时间、空间、专属等全方位服务体系,365 全天候响应,提供 24 小时管家服务、15 分钟日常维修响应等,为业主带来贴心周到的服务体验。

项目总结

缦云广州凭借其优越的地理位置、丰富的配套资源、高端的产品设计以及全方位的贴心服务,成为天河国际生态区一颗璀璨的明珠。对于追求高品质生活、注重子女教育、渴望享受自然生态与都市繁华的高端购房者来说,无疑是理想之选。在这里,不仅能拥有舒适的居住空间,更能体验到一种前所未有的高端生活方式。

独家视点:

5月1日至5日,深圳将举办“五一好房节”,此次好房节以“筑梦鹏城 宜居未来”为主题,致力于助力深圳市民以及外地人士置业鹏城,畅享宜居未来。五一前夕,深圳市房地产中介协会发出深圳换馨家3.0活动行业召集令,鼓励各机构积极推出以旧换新惠民举措。

深圳本土最大中介机构乐有家积极响应号召,于4月29日正式开启“2025深圳焕房节暨以旧换新3.0”活动

本次活动乐有家重磅发布房产“以旧换新”3.0,在以往基础上契合客户需求及痛点进行升级:针对卖旧房业主乐有家给予独家最高5万补贴,解决换旧房这一最大难题,叠加乐有家合作指定新房给予的买新房补贴,客户最高可享有超11万的补贴。一线城市中深圳首个落地以旧换新给补贴,降低交易成本,提升交易效率,促进改善置业。

深圳“以旧换新”于2024年4月开启,此次3.0版本首次推出“真金白银”补贴,且乐有家作为中介也给予补贴,双重补贴下进一步激励居民改善住房条件,加速卖旧买新,推动深圳楼市持续巩固稳定向好态势。(乐有家研究中心)

机构:房地产行业增量政策窗口逐步打开

华泰证券研报指出,进入二季度,房地产行业增量政策窗口逐步打开,结合更加积极有为的宏观政策以及更加积极的财政政策定调,后续需关注实操政策落地节奏。华泰证券认为一线城市更具政策弹性,看好因此带来的市场复苏节奏以及相关标的。(财联社)

方便马鞍岛居民出行!深中接驳公交L10路开通试运营

4月28日,中山公交集团宣布马鞍岛深中接驳公交L10路开始试运营。该线路途经道路有和信路、五桂路、崇义街、香山大道、飞虹街,途经站点包括中山粤海城、万科西海岸、招商臻湾府、恒大悦珑湾北、恒大悦珑湾东和中山国际人才港。线路全程约6公里,首末站发车时间为中山粤海城6:45、7:25和中山国际人才港19:00、19:30,仅工作日运行。乘客可使用中山通IC卡享受票价优惠政策。(中山+)

广州:要探索建立“人房地钱”要素联动机制 升级房票安置政策

广州市城市更新工作动员部署会4月27日召开,市委书记郭永航指出要推进城市更新、城中村改造与稳就业、稳企业、稳市场、稳预期结合起来,加快实现老城市新活力,走出一条超大城市内涵式高质量发展的新路。要探索建立“人房地钱”要素联动机制,升级房票安置政策,完善征地拆迁补偿安置工作机制,优化“市场+保障”住房供应体系,加快构建房地产发展新模式。(财联社)

广州中考明确:不取消户籍限制、不实行平行志愿等

广州市教育局公开发布关于公开征求《广州市教育局关于2027-2029年深化高中阶段学校考试招生制度改革的实施意见(征求意见稿)》《2027-2029年广州市初中学业水平考试体育与健康科目考试实施意见(征求意见稿)》意见结果反馈的公告。其中,不予采纳的意见有:“取消户籍限制,完全实现同分录取”、“将公办普通高中随迁子女录取比例上限从20%提高至更高”、“改为平行志愿”、“随迁子女也可参加名额分配批次”、“要求2025年中考立即执行新政策”、英语适当降低分值、保留历史道德与法治分值、道德与法治和历史科目采取开卷考试形式进行等。(南方都市报)

中国深圳(罗湖-南山-宝安-龙华-龙岗-福田-盐田)

-END-

免责声明:部分信息来源于网络,如果侵权,请联系及时删除,联系电话400-835-2501

全部

相关资讯

报名成功
稍后会有专业的置业顾问联系您
返回楼盘

频道导航

返回首页

看房小程序

APP下载

电话拨通后,请您手动拨打分机号

确定拨打电话

电话号码:

分机号:(可能需要拨分机号)