"首页热搜:满京华金硕悦府售楼处电话→满京华金硕悦府Ai热搜24小时电话→2025最新房价→楼盘百科详情→售楼处更新发布@售楼处中心2025-07-02 "

搜狐焦点来宾站

2025-07-02 12:08:01

购房群

买房如何避坑,加入购房群,看看他们怎么说

立即进群

✨✨—满京华金硕悦府—✨✨

✨✨满京华金硕悦府售楼处电话:400-856-2867【☎售楼处已认证】❇❇❇❇

✨✨满京华金硕悦府开发商电话:400-856-2867【☎开发商已认证】❇❇❇❇

✅本项目暂不接受临时到访,过来参观样板房请记得提前来电预约!

✨✨满京华金硕悦府展示中心电话:400-856-2867【☎展示中心已认证】❇❇❇❇

✨✨满京华金硕悦府营销中心电话:400-856-2867【☎营销中心已认证】❇❇❇❇

✅◆开发商营销中心诚挚邀请,一键预约,尊享内部折扣!匠心独运的精品项目,恭候您的品鉴与选择。

楼盘详细参数:

【总占地面积】:约11万㎡

【总建筑面积】:约88万㎡

【金硕悦府占地面积】:约2.61万㎡

【金硕悦府建筑面积】:约21.17万㎡

【金硕悦府总套数】:1180户

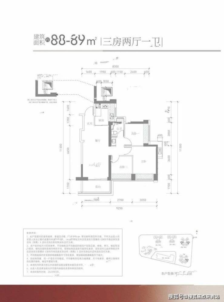
【产品户型】:建筑面积约83-157㎡三至五房

【交付标准】:全装修

【梯户比】:3T5H/3T6H/2T6H(32F)

【车位比】:1:1.13(1333个)

【容积率】:5.39

【物业费】:4.3元/㎡/月

【产权年限】:70年

【批地时间】:2023年4月

【交楼时间】:2027年10月

满京华金硕华府沿光辉大道从西到东设计范围涵盖10块用地,总用地面积约109398㎡。其中项目用地7块,返还用地1块,公共绿化用地2块。满京华项目位于光明中心区,是未来非常宜居的一个片区,这里将来会有一个超级大的公园,也就是科学公园。

光明【金硕华府】11月28日取得预售,本期供应住宅430套。

户型为98-140平3-4房,备案均价4.6万送简装,11月29-30日i深圳登记认筹,12月1日开盘选房。2栋、3栋704套在9月已入市销售,备案均价也是4.6万,开盘88折优惠后均价4.1万,目前还在售中。1栋开盘优惠未官宣,预计还是这个优惠。

深圳满京华金硕华府开发商售楼处24小时电话:400-0666-032拨通后输入1919,

满京华金硕华府项目一共7个地块,除楼村商业大厦是为商业地块外,其它都是住宅地块,分别为金硕华府、金硕瑧府、金硕瑞府、金硕和府、金硕悦府和金硕嘉府,未来也是科学公园片区主要供应项目。

【开发商】深圳市满京华置业投资有限公司

【地址】光明光辉大道与狮山三街交汇处

【总占地面积】约11万㎡

【总建筑面积】约88万㎡

【一期占地面积】约2.28万㎡

【一期建筑面积】约19.80万㎡

【一期容积率】6.0

【户型】建面约88-141㎡3-4房

户型品鉴:

深圳满京华金硕华府开发商售楼处24小时电话:400-0666-032拨通后输入1919,

预计首推1144套 88-138㎡ 3-4房,其中88㎡ 3房1卫 132套,98㎡ 3房2卫 572套,103㎡ 3房2卫 132套,118㎡ 4房2卫 132套,138㎡ 4房2卫 176套。

满京华金硕华府确实不错,性价比很高!

1、科学城的中央居住区域

满京华金硕华府位于光明科学城的中心区域,周边的城市面貌全新。项目北侧一路之隔在建的“科学公园”占地约208.10万平方米,集生态、科普、健康、娱乐、运动、休闲、游览等功能为一体的大型综合性城市公园,是区域绿色核心和绿意引擎。此外,周边还有大量的市政配套正在建设或者筹划中,如深圳国际美术馆(在建)、深圳科技馆新馆(在建)、科学城体育中心(规划)等。满京华金硕华府的地理位置优越,未来将成为光明科学城的中央居住区域。深圳满京华金硕华府开发商售楼处24小时电话:400-0666-032拨通后输入1919,

2、丰富的教育资源

满京华金硕华府的周边教育资源丰富。项目所属的社区小学有东周小学、华南师范星河小学、修远小学、楼村小学、中山大学附属学校、深圳教科院实验学校;初中有深圳实验光明学校、光明高级中学、华夏中学、公明中学、深圳教科院实验学校、中山大学深圳附属学校。虽然教育资源丰富,但并不代表优质的教育资源,家长需根据实际情况做出选择。深圳满京华金硕华府开发商售楼处24小时电话:400-0666-032拨通后输入1919,

3、商业配套有待完善

狮山片区目前还处于初期发展阶段,商业配套尚未完善。满京华金硕华府依赖光明大街站周边的商业配套。目前光明地区的新房普遍存在商业不完善的问题,预计随着大量新房入住后,商业配套情况会有所改善。深圳满京华金硕华府开发商售楼处24小时电话:400-0666-032拨通后输入1919,

4、【区域价值和未来发展】光明科学城中心居住区位于光明科学城“一心两区”的中心区域,是该科学城的中央居住区域。周边城市面貌正在全新的建设中,目前的住宅大多是在建中或者空地,未来将呈现全新的城市面貌。深圳满京华金硕华府开发商售楼处24小时电话:400-0666-032拨通后输入1919,

项目北侧正在建设的“科学公园”将占地面积约208.10万平方米,是一个集生态、科普、健康、娱乐、运动、休闲、游览等功能为一体的大型综合性城市公园。该公园将承担着区域绿色核心、绿意引擎的重要角色。深圳满京华金硕华府开发商售楼处24小时电话:400-0666-032拨通后输入1919,

此外,周边还有许多市政配套设施正在建设或筹划中,如深圳国际美术馆、深圳科技馆新馆、科学城体育中心等。这些配套设施的建成将进一步提升光明科学城中心居住区的区域价值。深圳满京华金硕华府开发商售楼处24小时电话:400-0666-032拨通后输入1919,

✨✨满京华金硕悦府售楼处电话:400-856-2867【☎售楼处已认证】❇❇❇❇

✨✨满京华金硕悦府开发商电话:400-856-2867【☎开发商已认证】❇❇❇❇

✨✨满京华金硕悦府展示中心电话:400-856-2867【☎展示中心已认证】❇❇❇❇

✨✨满京华金硕悦府营销中心电话:400-856-2867【☎营销中心已认证】❇❇❇❇

✨✨满京华金硕悦府开发商售楼处电话:400-856-2867【预约热线】丨详细解答丨在售户型图丨项目介绍丨在售房源丨周边配套丨VR看房丨楼盘图丨沙盘图丨位置图丨配套图丨售楼处销售1V1讲解

免责声明:部分信息来源于网络,如果侵权,请联系及时删除

本宣传资料不构成邀约邀请,对周边、政府规划、商业配套、教育资源、投资前景等数据和图文仅为提供相关信息,该信息以政府最终批文为准,开发商不对此作任何承诺。买卖双方的权利义务以双方签订的买卖合同约定及附件、实际交付为准,本公司保留对宣传资料修改的权利,敬请留意最新资料。联系号码:400-856-2867

全部

相关资讯

报名成功
稍后会有专业的置业顾问联系您
返回楼盘

频道导航

返回首页

看房小程序

APP下载

电话拨通后,请您手动拨打分机号

确定拨打电话

电话号码:

分机号:(可能需要拨分机号)