最近传的沸沸扬扬的深圳解除限购的消息终于落地了,不过我相信肯定有一部分朋友和我一样,内心有点嘎,这算什么解除限购,连部分区域完全解除都没有,今天有朋友就直接在说了,能不能像香港一样洒脱点,爽手一点,干嘛还要规定非核心区域的房子要一年社保呢?
深圳此次松绑简单概括就是,
1、核心区域还保持限购不变。
2,非核心区域限购从3年社保降到1年。
3,本地二胎以上家庭,可以在非核心区域再买一套房子,
4,允许企业购买住宅,只要企业年缴税满100万,公司人数10人以上即可在非核心区域购房,
5,开展“收旧换新”和“以旧换新”
很多人在说房地产已经成这个样子了。一线城市放开的速度太慢,应该全部放开。
因为房价上去了,房地产就上去了,涉及的众多相关产业也就上去了,经济也就回暖了,房地产的作用就是一人得道鸡犬升天。
取消限购政策将释放市场需求,推动房价上涨。因为更多的购房者进入市场,需求增加,房价自然会上涨。
所以对于处于龙岗片区的合正方洲来说不会有太大波动,反而可能会有房价回暖的趋势
✅ 润晖府营销中心电话:400 -835- 2501【营销中心24小时电话】
✅ 润晖府开发商售楼处咨询/预约专线 400-835-2501
✅ 看房提前1天预约可独享内部专享s特惠,价格包您满意!
✅ 团购更享折上折、赠送豪华家电!名额有限,先到先得!
✅ 安排楼盘内场销售人员接待, 让您买的放心,住的舒心!
楼盘项目全面介绍:含开盘消息、交房时间、楼盘详情、房价、户型、详情、得房率、售楼处地址、首页网站、销售中心、楼盘地址、户型图、交通、备案价、项目配套、营销中心、开发商、周边配套等详情咨询——
项目介绍
备案名称:华润·润晖府(A503-0095)
占地面积:17195.58 m
建筑面积:152771
计容建面:95015 m
产权属性:住宅
在售户型:88-109㎡3-4房
交付标准:精装修交付
容 积 率:<5.7
绿 化 率:40%
总层高:1栋32层,2栋34层,3栋32层,4栋30层,5栋32层
住宅户数:1678户 (普通商品房724户,自持租赁954户)
车 位 数:1536辆
主体竣工:2024年11月10日
物业费:4.50元/㎡·月
物业公司:润加物业服务 (深圳) 有限公司
开发企业:深圳市润明房地产有限公司
售楼处电话400-835-2501_营销中心电话400-835-2501
华润·润晖府项目,位于光明凤凰街道光侨路及侨凯路交汇处, 处于 光明城高铁 综合体范围内,与 地铁13号线 “同观路站” (建设中) 及枢纽 “光明城站” 相邻,通勤优势显而易见。
高铁通勤1站可以到达 深圳北, 2站就能到 福田; 地铁13号线(在建中)全面开通后,7站就能到 南山。
项目介绍
润晖府处于光明城高铁综合体范围内,与地铁13号线同观路站(建设中)及枢纽光明城站相邻。


项目周边空地多,想象空间大。范围内按“站城一体化”开发,将带来大量的商业、办公建筑,潜力可期。

同时,项目与光明行政、文化中心板块相连,区属的重点配套也多集中于此,既有的成熟配套应有尽有。

譬如步行可达网红公园之称的虹桥公园、光明新城公园,享光明特有的都市生态资源,靠近自然、舒畅身心;
未来乘达地铁13号线一个站即可抵达光明最为繁华的商圈之一的凤凰城商圈,涵盖已开业的光明万达广场(约6万㎡)、蓝鲸世界(约10万㎡)等大型购物中心,满足光明人高品质零售、休闲娱乐等需求;
光明文化艺术中心、书城、群众体育中心等多元文体设施也称得上唾手可得,充实不同生活场景所需。
项目主打建面约89-110㎡三至四房。

项目简介
深圳光明润辉府售楼处电话400-835-2501_营销中心电话400-835-2501华润·润曜府位于光明区凤凰街道光明城片区,光侨路与侨凯路交汇处东北侧。占地面积约1.89万㎡,规划总建筑面积约16.33万㎡。小区由四栋29层-48层住宅和一栋3层幼儿园组成
深圳光明润辉府售楼处电话400-835-2501_营销中心电话400-835-2501项目地块(A503-0096)于2022年07月05日在深圳国土资源局挂牌出让,2022年08月04日,华润置地+地铁前海国际以24.29亿+配建9000㎡自持保障租赁住房的成本获得,根据出让合同,该地块建成的普通商品住房销售均价不得高于4.89万/㎡。

配套信息
交通:轨道交通:距离13号线二期(在建)观光路站步行约300米,距离6号线支线/13号线(在建)换乘站-光明城站步行约700米。 陆路交通:项目1.5公里范围内分布有观光路、光桥路、龙大高速、深圳外环高速等主干道。

商业:旁边三块难兄难弟底商共6000余平,项目2公里范围内分布有蓝鲸世界。光明大街地铁站附近还有约4.5万㎡万达广场,约6.3万㎡星河coco city(在建)、约4.3万㎡绿地商业(在建)等。

医疗:项目距离中山大学附属第七医院2.5公里,距离深圳市中医院光明院区步行距离约1.5公里。


学校:光明的学区是按社区划分的,根据2022年秋季光明区招生学区划分,项目所属的长圳社区小学对口学校为南科大附属凤凰学校、百花实验学校、光明区外国语学校、凤凰城实验学校。初中对口学校为深圳实验光明学校、光明区高级中学、南科大附属凤凰学校、百花实验学校、光明区外国语学校、凤凰城实验学校。

文体:项目1.5公里范围内分布有光明高新园区城市广场、民心园、新城公园、麒麟山公园、虹桥公园、奶头山体育公园、光明群众体育中心。另外,光明市民广场和光明文体艺术中心距离项目也不是很远,一站地铁可达。

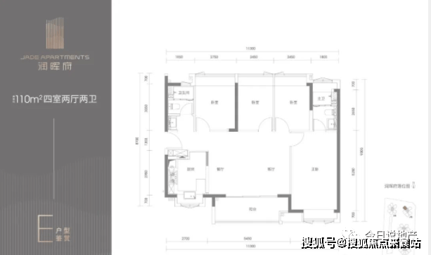
户型图:
89㎡
3房2厅2卫

89㎡
3房2厅2卫

89㎡
3房2厅2卫

110㎡
4房2厅2卫

110㎡
4房2厅2卫

✅ 润晖府营销中心电话:400 -835- 2501【营销中心24小时电话】
✅ 润晖府开发商售楼处咨询/预约专线 400-835-2501
✅ 看房提前1天预约可独享内部专享s特惠,价格包您满意!
✅ 团购更享折上折、赠送豪华家电!名额有限,先到先得!
✅ 安排楼盘内场销售人员接待, 让您买的放心,住的舒心!
楼盘项目全面介绍:含开盘消息、交房时间、楼盘详情、房价、户型、详情、得房率、售楼处地址、首页网站、销售中心、楼盘地址、户型图、交通、备案价、项目配套、营销中心、开发商、周边配套等详情咨询——
免责说明;本文中所提到项目名称均为本项目的网络本资料仅作为邀约邀请,相关内容不排除因政府相关规划、规定及开发商未能控制的原因而发生变化,本公司保留对宣传资料修改的权利,敬请留意最新资料。本资料对项目或产品的介绍,旨在提供相关信息,不意味着本公司对此作出了承诺,买卖双方的权利义务以双方签订的《商品房买卖合同》及附件等协议为准。本文部分图片来源于国际互联网,版权归原作者所有,如涉及版权等问题,请立即联系我们,我们会给予更改或相关处理。对使用本网站信息和服务所引起的后果,本网站不作任何承诺。