深圳【御景华府】开发商:400-9958-197
深圳【御景华府】售楼处电话☎:400-9958-197【已认证】
在售户型图丨项目介绍丨最新房源丨周边配套丨详细解答〢
◆开发商营销中心诚挚邀请,一键预约,尊享内部独家折扣!匠心独运的精品项目,恭候您的品鉴与选择。
售楼处电话☎:400-9958-197✅
营销中心电话☎:400-9958-197✅
✅本项目暂不接受临时到访,过来参观样板房请记得提前来电预约!
✅为您安排楼盘现场销售全程接待并讲解,给您更贴心的看房体验!
楼盘详情介绍(楼盘项目怎么样?多少钱一平?什么时候交楼?有什么户型?周边有什么学校?物业费多少?),想了解更详细楼盘资料和最新折扣价格,请拨打售楼处电话400-9958-197,销售会为您详细介绍
01
御景华府
基础资料
🔻开发商:泰富安投资有限公司
🔻地址:深圳市观盛东路与澜清三路交汇处
🔻占地:1.84万㎡
🔻建面:10.49万㎡
🔻产权:70年(19-89年)
🔻总户数:530户
🔻面积:73-84㎡2房-89-91㎡3房2卫,104-112㎡4房2卫
🔻车位比:763个
🔻梯户比:2梯4户/2梯5户/2梯6户
🔻价格:4.2-4.8万
🔻物业公司:中海物业
🔻物业管理费:4.6元/㎡
🔻容积率:5.6
🔻绿化:30%
🔻交楼时间:现楼
🔻建筑类型:住宅
🔻层高:3米
🔻使用率:80-95%
🔻楼层高:25-27-32-33层
🔻栋数:5栋
🔻水电:民水民电
🔻学校:深圳外国语龙华校区,观澜第二中学,鹭湖外国语小学,振能学校
🔻在售户型:
68-70㎡2房2卫320-340万 单价:4.7-4.9万
82-84㎡3房12卫367-390单价:4.4-4.6万
104-112㎡4房2卫440-540万单价:4.2-4.8万
2
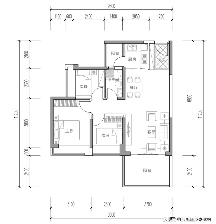
平面•户型图
1

【67-70㎡2房2厅1卫】精致两房,紧凑实用,全利用空间
正南户型,动静分区互无干扰室室皆带飘窗,休闲优雅之享
干湿分离,独立盥洗,舒适便捷双阳台设计, 生活、景观明确分区
2.3m*3.3m阔景阳台,舒心自在(以2栋一单元04户型68㎡为例

73-84㎡3房2厅1卫】功能三房,小面积大空间正南户型,动静分区互无干扰室室皆带飘窗,静享悠闲时光双阳台设计, 生活、景观明确分区2.4m*3.7m宽阔大阳台,让生活更有景(以1栋04户型82㎡为例)

89-91㎡3房2厅2卫】舒适三房,方正实用,两卫设计正南户型,四季皆享阳光明媚生活室室皆带飘窗,生活更具想象双阳台设计, 生活、景观明确分区2.3m*3.7m宽阔阳台,让生活更有景(以2栋一单元03户型89㎡为例

【104-119㎡4房2厅2卫】宽敞四房,一步到位,尽享天伦之乐南北通透,冬暖夏凉,通风采光俱佳室室皆带飘窗,完美生活向往双阳台设计, 生活、景观明确分区2.4m*3.8m阔景阳台,优雅观景(以2栋一单元01户型112㎡为例)



03
区域•地段
【无中轴 不中心】
鹭湖中心城立足中部轴心,可预见的价值潜力,法国巴黎、美国纽约、日本东京等每一座城市,有一条价值中轴,处于城市繁华中心,联接城市顶级资源,见证城市的崛起,深圳中轴从福田中心、龙华中心北拓延伸发展

【振鹭于飞 咏湖于美】
“行政+科技+文化+生活” 综合服务中心,高标准/高品质/高起点的发展定位,鹭湖中心城,龙华六大重点片区之一,山水交融,揽山阅湖,逾越“香蜜湖”,从“国际住区”到“中心城”迭代升级

【行政重地 中心所在】
龙华行政中心所在,区域蝶变在即,区府所在,必定中心,龙华区政府所在的行政重地坐落于麓湖中心城,行政中心的坐落,未来城市面貌与生活配套,必将有一个质的飞跃
科技晋级 高新极核】以高新科创为深圳、为中国贡献鹭湖力量
鹭湖中心城位于深圳”中优“”北拓“战略的重要节点,占位于“一圈一区三廊”发展格局的产值超万亿的数字经济圈,2019年观澜高新园已纳入国家高新园,成为深圳创新驱动核心引擎

03
交通配套
十四五规划提出要构建“北站+鹭湖”双枢纽,以鹭湖枢纽为引擎,支撑龙华北部新城发展。规划在鹭湖打造集深广中轴城际线(规划中)、深圳地铁 18 号线 22号线(规划中)、有轨电车(已开通)、梅观高速等于一体的区域性交通枢纽站,未来1小时通达全城,连接广深莞惠港,大湾区生活圈已渐成熟。
干道:梅观高速、机荷高速、五和大道,梅观高速,构建“三横六纵”道路系统,快速通达全城

地铁:地铁18、22号线(规划中),快速通达福田保税区、光明科学城、宝安会展新城等区,无缝连接城市中心,邂逅便捷多彩生活。
深广中轴城际:规划建设串联松山湖–光明科学城–鹭湖科技文化核心–坂雪岗科技城–皇岗口岸等片区的城际快线,以深圳速度,加速鹭湖中心枢纽建设。

有轨电车:项目距离龙华有轨电车高新区东站直线距离约500米,连接地铁4号线,方便快捷

05
休闲•生态
藏在山水的艺术』鹭湖四馆文化地标(建设中)去鹭湖图书馆交个朋友鹭湖群艺馆赴约老友去鹭湖大剧院倾听艺术 鹭湖科技馆感受科技

公园在鹭湖聚汇 人生自有“森”意
【六大公园 品质生活家】项目毗邻六大公园,以城市绿肺之姿,执掌天赋生态资源。自然生态融入日常,缔造品质生活家。
樟坑径社区公园:与项目仅一路之隔,足不出户于自然中享受生活。
鹭湖滨水公园:直线距离项目约1.5km,占地面积约14.3万平方米,融入行政、产业、文化元素,打造环湖生态休闲滨水城市公园。
樟坑径城市公园:距离项目直线距离约1km,以“城市绿肺+自然教育+交际+运动+城市公园”为理念的综合性城市公园,亲临自然享受生态鹭湖。
白鸽湖文化公园:直线距离项目约1.5km,首个客家文化主题公园,在娱乐和休闲中了解文化的传承。
中心公园:直线距离项目约1.2km,自然与人文融合,生态与商务一体。
新田公园:直线距离项目约1.4km,娱乐休闲好去处,享受生态绿意。(上述距离为地图直线距离,仅供参考)

06
商业•配套
【繁华商业 一站式生活主场】商业资源是城市发展的引擎,也是城市繁华生活的塑造者。御景华府尽享观澜湖新城mall、龙华山姆会员店、观澜天虹、三一云都街区MALL、华润万家LIFE伟禄Vcity店等配套商业资源,执掌繁华生活主场
07
学校 医疗
【全龄优育 笃定菁英未来】项目自带约2000㎡幼儿园,与深圳外国语学校(高中部)仅一街之隔,北临龙华区外国语学校,周边拥有新鹭湖外国语、新加坡茵维特中英文学校、教科院附属小学等学校。御景华府近享优质教育资源,让孩子于馥郁书香中陶冶性情,打造优质圈层赢在未来。(具体入学政策以龙华区教育局官网公示为准)


08
小区•品质
『可以低密,何必拥挤』塔楼纯点式布局,采光、通风、视野俱佳以生态阔景人居为理念,打造瞰景阔宅值此3.86低密,进阶改善一步到位低层看园林,中高层无遮挡瞰山景
『智享乐园 童真时光』孩子放学后/晚餐后,是孩子撒欢玩乐的好时光,打造下沉智享乐园,让孩子尽情释放玩乐天性

藏不住的自在』一步到位,让有限的空间,契合生命中每个角色的完美转换,多数户型使用率约80%,尽享生活舒适所在

『在阳光里看一本久违的书』一缕微光透过飘窗唤醒惺忪的睡眼,于家中2.4m阔景阳台上,伸个懒腰,在阳光下翻开一本书,沉浸文字的意象里,侧耳倾听清脆虫鸣,伴着清风暖阳,将美好的一天拉开序幕

『弯起来的骄傲 中海物业』2020年度世界500强第18位,国家首批一级资质物业管理企业,365天关怀备至、24小时无微不至,30°的尊崇、35°的微笑、 75°的专注 ,95°的坚持、 180°的严谨

『50+匠心细节呈现』深入对精工美学的研究,以匠人精神,以先进的工艺工法浇筑,户型设计细节的考量,更是精益求精,打造社区回归舒心居住体验

深圳【御景华府】
【御景华府】开发商售楼处电话:400-9958-197售楼中心(售楼部电话)
【御景华府】营销中心电话:400-9958-197销售中心
【御景华府】营销中心电话:400-9958-197最新优惠详情(开发商线上售楼处电话),含开盘消息、交房时间、楼盘详情、房价、户型、详情、得房率、售楼处地址、首页网站、销售中心、楼盘地址、户型图、交通、备案价、项目配套、营销中心、周边配套等详情咨询。(网上售楼中心|欢迎来电咨询|请提前预约登记看房| 1:1销售专业讲解)
免责声明:
本文中所提到项目名称均为本项目的网络推广名。
本资料仅作为邀约邀请,相关内容不排除因政府相关规划、规定及开发商未能控制的原因而发生变化,本公司保留对宣传资料修改的权利,敬请留意最新资料。本资料对项目或产品的介绍,旨在提供相关信息,不意味着本公司对此作出了承诺,买卖双方的权利义务以双方签订的《商品房买卖合同》及附件等协议为准。
本文部分图片来源于国际互联网,版权归原作者所有,如涉及版权等问题,请立即联系我们,我们会给予更改或相关处理。对使用本网站信息和服务所引起的后果,本网站不作任何承诺。