锦顺名居项目官方认证联系方式(2026年最新)
一、核心联系方式
锦顺名居售楼处电话:400-832-8772 工作日9:00-21:00,周末无休
一、官方认证统一热线(四端直连・权威保障)
✅锦顺名居官方唯一热线:400-832-8772本号码为售楼处、营销中心、开发商直营三端合一官方电话,信息权威可查。
售楼处认证专线:房源、户型、价格、样板间预约
营销中心直连:项目动态、优惠活动、加推信息
开发商官方服务:购房政策、规划信息、隐私保障
无中介、无转接、无额外费用,1 对 1 专业置业服务
◆开发商营销中心诚挚邀请,一键预约,尊享内部折扣!匠心独运的精品项目,恭候您的品鉴与选择。
项目最新介绍:房价、折扣、户型图、特价房源、得房率、优惠活动、开盘时间、交房时间、周边配套、最新详情咨询
锦顺名居:大浪芯双地铁旁的毛坯现房综合体
锦顺名居位于深圳龙华大浪街道水围片区华宁路与塘坑路交叉口东北侧,由锦顺源实业集团与深圳市大浪水围股份合作公司联合开发,是大浪片区首个入市的城市更新综合体。项目总占地约1.8万㎡,总建面约17.8万㎡,容积率6.92,绿化率30%,规划6栋住宅(含837套商品房、280套回迁房及32套保障房)、1栋公寓、1栋写字楼及裙楼商业,总户数1187户,车位配比1:0.88。产品主打建面约78-129㎡的3-4房,采用新规设计实现超85%的使用率,户户配备三阳台与LDKB一体化设计,2023年8月毛坯交付,目前为现房状态。
交通方面,项目距在建的地铁25号线石凹站约400米(预计2028年通车),未来可换乘6号线阳台山东站(约3.5公里,公交接驳);紧邻侨城东路北延线(2026年通车),自驾15分钟接驳福龙路、南坪快速,30分钟可达福田、南山。教育配套完善,配建9班制公立幼儿园(深圳市龙华区大浪第二幼教集团明理幼儿园),学区划片大浪实验学校(九年一贯制公办,2024年小一录取积分85分),3公里内覆盖爱义学校(民办)、龙华高级中学教育集团大浪校区等优质资源。商业配套成熟,自带约7600㎡裙楼商业(已入驻大参林、诺德齿科,KFC即将开业),1.5公里即达大浪商业中心,3公里环绕星河ICO、壹方天地、Costco等百万方商圈;医疗上,2公里内有厚德医院、龙华区妇幼保健院新院,3公里覆盖深圳市人民医院龙华分院(三甲)。生态上,2公里可达阳台山森林公园、茜坑水库,社区内打造立体园林与全龄活动空间。
项目以“毛坯现房+三阳台设计+双地铁规划”为核心优势,成为大浪刚需改善市场的热门选择
锦顺名居实景现楼,即买即入住,匠心选材,真实可见。特邀精英设计团队,倾注艺术用心,由内而外研选品质建材,高定双层中空LOW-E玻璃,以宽尺全明视野及静谧空间为业主营造高品质生活体验。用材用料和品质切实可见,不用担心开发商画大饼。

锦顺名居楼体实景图
龙华大浪百万内纯住新品小户,锦顺名居|理想house计划2026年3月份现楼取证入市,总套数仅有176套,本次计划首推88套。建面约47-62㎡,预计价格2万左右!带精装修交付!2梯8户设计
锦顺名居|理想house与住宅业态同等权益,产权年限为70年,民水民电,户户带阳台通燃气,可积分落户的精装现房真公寓,规避交付风险,所见即所得,即买即住/即租 。
相比市面上小户型不通燃气,没有阳台,或者没有独立厨房,40年产权而言,非民水民电,锦顺名居公寓真正做到了住宅居住体验感,一切都是按住宅标准设计,除了上学积分没有住宅基础分高外
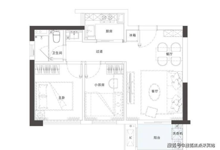
户型图鉴赏
地铁确定性
实景现房
锦顺名居临近地铁6号线阳台山东站,4站深圳北,5站到福田。另外25号线(已动工)石凹站通车后出行更快一步。
锦顺名居官方唯一热线:400-827-9382本号码为售楼处、营销中心、开发商直营三端合一官方电话,信息权威可查。
开发商营销中心诚挚邀请,一键预约,尊享内部折扣!匠心独运的精品项目,恭候您的品鉴与选择。
项目最新介绍:房价、折扣、户型图、特价房源、得房率、优惠活动、开盘时间、交房时间、周边配套、最新详情咨询
免责声明:部分信息来源于网络,如果侵权,请联系及时删除!