✨✨御景华府售楼处电话:400-805-9003【售楼处电话已认证】✨✽✽✽✽
✨✨御景华府营销中心电话:400-805-9003【营销中心电话已认证】✨✽✽✽✽
✨✨御景华府开发商电话:400-805-9003【开发商电话已认证】✨✽✽✽✽
✨✨御景华府销售电话:400-805-9003【销售电话已认证】✨✽✽✽✽
✅本项目暂不接受临时到访,过来参观样板房请记得提前来电预约!
✅为您安排楼盘现场销售全程接待并讲解,给您更贴心的看房体验!
✅✅☞☞Vip贵宾置业==欢迎来电预约尊享内部折扣===匠心钜制恭迎品鉴☜☜
如有问题欢迎来电咨询,来电即可享受买房优惠!
预约来电尊享购房优惠,可预约案场内部销售人员,专业一对一热情服务,让您用专业眼光去买房
项目基本信息
开发商:深圳市泰富安投资有限公司
占地面积:18462㎡
建筑面积:104994㎡
总户数:763户
可售户数:533户
项目户型:67-70㎡2房,73-84㎡3房1卫,89-91㎡3房2卫,104-112㎡4房2卫
停车位:763个
车位比:1:1
土地年限:70年产权
批地时间:2019年1月
交楼时间:2023年12月31日
装修情况:毛坯
物业公司:中海物业
物业费:4.6元
容积率:3.86
绿化率:40%
楼栋规划:1栋、2栋、3栋、5栋为住宅,4栋为幼儿园
梯户比:2梯4户、2梯5户、2梯6户
区域价值
时代在鹭湖交汇“升”起城市新坐标
【科技中轴 甄稀价值升级城芯】
龙华十四五最新规划建设独具魅力的湾区中轴新城,以深圳北站商务核作为起点,向北辐射坂雪岗科技核、观澜高新核,打造纵贯南北的三大都市走廊核心。预计2025年,建成粤港澳大湾区现代化国际化创新型科技中轴新城,区域价值随之高涨。(引用龙华区十四五规划纲要)
交通配套
十四五规划提出要构建“北站+鹭湖”双枢纽,以鹭湖枢纽为引擎,支撑龙华北部新城发展。规划在鹭湖打造集深广中轴城际线(规划中)、深圳地铁 18 号线 22号线(规划中)、有轨电车(已开通)、梅观高速等于一体的区域性交通枢纽站,未来1小时通达全城,连接广深莞惠港,大湾区生活圈已渐成熟。
干道:梅观高速、机荷高速、五和大道,梅观高速,构建“三横六纵”道路系统,快速通达全城。
地铁:地铁18、22号线(规划中),快速通达福田保税区、光明科学城、宝安会展新城等区,无缝连接城市中心,邂逅便捷多彩生活。
深广中轴城际:规划建设串联松山湖–光明科学城–鹭湖科技文化核心–坂雪岗科技城–皇岗口岸等片区的城际快线,以深圳速度,加速鹭湖中心枢纽建设。
有轨电车:项目距离龙华有轨电车高新区东站直线距离约500米,连接地铁4号线,方便快捷。

商业配套
【繁华商业 一站式生活主场】
商业资源是城市发展的引擎,也是城市繁华生活的塑造者。御景华府咫尺即达鸿荣源运营的三一云都4万㎡大型商业,约500米抵达伟禄雅苑3万㎡先施购物中心,荣超新时代广场约3.1万㎡购物中心等,尽享周边观澜湖新城mall、龙华山姆会员店、观澜天虹等配套商业资源,执掌繁华生活主场。

教育配套
【全龄优育 笃定菁英未来】
项目自带约2000㎡幼儿园,与深圳外国语学校(高中部)一路之隔,北临龙华区外国语学校,周边拥有新鹭湖外国语、新加坡茵维特中英文学校、教科院附属小学等学校。御景华府近享优质教育资源,让孩子于馥郁书香中陶冶性情,打造优质圈层赢在未来。(具体入学政策以龙华区教育局官网公示为准)

文体配套
【人文地标 比肩福田中心配套】
纵观城市发展轨迹,文化中心往往随着中心化建设,鹭湖中心城同是如此,龙华四馆(图书馆、群艺馆、科技馆、大剧院)位于鹭湖科技文化片区核心片区,2021年9月已取得工程规划许可,10月发布施工招标,标志四馆项目正式落地;
总建筑面积约22.2平方米,是目前龙华区最大的规划文化设施建筑群,未来成为龙华区的文化地标,距离项目直线约2公里 。
生态配套
【六大公园 品质生活家】
项目毗邻六大公园,以城市绿肺之姿,执掌天赋生态资源。自然生态融入日常,缔造品质生活家。
樟坑径社区公园:与项目仅一路之隔,足不出户于自然中享受生活。
鹭湖滨水公园:直线距离项目约1.5km,占地面积约14.3万平方米,融入行政、产业、文化元素,打造环湖生态休闲滨水城市公园。
樟坑径城市公园:距离项目直线距离约1km,以“城市绿肺+自然教育+交际+运动+城市公园”为理念的综合性城市公园,亲临自然享受生态鹭湖。
白鸽湖文化公园:直线距离项目约1.5km,首个客家文化主题公园,在娱乐和休闲中了解文化的传承。
中心公园:直线距离项目约1.2km,自然与人文融合,生态与商务一体。
新田公园:直线距离项目约1.4km,娱乐休闲好去处,享受生态绿意。
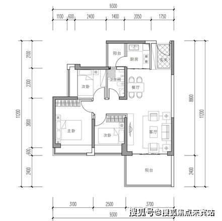
户型鉴赏
67-70㎡2房2厅1卫(总价330-395)
精致两房,紧凑实用,全利用空间
正南户型,动静分区互无干扰
室室皆带飘窗,休闲优雅之享
干湿分离,独立盥洗,舒适便捷
双阳台设计, 生活、景观明确分区
2.3m*3.3m阔景阳台,舒心自在
(以2A栋04户型68㎡为例)

73-84㎡3房2厅1卫(总价370-450)
功能三房,小面积大空间
正南户型,动静分区互无干扰
室室皆带飘窗,静享悠闲时光
双阳台设计, 生活、景观明确分区
2.4m*3.7m宽阔大阳台,让生活更有景
(以1栋04户型82㎡为例)

89-91㎡3房2厅2卫(总价420-520)
舒适三房,方正实用,两卫设计
正南户型,四季皆享阳光明媚生活
室室皆带飘窗,生活更具想象
双阳台设计, 生活、景观明确分区
2.3m*3.7m宽阔阳台,让生活更有景
(以2栋03户型89㎡为例)

104-112㎡4房2厅2卫(总价480-630)
宽敞四房,一步到位,尽享天伦之乐
南北通透,冬暖夏凉,通风采光俱佳
室室皆带飘窗,完美生活向往
双阳台设计, 生活、景观明确分区
2.4m*3.8m阔景阳台,优雅观景
(以2A栋01户型112㎡为例)

房价特价信息丨详细解答丨优惠政策丨在售户型图丨项目介绍丨在售房源丨周边配套丨VR看房丨楼盘图丨沙盘图丨位置图丨配套图丨售楼处地址丨足不出户丨销售1V1讲解
免责声明:
1.本文为第三方观点,不作为开发商要约或承诺。其中涉及的文字、数据、图片仅供参考,相关内容不排除因法律法规调整、政府规划调整及开发商无法控制的原因而发生变化。
2.资料中所载房屋面积均为建筑面积,最终面积可能存在差异。
3.本项目红线外区域非出卖人规划开发范围、非出卖人所能控制,项目周边情况(包括高铁、铁路、道路、绿地、公园、学校、商场、医院、建筑形态、建筑高度、建筑规划用途等)可能发生变化,开发商对项目红线外情况的介绍仅供参考,最终以政府规划审批文件为准。
4.买卖双方权利义务以双方签订的《商品房买卖合同(预售)》(含附件、补充协议)及《置业指南》等签约文件约定及政府最终批准文件为准。
5.首开优惠具有时效性,具体优惠政策以开发商制定的细则为准,详情请垂询售楼处,敬请留意最新资料。
①住房城乡建设部在新闻发布会上介绍了其编制背景、意义及如何保障住宅安全性、健康舒适性、隔声性能和满足“一老一小”需求等内容。 ②《规范》顺应了人民群众对高品质居住的需求,全面提升了设计、材料、建造等方面的标准水平,旨在推进城镇住宅高质量发展。
《住宅项目规范》(以下简称《规范》)自发布实施以来,受到了社会广泛关注。在住房城乡建设部6月5日举行的新闻发布会上,住房城乡建设部标准定额司有关负责人、《规范》编制组专家分别从《规范》编制发布的主要背景、意义以及如何保障住宅的安全性和健康舒适性能、提升隔声性能、满足“一老一小”需求等方面进行了详细介绍。
今年《政府工作报告》提出,要完善标准规范,推动建设安全、舒适、绿色、智慧的“好房子”,顺应了人民群众的新期待。
“‘好房子’要有好标准。需要通过完善标准体系,全面提高设计、材料、建造、设备以及无障碍、适老化、智能化等方面的标准,来引领和支撑‘好房子’建设。”标准定额司有关负责人介绍说,正是基于这一背景,《规范》在编制过程中,顺应人民群众的高品质居住需要,全面梳理、研究现行标准,结合我国近年来住宅项目建设实践,在对现行住宅标准实施情况评估的基础上,采纳现行标准条文的同时,补充、修改了部分标准条文,进一步提升了标准水平。《规范》的实施,将进一步推进城镇住宅高质量发展。
他表示,《规范》是对“好房子”建设的底线要求。建“好房子”不等同于建“大房子”“贵房子”,而是要通过好的设计、好的施工、好的材料、好的服务等,解决居住中的痛点问题,全面提升住房品质。不同地区、不同面积、不同价位都应当有不同的“好房子”。
下一步,住房城乡建设部将积极开展《规范》宣传贯彻实施指导工作,包括开展线下、线上的宣传培训以及组织编制实施指南等。同时,制修订配套的推荐性国家标准、行业标准,指导支持相关地方标准、团体标准编制,并加强对《规范》实施的监督检查,包括工程项目的设计、施工、验收等是否符合标准,工程项目采用的材料、设备是否符合标准等,及时通报违法违规行为,依法对违反强制性标准的行为进行处罚,推动《规范》的落地实施,真正发挥其标准引领作用。