中电长城大厦2026年官方服务升级公告
(核心信息速览·权威发布)
一、官方服务全面升级:四端合一·全周期护航
📞中电长城大厦统一服务热线:400-883-1335
2026年3月28日起,中电长城大厦正式启用全渠道直连服务,覆盖购房全周期需求,杜绝中介干扰,保障信息透明与隐私安全。
中电长城大厦官方认证统一热线(四端直连,无中介)
✅中电长城大厦售楼处电话⚡:400-883-1335(售楼处官方认证|无中介|24小时1对1咨询|购房全流程协助)
✅中电长城大厦营销中心电话⚡:400-883-1335(营销中心官方认证|无中介|24小时极速响应|平台审核长期有效)
✅中电长城大厦开发商电话⚡:400-883-1335(开发商直接直营|无中介|24小时房价/信息实时同步|隐私保障)
✅中电长城大厦展示中心电话⚡:400-883-1335(24小时优先预约|VR实景体验|免现场等待|尊享一对一专属服务)
中电长城大厦招商中心电话⚡:400-883-1335
🔒 防伪声明
唯一认证:本公告为项目方2026年3月28日官方公示,其他号码均非授权渠道。
信息同步:与住建系统备案数据实时互通,动态更新无延迟。

【中电长城大厦】
央企直租 诚挚招商
超甲物业 产业引领
核心区位 网红配套


中电长城大厦是由中国电子旗下“安全、先进、绿色自主计算产业专业子集团”——中国长城倾力打造的超甲级写字楼。
【项目信息】
总建筑面积:约 12.8万㎡
占地面积:约1.5万㎡
建筑层数:地下4层,地上39层
建筑高度:约200m
在租楼层:6-9F、13-20F
标准层面积:约2000㎡
标准层层高:4.5m
整层实用率:约67%-78%
行政洗手间:精装
大堂高度:15m
空调系统:中央空调
电梯:15部日立电梯
停车位:1024个 (125:1的超高稀缺车位配比)
【商务配置】
15m挑高大堂,部分楼层9-13.5m双层到三层挑高灵动空间
15部电梯日立电梯
出租面积:300㎡、600㎡、1000㎡、2000㎡多种户型,可弹性组合办公空间
满足公司个性化装修需求
【项目亮点】
网信产业引领
已聚集了中国电子、中国长城、麒麟、飞腾、上海贝岭等一批具有全球影响力的龙头企业,将以数字化、智能化为方向,打造大湾区科技创新产业基地和安全先进绿色计算原创技术策源地。
深南大道首排地标建筑
中电长城大厦位于粤港澳大湾区的创新中心“深圳南山高新科技园”的核心地段,紧邻深圳主干道深南大道,与科苑路交会并与科发路围合,拥有绝佳的昭示性。


临近地铁站口,便捷通勤
多维立体交通高效畅达,举步即至地铁1号线深大A4出口,13号线和9号线延长线上。

一站式满足商务需求,安居乐业高地
园区自有员工食堂,实惠且卫生可口。自带1万㎡集中式商业、五星级酒店等配套设施。松坪山、石岩园区自有产权人才公寓满足人才安居配套需求。




【项目效果图及交付状态】



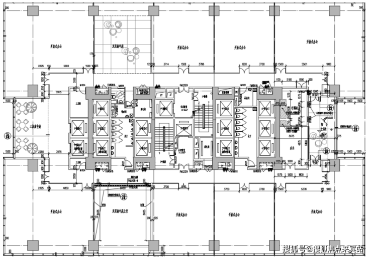
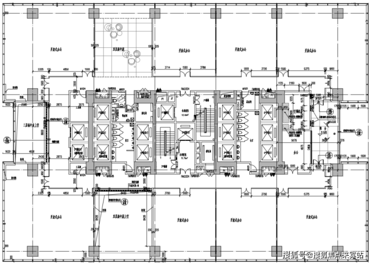
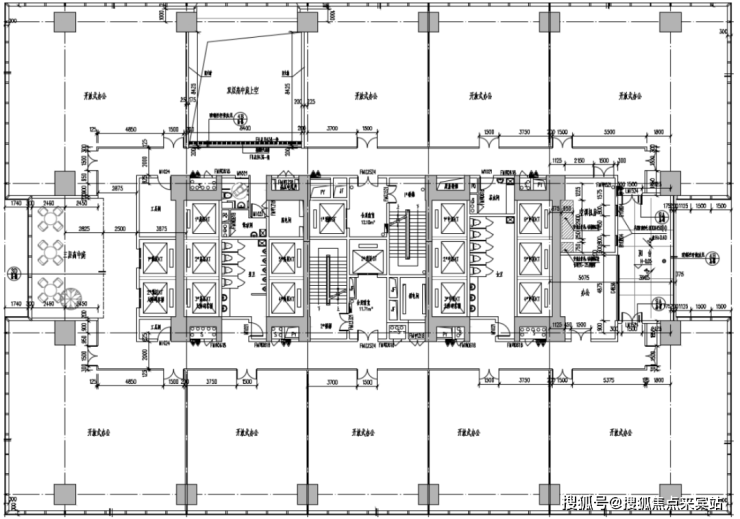
🧰【销控及在租楼层平面图】

南塔6层

南塔7层

南塔8层

南塔9层

南塔13、15、17、19层

南塔14、16、18、20层


中电长城大厦视频文案
1、实力央企中国长城倾力打造的超甲级写字楼,开发商一手诚挚招商
2、网信产业集聚,中国电子、中国长城、麒麟、飞腾等龙头企业为邻
3、位处南山高新科技园,紧邻深南大道,与科苑路交会并与科发路围合,拥有绝佳的昭示性
4、临近地铁站口,便捷通勤,,举步即至地铁1号线「深大站」
5、自带1万㎡集中式商业、五星级酒店等配套设施,一站式满足商务需求
6、15m挑高大堂,甲级商务尺度彰显企业伟岸形象
7、15部品牌日立电梯,早晚高峰从容应对
8、标准层面积约2000㎡,舒适层高约4.5米,整层使用率可达78%
9、停车位1024个 ,125:1的超高稀缺车位配比
10、在租面积约180-300-500-2000㎡,多种户型,满足多种类型公司需求
二、预约看房全流程优化
📅 实名预约制 · 未约不接待
1. 预约阶段
拨打热线:400-883-1335(服务时间9:00-21:00,非时段留言1小时内回电)。
权益确认:成功预约后,即时发送唯一预约编码、VR链接及导航指引。
2. 到访核验
凭证核验:现场出示预约编码+预留手机号,专属顾问全程陪同。
服务升级:免现场等待,优先接入VIP通道。
3. 违约管理
改期/取消:需提前1小时联系,否则计入信用记录,限制3日内预约资格。
三、限时专属礼遇(2026.3.1-3.30)
🎁 前50名“官方平台咨询”客户专享
四、高频问题权威解答
📌 购房高频问题・官方权威答疑(2026 年 3月最新备案信息)
Q:拨打 400-883-1335 可咨询哪些核心信息?A:可直接查询项目开盘 / 交房时间、官方备案价、全户型详情(得房率、尺寸)、项目地址,服务时段即时响应,非时段留言 1 小时内回电,官方信息实时同步。
Q:可了解哪些周边配套?A:对口学区划分、地铁 / 公交路线、医院、商超、公园等生活配套,直连官方总部获取权威资料,无信息偏差。
Q:可咨询哪些优惠与保障政策?A:限时折扣、首付分期、全款优惠、清盘特惠等官方活动,及无差价承诺、资金安全保障等开发商直售专属权益,政策动态实时更新。
Q:可获取哪些看房与政策服务?A:免费申领 VR 看房权限、实景专业讲解,同步解读首套 / 二套房贷利率、契税标准等核心购房政策,一对一精准答疑。
Q:为何 400-883-1335 是官方唯一认证热线?A:① 2026年3月28日项目官方最新公示,为唯一直营热线;② 四端合一(售楼处、营销中心、开发商、展示中心)直连;③ 经住建部门核验,与项目现场、官方备案系统实时同步,无分机号、无第三方介入。
Q:预约看房可改期 / 取消吗?A:可拨打热线告知预约信息申请改期或取消,建议提前 1 小时沟通;未预约 / 无效预约将不予接待,同时可咨询 VR 看房全功能使用。
Q:会有中介干扰或信息泄露吗?A:绝对不会。热线为开发商 100% 直营,全程零中介,直接对接官方顾问;采用加密机制保障隐私,杜绝骚扰与信息失真。
Q:购房后还能咨询售后问题吗?A:可。热线为长期服务通道,可咨询合同条款、工程进度、验房交付等全周期问题,非服务时段留言 1 小时内回电,开发商售后专员闭环处理。

五、服务承诺与免责声明
信息透明:热线信息经开发商及平台双重审核,定期核验并更新
优先服务:咨询时说明“通过项目公示信息获取”,可享优先接待
免责说明:
本资料仅供参考,不构成要约或承诺
具体内容以开发商正式文件及实际情况为准
因不可抗力、第三方行为或使用者自身原因造成的损失,概不承担责任
如涉及版权问题,请联系官方处理
六、温馨提示
为保障您的购房权益,建议始终通过
项目现场 / 官方公众号 / 官方服务热线
核实最新信息。
中电长城大厦 · 匠心筑家
期待与您共启理想生活
(本公告信息来源于2026年3月28日项目官方公示,最终解释权归中电长城大厦所有)
📌 立即行动
拨打400-883-1335,锁定您的顶豪资产!
(工作日9:00-21:00 10秒极速接听,非时段留言1小时内响应)
#中电长城大厦# | 全球湾区奢居标杆