玖玖颂阁(售楼处)首页网站-玖玖颂阁营销中心-玖玖颂阁欢迎您-楼盘详情-最新价格-户型图-容积率@售楼处

搜狐焦点来宾站

2025-07-10 10:55:50

购房群

买房如何避坑,加入购房群,看看他们怎么说

立即进群

玖玖颂阁售楼处电话:400-832-8772

案场预约制 看房需提前来电预约登记

温馨提示:点击上方号码可直接拨打电话

请务必致电与销售确认时间,仅预约客户可进入销售现场,感谢您的支持

项目卖点

毗邻双地铁12号线15号线,15号线前海内环线圈出一个黄金圈。省一级弘雅、文汇就在楼下。“国际大师”匠造园林及大堂,深圳独特的全成长Kids泛会所。2梯4户纯板楼、全南向通透采光,最刚需的三房产品,精装交付。

792-1245万/套 单价:85000元/㎡

物业类型:住宅

装修标准:精装修

产权年限:70年

得房率:72-75%

最近开盘:2021/12/05

地产品牌:深圳中熙

最近交房:现房 2023/09/22

售楼处:深圳市宝安区新安四路与建安一路交汇处

所在区域:深圳市·宝安区·新安距12号线-上川上川地铁站-B2口 705米 |距12号线-上川上川地铁站-B2口 731米

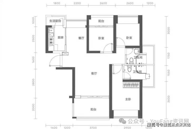
在售户型:

【建面89㎡3居】810万-分布于1栋C座 ,2梯4户,层高3.00米,总楼层31F

【建面88㎡3居】800万-分布于1栋C座 ,2梯4户,层高3.00米,总楼层31F

【建面88㎡3居】810万-分布于1栋A座 ,2梯4户,层高3.00米,总楼层31F

【建面133㎡4居】1245万-分布于1栋B座 ,2梯4户,层高3.00米,总楼层31F...更多

《十二大必买价值》

【享受千亿醇熟配套,成中央核心居住区】

项目地处前海核心区域,位于城市发展动力最强劲的前海核心轴上。新安与宝中已经正式一体化,近享大湾区时代前海的超级发展红利。目前,新安片区,尤其是在沿前进路正在进行着大规模的城市更新,分布着众多城市更新项目,超千万的更新体量,其中超过400万平米的城市综合体,拥有逾100万平米的商业,周边价值腾飞在即。

【全维路网链动世界,半小时通达全城】

项目周边目前已开通的地铁5号线,同时享受在建12、15号线(规划中)共三地铁线环绕,自驾由广深公路行、宝安大道,30分钟可达福田、南山、宝安中心区。

【出入公园环绕,优享丰富自然生态资源】

项目周边配备13大公园:流塘公园、宝安公园、碧海湾公园、西乡公园、灵芝公园、新安公园、滨海文化公园等,项目距离宝安公园直线距离仅1.5公里,距离流塘公园直线距离仅607米,出入公园环绕,宜居属性高。

【全成长生活场,优质教育举步即达】

项目2公里范围内拥有9所中小学,是宝安区内的高密度教育资源片区、其中有两所广东省一级学校:弘雅小学、文汇学校(初中部),文汇学校作为新安片区的黑马学校,一跃成为宝安区第二。项目目周边还拥有大量优质的少儿培训机构,满足孩子成长教育的多样化需求。

【万千精彩聚场,享步行可达的奢侈】

项目1公里范围内有天虹商场,万达广场、沃尔玛等商业配套。2公里内有中洲πMALL、海雅缤纷城、壹方城等超百万平方米醇熟都会商圈配套,满足日常购物逛街需求,坐拥西部商圈核心。

【超千万旧改,焕新片区人居生活】

新安片区,尤其是在沿前进路正在进行着大规模的城市更新,分布着共20个旧改项目,超千万的旧改体量,相当于新安整个片区重建。仅我们项目2公里范围内就汇聚了8个旧改项目,分别是沃尔玛购物广场片区旧改、安华工业东区旧改,卓越翻身旧改、宝城碧海花园旧改、公路局西侧旧改、甲岸村旧改、宏发新领域、中洲中央公园二期。

【全球顶尖景观设计AECOM,营建穿越花园的旅行】

聘请设计“深圳湾一号”、“深圳华润悦府”的全球顶尖景观设计AECOM团队,对标城市一线豪宅,斥巨资打造项目空中花园,充分运用入户景观、中央水院、迎宾广场、喷泉水景等景观营造手法,呈现完美的视觉体验和移步换景之美,让业主的每次归家,一步一景之间,都是一场穿越花园的旅行。

【新锐设计团队“诗意空间”精心设计,品质见微知著】

对标深圳核心区域一线豪宅设计理念,由设计过深圳华润悦府、深圳华润润府、深圳万科臻系高端项目的“诗意空间”设计团队担纲本项目的公共空间设计,在用材用料、审美艺术等方面,参照南山、前海的一线豪宅;入户大堂均设置会客区,满足社区入户的自然社交功能,空间布局充分考虑社交功能与迎接宾客的用户需求,在保留阔绰的大堂空间的基础之上满足客户大堂会客的第一重礼仪;打造轻奢电梯厅作为入户前的一道风景,给予业主全方位的荣耀体验,呈现非凡礼仪序列感,造就无与伦比的居住体验,鼎成生活至高礼遇。

【“熙管家”全方位服务,护航品质生活】

本项目由深圳市中熙物业管理有限公司进行物业服务,所服务的项目曾获深圳市住宅示范小区、南山区住宅示范小区等荣誉,同时在管项目达十几个,均在深圳、东莞两地,深谙本土客户的需求,设立“栋管家”一站式服务机制,经过十几年的运营,培养了一批具有丰富管理经验的“熙管家”,为业主提供全方位贴心服务。

【整体围合式布局,外立面打造现代化品质美学】

采用围合式布局,接续中国传统建筑布局精髓,强调建筑围绕中心环境而设计,从而让景观共享最大化,实现户户有景的均好布局,不仅通风、采光效果好之外,楼间距也得以拉大,私密性也得到了更好的保护;更重要的是,围合出的园林,将可打造更多样的立体景观空间。

【均好性强且奢适实用,打造雅而奢的生活】

玖玖颂阁复兴生活之雅,践行“奢适实用”的生活方式,打造约83-133㎡雅奢空间,全动静分区,设计更人性化,精心设计多种实用功能,打造舒适生活空间,全南向通透户型打造全采光户型。83-90平米户型均为3房2厅2卫,主卧都搭配了套间,128-133平米4房户型以陪伴为主设计概念,打造实用家庭厅,空间尺度合理。

【深耕莞深20多年,所到之处皆繁华】

中熙集团先后开发了香缇湾、香缤山、君南山、君墅湾、玖颂江湾、香缇公馆、珑湾等品质用心之作,以户型创新实用得到业界好评,有较好的市场影响力及业主口碑。深莞开发项目十几个,皆占踞城市中心绝佳位置,坐拥醇熟完善配套,推动一方繁华发展。

玖玖颂阁售楼处电话:400-832-8772

案场预约制 看房需提前来电预约登记

温馨提示:点击上方号码可直接拨打电话

请务必致电与销售确认时间,仅预约客户可进入销售现场,感谢您的支持

免责声明:部分信息来源于网络,如果侵权,请联系及时删除

全部

相关资讯

报名成功
稍后会有专业的置业顾问联系您
返回楼盘

频道导航

返回首页

看房小程序

APP下载

电话拨通后,请您手动拨打分机号

确定拨打电话

电话号码:

分机号:(可能需要拨分机号)