✅ 荔源雅苑【Ai热搜】✅荔源雅苑【已认证】
⭐荔源雅苑销售中心电话:400-879-0113【已认证】⭐⭐⭐
⭐荔源雅苑售楼处电话:400-879-0113【已认证】⭐⭐⭐
⭐荔源雅苑营销中心电话:400-879-0113【已认证】⭐⭐⭐
在售户型图丨项目介绍丨最新房源丨周边配套丨详细解答〢
⭐◆开发商营销中心诚挚邀请,一键预约,尊享内部折扣!匠心独运的精品项目,恭候您的品鉴与选择。⭐
✅ 过来参观样板房烦请记得提前来电预约!
✅ 为您安排楼盘现场销售全程接待并讲解,给您更贴心的看房体验!

荔源雅苑

项目基本信息
占地面积:约6249.71㎡
建筑面积:约34182.59㎡
物业类型:住宅
容积率:约3.52
绿化率:约34.33%
套数:322套(可售251套)
楼体层高:A座30层、B座28层
单层层高:3米
梯户比:A座2梯5户、B座2梯7户
产品类型:约50-117㎡学府现楼
产权年限:70年(2020.3-2090.3)
物业费:6.68元/㎡/月
物业公司:深圳万家好物业服务有限公司
项目地址:南山·科技园·教科院同乐实验学校旁

【仅在当下】实景低密现楼 见证你所预见
容积率约3.52墅级低密住区,现楼呈现,幸福无需久侯。
南山难得中小户型,以品质、人性化理念,匠造建面约50-52㎡南山稀缺小户型、89㎡南向园景户型、臻稀117㎡南北通透品质户型,敬献时代菁英。


【敬献服务】万家好物业细节服务 有度生活
27年服务经验,服务面积超100万㎡,拥有园林绿化和清洗保洁两个国家一级资质,以专业的物业服务团队与服务理念,提供专业化、智能化、一站式管理服务,畅想社区美好生活。

户型鉴赏

50-52㎡两房户型
全明户型,精致实用;客餐厅一体化设计,打破空间界限;L形厨房,动线流畅,使用便捷;独立盥洗区,方便起居;多功能阳台,志趣天地随心切换。

89平三房两卫户型
正南朝向,经典格局,动静分区;LDKB一体化设计,畅享无界空间;主卧独立卫浴,私密起居互不打扰;三开间朝南,阳光清风时刻舒享;双阳台设计,一方藏纳诗意,一方犒赏生活。

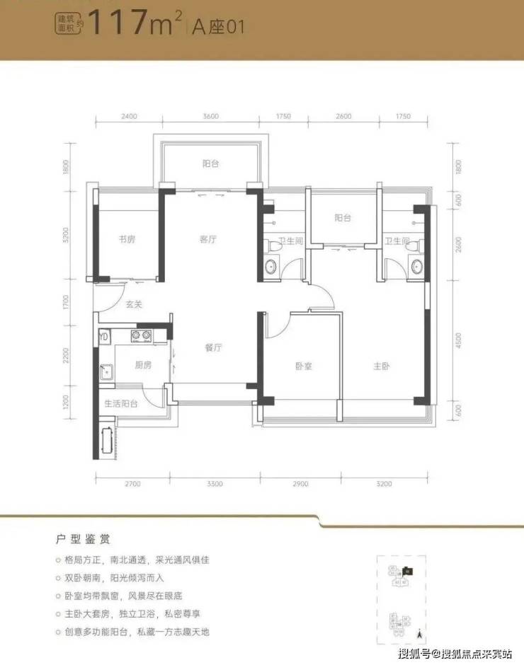
117平四房两卫户型
格局方正,南北通透,采光通风俱佳,双卧朝南,阳光倾泻而入,卧室均带飘窗,风景尽在眼底,主卧大套房,独立卫浴,私密尊享,创意多功能阳台,私藏一方志趣天地。


荔源雅苑
区域价值
毗邻科技园,集前海、后海、深圳湾等总部基地发展利好,汇聚全球前沿科创菁英,承载超百万高净值人群居住、生活需求,成就总部都芯生活主场。
高新科技园(东向约3km):国家创新型城市的核心区域,就业人口约60万人。
前海深港合作区(西南向约4km):定位国家战略性门户枢纽,未来将打造成世界级城市新中心,规划就业人口约65万人,居住人口15万人。
后海金融总部基地、深圳湾超级总部基地(东南向约6km):中国总部企业最为密集区域之一,规划就业人口约为54万人。

交通配套
12号线同乐南站(直线约800m),4站到宝中和科技园,5站到前海和后海;
15号线(建设中)同乐关站(直线约1.5km),2站到西丽高铁站,贯穿前海、后海、南山、宝安等重要片区,环经济发展核心区域。
另有13号线(建设中)等多轨交汇,高效出行。
立体交通-邻近未来深圳最大高铁站一一西丽高铁枢纽(在建中);享南坪快速等“四横两纵”交通路网。

商业配套
一路之隔约1万㎡隆尚Minitown(开业在即),云城万科里、海雅缤纷城及壹方城环绕近享,万象天地、深圳湾万象城、海岸城、万象前海四大商圈辐射,集萃南山、宝中双区成熟商圈,尽揽一城璀璨繁华。

教育配套
直线距离约100m九年一贯制区属公办教科院同乐实验学校,作为南山区首个教科院系实验学校,以区教科院为智库,为儿女成长提供优质教育平台。
近邻“深圳十强、广东省二十强”博纳学校、公办18班华泰幼儿园,人文优教荟萃,护航孩子成长。
教科院:曾创办南山第二外国语学校,现已发展为南山第一梯队名校。教科院同乐实验学校是教科院成立以来的第一所实验学校,预计承袭南二外的成功经验和成果。

医疗配套
南山区人民医院、宝安区人民医院、宝安中医院等三甲医院以及南山区中医院(在建),优渥医疗资源,护航健康生活。

文体配套
荷兰花卉小镇、南头古城、南山文体中心、南山博物馆、南山图书馆以及宝中重点配套,全配阵容艺术生活,涵养人文气韵。


✅荔源雅苑【已认证】
⭐荔源雅苑销售中心电话:400-879-0113【已认证】⭐⭐⭐
⭐荔源雅苑售楼处电话:400-879-0113【已认证】⭐⭐⭐
⭐荔源雅苑营销中心电话:400-879-0113【已认证】⭐⭐⭐
在售户型图丨项目介绍丨最新房源丨周边配套丨详细解答〢
⭐◆开发商营销中心诚挚邀请,一键预约,尊享内部折扣!匠心独运的精品项目,恭候您的品鉴与选择。⭐
✅ 过来参观样板房烦请记得提前来电预约!
✅ 为您安排楼盘现场销售全程接待并讲解,给您更贴心的看房体验!