🌈新世界临海揽山🌈
☎️售楼处咨询热线:400-873-0112【售楼处电话已认证】🌈
🌈新世界临海揽山🌈
🌈开发商电话:400-873-0112【开发商电话已认证】🌈
🌈楼盘基本信息介绍,地址,户型,价格,位置,医疗教育,商业交通配套🌈
🌈开发商指定合作平台,全网预约通道!🌈

项目基本信息
【开发商】深圳市富诺房地产开发有限公司
【项目地址】南山区蛇口大南山旁工业五路和沿山路交汇处
【占地面积】约4万㎡
【总建筑面积】约30万㎡
【建筑类型】住宅、公寓、人才房,别墅
【物业公司】深圳市新投物业管理有限公司
【物业费】9.9元/㎡/月
【楼栋数】7栋住宅,2栋公寓,1栋人才房,7栋别墅
【总户数】1278户(含公寓)
【产品面积段】112-115平3房2卫 、239平4+1房3卫
【梯户比】3栋三梯两户;4栋低区三梯四户,高区三梯三户
【容积率】约4.95
【绿化率】35%
【车位比】1:1.5
【楼层高】
3栋共34层:(15、34层避难层)
4栋共37层:(15、27层避难层)
【层高】3栋3.15m,4栋低区3m,高区3.15m
【交楼时间】现楼
【交付标准】毛坯
【产权年限】2018年6月-2088年6月
项目周边配套:
01
交 通 配 套
距离项目最近的地铁12号线“花果山”站,百度测量直线距离为550米左右,而距离地铁2号线“海上世界站”与“水湾站”百度测量大致距离为1200米。
02
教 育 配 套
邻近项目周边的教育资源较为丰富,主要有育才一小、育才二中;周边还有育才三小、育才中学、深美国际学校和太子湾学校等,涉及到育才教育集团和国际学校超过8所。
03
医 疗 配 套
、
主要有蛇口人民医院和一些社区健康服务中心,但作为发展较好的南山区来讲,整体的医疗资源还是较为充裕的,有南山区人民医院、南山区妇幼保健院、港大医院等,还有招商太子湾国际医院刚刚举行了奠基仪式。
04
商 业 配 套
项目附近主要以工业园区和豪宅为主,日常小型生活配套较少,自身带有一个3层的小型社区商业,附近距离较近的有花园城和海上世界商圈,花园城购物中心、汇港购物中心等均为较为大型的购物场所。
05
其 他 配 套
周边的休闲娱乐资源较为丰富,包含有南山公园、荔枝公园、四海公园和蛇口体育中心等休闲场所,其中南山公园是南山区非常重要的景点。
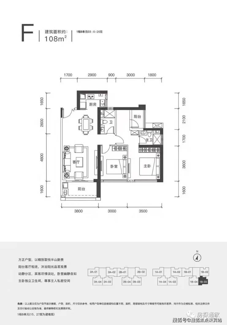
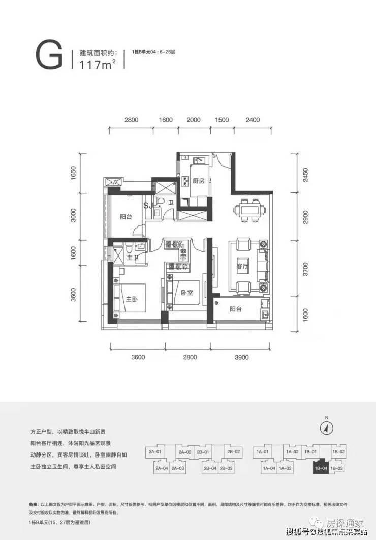
户型图鉴赏:
样板房鉴赏:
建面约410㎡大平层公寓
建面约410㎡大平层公寓
建面约410㎡的大平层公寓,有着开阔空间尺度,3.6米的层高,约78%使用率,在空间功能上可充分释放业主们的想象力,游刃有余地营造居家会所氛围。舒适的挑高,南北通透的户型,180°的景观面,打破室内与自然景观的空间限制,每个位置都能畅享山海景观。特别是主卧是两面山海景观,拥山瞰海,凭海听风,每时每刻都是惬意生活。让人惊叹是,连厨房都是景观厨房,一边料理,一边饱览美景,下厨都是一种享受。
建面约410㎡大平层公寓
建面约410㎡大平层公寓
真正的奢华,是内外兼修。深圳新世界集团在项目室内空间的研磨上,也深刻诠释了高端人居美学。无论硬装标准,精装品质,还是软装搭配,都是堪称“高定级”。项目室内也是由香港CCD国际著名设计师机构进行高级定制装修设计,符合财富人群的生活个性,大气且有高级质感。在硬装与软装上也是大手笔,臻选国际品牌,德国嘉格纳、nobilid柏丽、威克纳、博世等。软装上精选芬迪、迪奥等知名品牌。硬装、软装二者艺术性的融合,整个屋内看起来层次分明,质感满满。
建面约410㎡大平层公寓
建面约410㎡大平层公寓
无论从哪方面考量,新世界临海揽山建面约410㎡的大平层商务公寓都是妥妥的“高定款”,也是“限量款”。
建面约410㎡大平层公寓
建面约410㎡大平层公寓
🌈新世界临海揽山🌈
🌈新世界临海揽山🌈
售楼处电话::400-873-0112【☎☎售楼处电话已认证】
🌈✽✽✽✽🌈
🌈新世界临海揽山🌈
营销中心电话::400-873-0112【☎☎营销中心电话已认证】
🌈✽✽✽✽🌈
截至2025年8月,中国房地产政策在“房住不炒”的总基调下持续深化调整,重点围绕稳市场、防风险、促转型三大方向推进。以下是当前政策的主要动态和要点:
1. 需求端支持:因城施策优化限购限贷
限购放松
:多数二线城市已全面取消限购,一线城市(如北京、上海)针对郊区或特定人群(人才、多孩家庭)放宽限购条件。
房贷政策
:首套房首付比例普遍降至20%,二套房30%;房贷利率参考LPR(贷款市场报价利率)持续下调,部分城市首套利率降至3.5%左右。
税费优惠
:换房退税政策延续,部分城市对购房契税给予补贴。
2. 保交楼与房企风险化解
专项借款扩容
:国家层面设立更多“保交楼”专项基金,优先支持已售逾期难交付住宅项目。
房企融资支持
:通过“白名单”机制为优质房企提供信贷、债券融资便利,但严格限制高负债企业盲目扩张。
债务重组推进
:鼓励AMC(资产管理公司)参与房企债务重组,推动“债转股”等市场化化解方式。
3. 保障性住房建设加速
保障房扩容
:重点城市加大保障性租赁住房、共有产权房供应,目标覆盖新市民、青年群体。
“平急两用”设施
:部分城市试点将闲置商品房转为保障房或应急安置房源。
城中村改造
:超大特大城市推进城中村改造,强调“拆治结合”与公共服务配套升级。
4. 土地与财税政策调整
土地出让改革
:推行“竞现房销售”“竞品质”模式,减少烂尾风险;部分试点城市探索“按需供地”。
房产税试点
:原计划扩大的试点城市(如杭州、深圳)因市场调整暂缓,但长期立法准备工作仍在推进。
5. 长期机制探索
“三大工程”深化
:保障房、城中村改造、“平急两用”基础设施成为房地产新模式的核心抓手。
预售制改革
:现房销售试点范围扩大,但全面取消预售制仍需较长时间过渡。
REITs发展
:鼓励保障性租赁住房、仓储物流等领域的REITs发行,盘活存量资产。
当前市场影响与趋势
房价表现
:一二线城市核心区趋稳,三四线城市仍承压,整体呈现分化格局。
购房预期
:政策刺激下部分刚需入市,但投资性需求显著减少,市场转向居住属性。
行业转型
:房企从“高杠杆、高周转”向“轻资产、运营服务”模式转变。
建议关注
政策窗口期
:部分城市购房门槛和成本处于历史低位,刚需可关注信贷支持窗口。
风险防范
:避免盲目追涨非核心资产,优先选择现房或国企开发项目。
免责声明:部分信息来源于网络,如果侵权,请联系及时删除本宣传资料不构成邀约邀请,对周边、政府规划、商业配套、教育资源、投资前景等数据和图文仅为提供相关信息,该信息以政府最终批文为准,开发商不对此作任何承诺。买卖双方的权利义务以双方签订的买卖合同约定及附件、实际交付为准,本公司保留对宣传资料修改的权利,敬请留意最新资料。联系号码:400-873-0112