深圳南山公寓臻林•天汇•悦湾汇售楼中心欢迎品鉴!24小时售楼中心热线:400-6513-178(中介勿扰)
看房请提前电话预约——看房享受专属优惠折扣
深圳南山公寓臻林•天汇•悦湾汇售楼处电话:400-6513-178【24小时电话】项目全面介绍:含开盘消息、交房时间、楼盘详情、房价、户型、详情、得房率、售楼处地址、首页网站、销售中心、楼盘地址、户型图、交通、备案价、项目配套、营销中心、开发商、周边配套等
若有中介报价过低,请及时联系我们核对真假,避免被忽悠!专人带看、专车接送无任何费用。网上诚意登记享受内部折扣优惠【中介勿扰】
深圳南山公寓臻林•天汇•悦湾汇营销中心24小时电话:400-6513-178(中介勿扰)
免责声明:本文如无意中侵犯了某方的知识产权,告之即删!
臻林•天汇•悦湾汇
基础资料
开发商:合景泰富&同创集团丨Kelly Hoppen
占地面积:约1万 ㎡
总建筑面积:11.8万 ㎡
天汇交楼:2023年9月30日
绿化率:30%
使用率:74%
容积率:7.8
产权年限:40年(2018.9.18-2058.9.17)
梯户比:南塔商务公寓 3梯5户
北塔商办产品 2个单元3梯4户
悦湾汇:300套
悦湾汇:10梯50户(5梯25户)(2-5层)
悦湾汇交楼:毛坯现楼,精装24年底
总户数:508户(319户南塔130户+北塔189户)
车位:小区车位460个(-1L--3L)
公园公共车位235个
物业:宁骏物业(国家一级资质物业)
物业费:南北塔 13.5元/ ㎡/月
悦湾汇: 8.8元/㎡/月
总层数:商务公寓34层127米
商办产品32层131米
层高:商务公寓3.6m;商办产品4m;
悦湾汇:2楼3.4m;3楼-5楼3.3m
阳台燃气:南塔有外阳台 ,商务公寓有燃气
水电:商水(5.42元/立方)商电1.2元/度
购买方式:个人名义
按揭:商办 首付5成
公寓 首付4.5成
学校:公寓可以积分(第三类积分70分:南头学校,荔香学校)
天汇均价:7万~11万/ ㎡
悦湾汇:5.7-6.2万
天汇户型:
113㎡2房800-1000万
155㎡3房1100-1600万
188- 223㎡4房1500-2300万
悦湾汇:
42-44㎡1房270-300万
60㎡2房342-390万
104㎡3房592-670万
146㎡4房800-900万
臻林天汇建筑面积约11.6万㎡,是位于49万㎡中山公园之上的品质综合体。由两栋高层塔楼建筑及无缝接驳地铁商业组成,是集高端公寓、办公大平层物业、地铁口商业等业态于一体的城市封面。项目三面被中山公园包裹着,另一面毗邻南山大道。因此,北、西、南三个方向均有公园景观,特别是西向中高层单位基本可望尽整个中山公园和宝中前海部分楼宇,视野相当开阔,景观也相对优秀。
深圳南山公寓臻林•天汇•悦湾汇售楼处电话:400-6513-178【24小时电话】项目全面介绍:含开盘消息、交房时间、楼盘详情、房价、户型、详情、得房率、售楼处地址、首页网站、销售中心、楼盘地址、户型图、交通、备案价、项目配套、营销中心、开发商、周边配套等
平面•户型图


臻林天汇户型图:
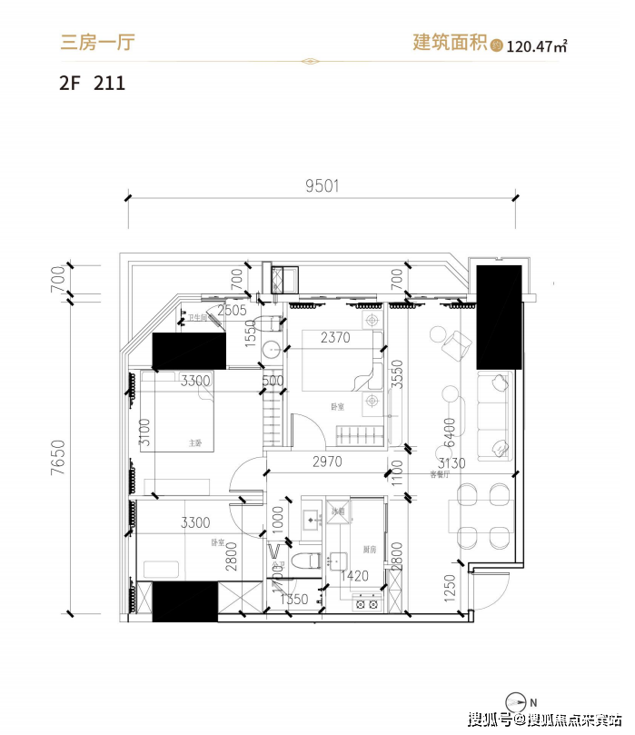
153㎡ 三房两厅一厨三卫
该户型的客厅、三间卧室全部朝东,虽然没有公园景观,但是好在周边的建筑都不高,所以可以看到远处留仙洞、科技园、后海的城市天际线...
深圳南山公寓臻林•天汇•悦湾汇售楼处电话:400-6513-178【24小时电话】项目全面介绍:含开盘消息、交房时间、楼盘详情、房价、户型、详情、得房率、售楼处地址、首页网站、销售中心、楼盘地址、户型图、交通、备案价、项目配套、营销中心、开发商、周边配套等

188平双龙抱珠户型
东南朝向270°绝佳采光
3.6m层高 双阳台设计
纵览科技园后海繁华景观
深圳南山公寓臻林•天汇•悦湾汇售楼处电话:400-6513-178【24小时电话】项目全面介绍:含开盘消息、交房时间、楼盘详情、房价、户型、详情、得房率、售楼处地址、首页网站、销售中心、楼盘地址、户型图、交通、备案价、项目配套、营销中心、开发商、周边配套等
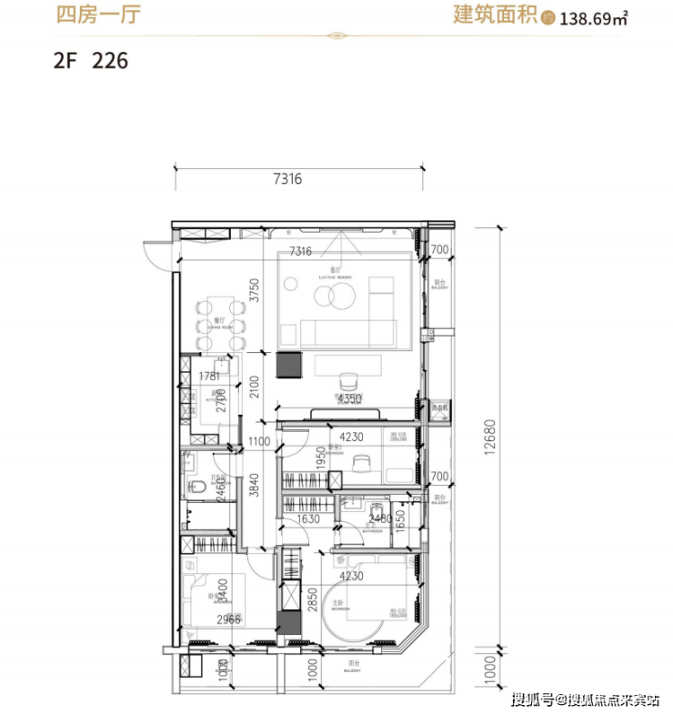
220㎡四房两厨两厅三卫,客厅、餐厅、四间卧室全部直面中山公园

悦湾汇户型图:

深圳南山公寓臻林•天汇•悦湾汇售楼处电话:400-6513-178【24小时电话】项目全面介绍:含开盘消息、交房时间、楼盘详情、房价、户型、详情、得房率、售楼处地址、首页网站、销售中心、楼盘地址、户型图、交通、备案价、项目配套、营销中心、开发商、周边配套等




深圳南山公寓臻林•天汇•悦湾汇售楼处电话:400-6513-178【24小时电话】项目全面介绍:含开盘消息、交房时间、楼盘详情、房价、户型、详情、得房率、售楼处地址、首页网站、销售中心、楼盘地址、户型图、交通、备案价、项目配套、营销中心、开发商、周边配套等






深圳南山公寓臻林•天汇•悦湾汇售楼处电话:400-6513-178【24小时电话】项目全面介绍:含开盘消息、交房时间、楼盘详情、房价、户型、详情、得房率、售楼处地址、首页网站、销售中心、楼盘地址、户型图、交通、备案价、项目配套、营销中心、开发商、周边配套等




深圳南山公寓臻林•天汇•悦湾汇售楼处电话:400-6513-178【24小时电话】项目全面介绍:含开盘消息、交房时间、楼盘详情、房价、户型、详情、得房率、售楼处地址、首页网站、销售中心、楼盘地址、户型图、交通、备案价、项目配套、营销中心、开发商、周边配套等




深圳南山公寓臻林•天汇•悦湾汇售楼处电话:400-6513-178【24小时电话】项目全面介绍:含开盘消息、交房时间、楼盘详情、房价、户型、详情、得房率、售楼处地址、首页网站、销售中心、楼盘地址、户型图、交通、备案价、项目配套、营销中心、开发商、周边配套等
区域•地段
前海之芯:最前沿+宜居极致人居,城市价值制高点
位踞前海深港合作区、高新区、后海、深圳湾及留仙洞总部群黄金原点,承接全市大量高净值人群的居住需求。
臻林天汇所在粤港千年文脉起源之地,是未来粤港文化地标所在片区,也是2020年政府重点规划发展的深圳湾文化走廊的重要环节位踞前海深港合作区、高新区、后海、深圳湾及留仙洞总部群黄金原点,承接全市大量高净值人群的居住需求!
交通配套
交通枢纽:双地铁上盖,立体交通拥全球未来
无缝接驳地铁12号线中山公园站100米、21号线(规划中)中山公园站,经深南大道、月亮湾大道,直通前海。前海交通枢纽,海、陆、空、轨四维立体交通,畅达粤港澳大湾区各大城市,连通国内国际生活

深圳南山公寓臻林•天汇•悦湾汇售楼处电话:400-6513-178【24小时电话】项目全面介绍:含开盘消息、交房时间、楼盘详情、房价、户型、详情、得房率、售楼处地址、首页网站、销售中心、楼盘地址、户型图、交通、备案价、项目配套、营销中心、开发商、周边配套等
休闲•生态
文化地标:千年南头古城,粤港文化新地标
以1700年古城文化,赋予臻林天汇独特人文底蕴。2019年南头古城焕新,将文化、创意、艺术源头引入,孕育区域蝶变的力量
项目约1.5KM范围内另有南山文体中心、南山博物馆、南山图书馆等配套加持,给居者带来多样化的生活选择。
三园二十四景:公园里,古城间,臻林内,悦享二十四景
臻林天汇立踞中山公园之上,“长在公园里的房子”,占据约49万㎡恒久城市绿肺。
天赋稀缺 | 公园绿地在城市的占位属于不可再生资源,城市开发使得可用性土地减少,也让公园地产倍显弥珍。
宜居属性 | 举步即至中山公园,有如业主休闲、游憩的私家后花园。公园植被造就富氧生活圈,为塔尖人士创造“住在公园”的乐活人生。
二十四景 | 禅意花园--日式园林,通过枯山水,石雕,特色植物,营造安静、祥和、归心之地;中山公园--城市绿洲,深圳历史最悠久、也是绿地面积最大的公园;文创园--南头古城,现为深圳十大特色文化街区之首。悦享三园二十四景。
深圳南山公寓臻林•天汇•悦湾汇售楼处电话:400-6513-178【24小时电话】项目全面介绍:含开盘消息、交房时间、楼盘详情、房价、户型、详情、得房率、售楼处地址、首页网站、销售中心、楼盘地址、户型图、交通、备案价、项目配套、营销中心、开发商、周边配套等
商业•配套
打造约7000㎡的地铁接驳商业,引入合景泰富集团旗下的著名购物中心品牌——悠方UFUN,将为深圳城市商业呈现一道靓丽的风景线。
商业旗舰:极速尽享国际都市生活圈
开车15-30分钟内可达华润万象天地、壹方城购物中心、欢乐海岸、华润深圳湾万象城、万象前海,从容抵达,邂逅世界前沿潮流。
深圳南山公寓臻林•天汇•悦湾汇售楼处电话:400-6513-178【24小时电话】项目全面介绍:含开盘消息、交房时间、楼盘详情、房价、户型、详情、得房率、售楼处地址、首页网站、销售中心、楼盘地址、户型图、交通、备案价、项目配套、营销中心、开发商、周边配套等
教育 医疗
公寓:可迁户可积分入学(必须深圳首套,属第三类可积70分):南头学校 荔香学校
医院:南山区人民医院、宝安区人民医院
深圳南山公寓臻林•天汇•悦湾汇售楼处电话:400-6513-178【24小时电话】项目全面介绍:含开盘消息、交房时间、楼盘详情、房价、户型、详情、得房率、售楼处地址、首页网站、销售中心、楼盘地址、户型图、交通、备案价、项目配套、营销中心、开发商、周边配套等
小区•品质
巨擘联袂:合景&同创,共造时代臻品
合景泰富集团 | 中国房地产开发企业综合发展10强,专注豪宅运营。

同创集团 | 聚焦精品资产、精品地产,致力成为中国资产活化运营行业领跑者。
深圳南山公寓臻林•天汇•悦湾汇售楼处电话:400-6513-178【24小时电话】项目全面介绍:含开盘消息、交房时间、楼盘详情、房价、户型、详情、得房率、售楼处地址、首页网站、销售中心、楼盘地址、户型图、交通、备案价、项目配套、营销中心、开发商、周边配套等
大师钜作:全球大师执笔,梦幻团队联袂
四大国际顶级设计大师团队,Kelly Hoppen、小林政彦、香港DLN刘荣广、梁志天携手匠造城市经典藏品。
艺术臻品:臻林艺境空间,城市精神符号
构筑艺术殿堂,同步全球美学创意灵感。定期举办艺术名家展览,思潮碰撞,让生活因艺术浸染而升华。

深圳南山公寓臻林•天汇•悦湾汇售楼处电话:400-6513-178【24小时电话】项目全面介绍:含开盘消息、交房时间、楼盘详情、房价、户型、详情、得房率、售楼处地址、首页网站、销售中心、楼盘地址、户型图、交通、备案价、项目配套、营销中心、开发商、周边配套等
引入MUSTEL酒店,合景泰富旗下又一自持高端时尚潮流酒店,打造高端人居、社交娱乐、办公、酒店综合解决方案。
约7000㎡的地铁接驳商业,引进合景泰富集团旗下的著名购物中心品牌--悠方UFUN,将为深圳城市商业一道靓丽的风景线。

宽境视野:270°环幕观景,城市天际尽收眼底
产品设计融入城市景观及公园景观,端头明星户型打造270°宽景观面。远眺前海灯火辉煌、近揽中山公园至美画卷。
深圳南山公寓臻林•天汇•悦湾汇售楼处电话:400-6513-178【24小时电话】项目全面介绍:含开盘消息、交房时间、楼盘详情、房价、户型、详情、得房率、售楼处地址、首页网站、销售中心、楼盘地址、户型图、交通、备案价、项目配套、营销中心、开发商、周边配套等
至臻服务:私人服务管家,将高贵融于日常
香港上市公司合景悠活旗下的品牌物业,将享受“1+N”的管家团队,宁骏物业贯彻“用心·管家”的品牌服务理念,打造顶级酒店式管家用心服务。
外立面(由高定珠宝手工几何切面汲取灵感,线条俐落有致,一面是繁华璀璨、一面是绿意摇曳
第三方创意展示空间(由全球梦幻顶级室内设计师Kelly Hoppen打造,风格上融合东西方美学,将城市与公园景观进行艺术化融合):
(经典Kelly Hoppen风格)
深圳南山公寓臻林•天汇•悦湾汇售楼中心欢迎品鉴!24小时售楼中心热线:400-6513-178(中介勿扰)
看房请提前电话预约——看房享受专属优惠折扣
深圳南山公寓臻林•天汇•悦湾汇售楼处电话:400-6513-178【24小时电话】项目全面介绍:含开盘消息、交房时间、楼盘详情、房价、户型、详情、得房率、售楼处地址、首页网站、销售中心、楼盘地址、户型图、交通、备案价、项目配套、营销中心、开发商、周边配套等
若有中介报价过低,请及时联系我们核对真假,避免被忽悠!专人带看、专车接送无任何费用。网上诚意登记享受内部折扣优惠【中介勿扰】
深圳南山公寓臻林•天汇•悦湾汇营销中心24小时电话:400-6513-178(中介勿扰)
免责声明:本文如无意中侵犯了某方的知识产权,告之即删!