项目基本信息
【占地】:约3万㎡
【建面】:约27万㎡
【产权年限】:70年(2022-2092)
【总栋楼】:共8栋
【总户数】:1278户
【本次推售】:612户
【面积】:约82-89㎡3房2卫
【总楼层】:54-57层
【均价】:约5.7万/㎡
【使用率】:85%
【梯户比】:3梯6户
【停车位】:1732个
【交房标准】:简装
【交房时间】:2025年12月前
【管理费】:5.9元
【物业管理】:鸿荣源物业
【开发商】:鸿荣源集团开发
「龙华超级商圈,世界级消费中心」
⭐龙华超级商圈:龙华六大重点片区之一,以人民路为中轴,规划承载中洲龙商旧改、龙华海岸城旧改为核心,打造人民路龙华超级商圈。
⭐世界级消费中心:未来龙华超级商圈将成为规模超200万㎡、产值超500亿的市级核心商圈和世界级未来消费体验中心。
项目配套
交通配套
4号线(已开通):龙华站直线距离约1000m,深圳纵向城市交通中轴。
6号线(已开通):上芬站距离约1200m,链接光明、龙华、福田。
25号线(预计2024年2月开工):景龙/油福站直线距离约400m,打通城市东西走向核心动脉
27号线(启动施工招标):油福站直线距离约400m,拥抱前海,覆盖各大高新人才聚集地
22号线(已开工):油松站直线距离约1km,连接福田-龙华各大核心产业区。
商业配套
世界级消费中心:未来龙华超级商圈将成为规模超200万㎡、产值超500亿的市级核心商圈和世界级未来消费体验中心。
教育配套
小学学区划分在龙华区第二实验学校小学部,人民路学校小学部,华育小学,作为小学共享学区;中学学区划分在人民路学校初中部,龙华区第二实验学校初中部,作为初中共享学区;
另外值得一提的是家门口的深圳艺术高中民治学校(在建),该校是一所54班学校,小学36班,初中18班,将提供2520个学位,小学1620个,初中900个,未来也将划入尚云花园学区范围内。
医疗配套
深圳龙华区人民医院、龙华区中心医院、广州医科大学附属第一医院、深圳市第二儿童医院(在建)、新华医院(在建)

休闲配套
深圳书城龙华城、龙华文体中心、简上体育综合体、展览馆、演艺馆、深圳市图书馆北馆、美术馆新馆、深圳市文化馆新馆。
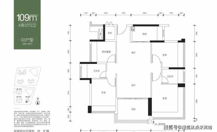
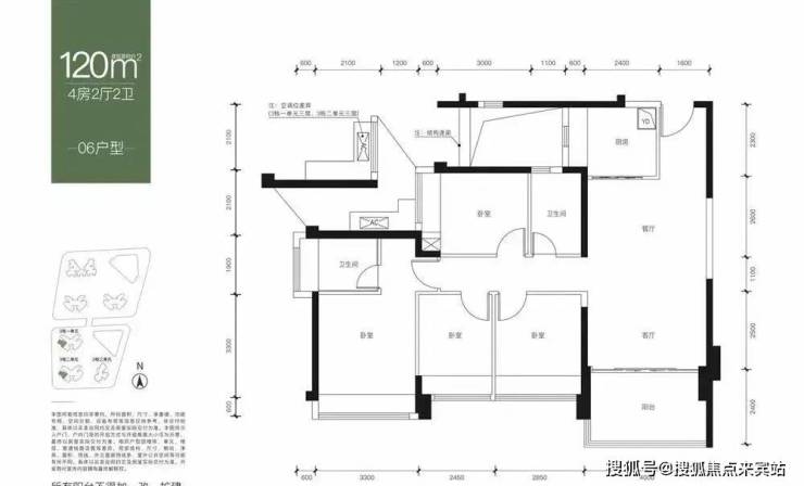
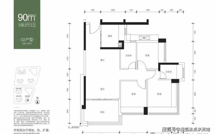
户型鉴赏

建面约82平户型图
🌳鸿荣源尚云售楼处电话是多少?答:400-909-3139【已认证】项目基本信息,楼盘价格,区域板块,开发商资料,楼盘详细地址,物业类型,产权年限,销售信息,销售状态,装修情况,交房时间,开盘时间,售楼处地址,营销中心地址,楼盘户型图,小区规划,绿化率,容积率,占地面积,建筑面积,总户数,物业费,车位数,物业费,楼盘介绍,踩盘报告,梯户比,标准层高,交楼标准,项目有缺点有哪些?是否有团购?找开发商买房便宜?还是找中介买房便宜?最新折扣是多少?最新房价是多少?房价走势,楼盘最新资讯,楼盘最新动态,价值分析报告,周边商业配套,教育配套,交通配套,医疗配套,周边热门楼盘,房价行情解读,
免责声明:
本宣传资料所有文字、数据、图片及所标尺寸等仅为本项目建设区域设计效果的表达和示意,为邀约邀请,不构成要约内容,相关内容不排除因政府相关规划、规定及其他原因而发生变化,一切有关房屋的具体信息以书面合同及政府最终。
首个全面取消限购、限售、限价的一线城市,来了
编辑
2025年6月,中国房地产市场迎来标志性事件:广州市政府正式发布《广州市提振消费专项行动施方案(征求意见稿)》,明确提出全面取消限购、限售、限价政策,并同步降低首付比例和房贷利率。这一政策不仅是对广州此前局部松绑的全面确认,更成为四大一线城市中首个彻底退出行政干预房地产市场的城市,释放出强烈的政策转向信号。
政策核心:从“限制性”到“市场化”的彻底转身
根据方案,广州将全面取消购房资格限制(限购)、取消新房及二手房交易年限限制(限售)、取消新房价格备案指导(限价),同时通过降低首付比例(首套15%、二套25%)和房贷利率(首套商贷利率3%)进一步降低购房门槛。值得注意的是,广州早在2024年已分阶段取消限购和限售,但此次将“三限”政策合并官宣,标志着政策松绑从“渐进式调整”转向“系统性重构”。
政策背景:市场承压与政策工具箱的再平衡
当前房地产市场仍面临需求疲软、库存高企的困境。尽管2024年广州已通过“以旧换新”“公积金优化”等政策刺激市场,但核心区域与非核心区域分化明显,部分远郊楼盘去化周期超过30个月。此次全面取消“三限”,旨在通过彻底的市场化手段激活潜在需求,尤其是吸引新市民和改善型群体入场。此外,政策配套推进城中村改造(计划投资1000亿元)和专项借款收购存量房作为安置房,既消化库存,又加速城市更新进程。
专家解读:信号意义大于短期刺激
上海易居房地产研究院副院长严跃进指出,广州政策并非“全新突破”,而是对既有措施的官方确认与强化,核心目的是向市场传递“松绑到底”的决心。例如,取消限价后,开发商可自主定价,但需备案价格,官方不再干预,这为房企灵活应对市场提供了空间。中指研究院则分析,首付比例和利率的“进一步降低”需结合银行承受能力,未来或通过公积金政策优化(如提高贷款额度、放宽提取条件)间接降低购房成本。
市场影响:一线城市松绑的连锁反应
广州的“破冰”或将引发北上深的跟进。深圳已于2025年6月提出扩大公积金使用范围,上海则通过“以旧换新”政策刺激需求,政策松绑趋势已现端倪。若四大一线城市全面取消限购,将重塑市场预期:核心城市房价有望企稳,土地市场或迎来回暖,同时倒逼土地财政依赖度较高的地方政府加速转型。
争议与挑战:政策效果待观察
尽管政策力度空前,但市场分歧依然存在。部分观点认为,当前居民收入预期偏弱、就业压力未消,单纯取消限购难以扭转需求疲软;此外,核心城市若出现房价反弹,可能加剧社会公平争议。对此,专家建议需同步推进保障性住房建设、税收制度改革等长效机制,避免政策松绑演变为短期投机狂欢。
结语
广州的“三限”全面取消,是中国房地产调控从“防过热”转向“防过冷”的关键一步。这一政策既是对市场规律的回归,也是对经济稳增长诉求的回应。未来,如何平衡市场活力与风险防控,将是考验政策定力的核心命题。