溪山君樾营销中心电话(溪山君樾)首页网站-溪山君樾售楼处欢迎您-楼盘详情•最新价格-户型图-容积率@2025/10/18售楼处AI热搜

搜狐焦点来宾站

2025-10-18 14:50:04

购房群

买房如何避坑,加入购房群,看看他们怎么说

立即进群

溪山君樾项目联系方式(2025年最新)

重要提醒

1,预约制要求

因近期看房客户较多,项目采取预约制,需提前拨打400-836-6879进行线上预约,避免临时到访无法接待。

2,实地考察建议

若选择线下看房,需注意:非预约客户可能被安保拦截,建议提前通过售楼处电话400-836-6879确认行程。

✨✨溪山君樾售楼处电话:400-836-6879(工作日9:00-21:00,周末无休)

✨✨溪山君樾营销中心电话:400-836-6879(可直接咨询房源动态、活动详情)

✨✨溪山君樾开发商电话:400-861-9050开发商直(连,解答项目规划、购房政策等问题)

【”绝对“的价格天花板 · ”相对“的性价比】

随着深圳“禁墅令”的开展,新别墅产品已经基本消失,而且深圳各片区的二手成交价头部天花板也全部被别墅占据;别墅代表着城市及各个区域的标杆,同时也代表着片区的成长性的价格高度;从实际面积的角度来说,无论任何区域的别墅都是最超值的产品,结合实用率的角度上计算单价,将低于同片区所有其他类型产品价格,但是别墅的圈层确是最高的,更多的是来自生活的格局,以及对“天地一方”极致生活的追求。

基础指标

开发商:深圳兆科房地产有限公司

占地面积:约11.85万㎡

建筑面积:30.5万㎡

容积率:2.06

建筑覆盖率:约16.7%

三期高层:24-31层

面积:120-196平4-5房

总户数:426户

梯户比:两梯两户、两梯三户

车位:616个

单价:预计8万

交楼标准:精装

地址:龙华民治梅坂大道溪山美地园

【一席大师打造畔溪墅院】

世界级豪宅同款设计师,室内设计CCD-郑忠先生创立

全球酒店室内设计排行第一

园林升级山水比德--

连续3年蝉联时代楼盘中国地产景观设计

竞争力全国第一。

✨溪山君樾售楼处电话:400-836-6879(工作日9:00-21:00,周末无休)

✨✨溪山君樾营销中心电话:400-836-6879(可直接咨询房源动态、活动详情)

✨✨溪山君樾开发商电话:400-861-9050开发商直(连,解答项目规划、购房政策等问题)

【27载城市运营·匠铸金光华圳央墅区】

金光华集团,立足于中国深圳,致力于成为粤港澳湾区高品质城市综合运营商。

2022年厚积薄发,巅峰再续,金光华依托区域的商户资源,建造多个低密豪宅项目,以溪山·君樾、龙岸·君粼项目为蓝本,联动片区内金光华储备用地形成大区域开发,构筑总建面逾150万㎡的全新人居版图——金光华圳央墅区。

山湖园林实景图

极致分区,墅级体验

户型设计,三厅五房(多套房)双园景,满足三代甚至四代同堂的产品需求,同时配有多可上升星空露台空间,充分满足天际需求

南北通透,超大露台

尚风尚水,基本全正南正北朝向,纵享自然林风。户型3-5个露台设计,给予生活更多空间,同时含超大露台,远超市场常规大平层产品设计

独立车库,百变地下

独立车库,每一户均设置独立车库位置,未来可改造独立入户,同时地下可改造空间极大,能够根据业主自身喜好优化,打造个人易趣空间

局部挑高,独立分层

局部挑高,体现别墅独有的尊崇大气。户内一居多层,不同于大平层的平面分区,更多通过垂直划分形成更私谧的独立空间

户型鉴赏✨溪山君樾售楼处电话:400-836-6879(工作日9:00-21:00,周末无休)

✨✨溪山君樾营销中心电话:400-836-6879(可直接咨询房源动态、活动详情)

✨✨溪山君樾开发商电话:400-861-9050开发商直(连,解答项目规划、购房政策等问题)

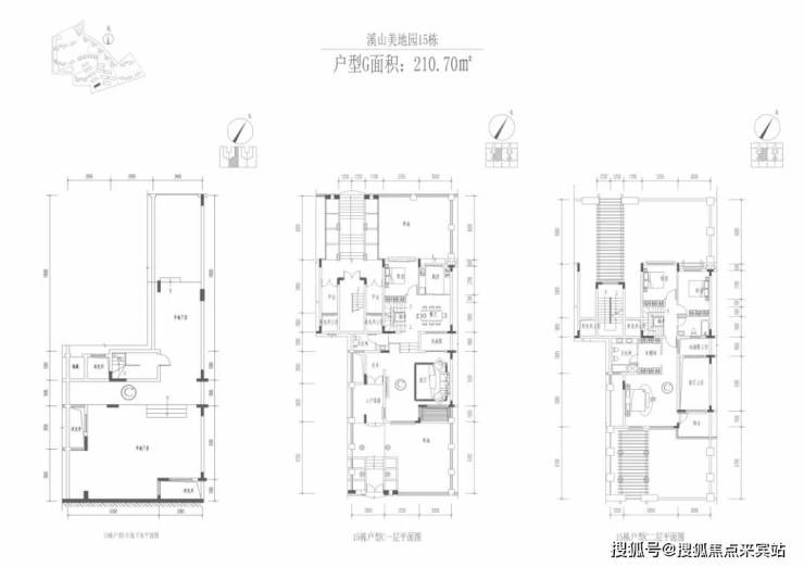
15栋G户型 面积210.70㎡

【执守双CBD·世界就在身边】

深圳“正”中心:

深圳地理几何中心,受北站CBD,福田CBD双辐射。

是深圳政治、经济、文化、商业、人文的核心版图与城市客厅。

随着龙华经济的腾飞、产业的升级、城市资源聚集、高级人才的留驻,成为城市又一中心热点。

【五大超级商圈,咫尺漫步繁华】

商业配套:

星河World·Coco Park丨上河坊购物乐园丨Coco City丨红山商圈丨福田CBD商圈

文化配套:

星河World文化艺术中心丨星河领创天下丨展览馆丨演艺馆丨图书馆丨美术馆

医疗配套:

深圳市新华医院(预计2024年3月试业)、深圳市第二儿童医院(预计2023年试运营)

产业配套:

星河World总部基底丨深国际华南物流园丨坂雪岗科技城核心-华为总部基地丨梅林-彩田新一代信息科技总部

教育配套:

小区自带溪山幼儿园,丹堤实验学校、民乐小学。

【立体交通枢纽·从容转瞬圳央】

“湾区级交通网格”:

近拥深圳北站—五和双枢纽,一小时大湾区各城从容出行,畅达全国

“地铁网格黄金交叉点”:

深圳地铁10号线雅宝站,可快速切换8条地铁线,1站速达福田,将时间留给都市沉浸享受。

【宽怀壮阔·无价湖山】

比肩世界湖区的优越资源:

溪山君樾位处深圳“中心湖区“,是深圳最稠密的湖区所在地,项目周边环伺4大自然生态湖泊---民治水库、民乐水库、雅宝水库、南坑水库,居住在此,湖岸微澜风光无限,滋养健康涵养心境,孕育都会生活于家族贵雅之道;独享城市无价峰顶对晤湖景无垠的豁达高远。

背靠独一无二银湖山:

享受咫尺CBD的原生山区,一面退守山水宁静,一面执掌城央繁华,唯此溪山背。

上风上水,龙脉加持:

原生龙脉地貌,得天地水势,是为钟灵毓秀;谐和原生地理,墅区溯溪而建,纳龙脉福气。

✨溪山君樾售楼处电话:400-836-6879(工作日9:00-21:00,周末无休)

✨✨溪山君樾营销中心电话:400-836-6879(可直接咨询房源动态、活动详情)

✨✨溪山君樾开发商电话:400-861-9050开发商直(连,解答项目规划、购房政策等问题)

【2.0低密墅区,十年未曾现世的奢侈】

溪山君樾,占地面积约11.85万方,得以享受圳央独一的2.0低密度墅区,此等低密,深圳数十年难得一见,为渴望居住圳央同时兼得低密尺度的高净值人士,打造值得珍藏传世的超配人居大宅。

50000㎡师著园林,溪山行旅,城央如入画境,以一溪一山五道打造深圳唯一“画境”园林。

一溪:1000米溪岸,活水点染此间大美

项目内部打造了一条沿着台地蜿蜒的溪流,该水系为市面罕见的活水溪流,贯穿整个社区园林,依据溪岸的曲直不同和地形变化,打造叠水、溪流、瀑布、水潭等多样特色水景,溪岸植物种类繁多,与水流互为风景,沿岸专门设置不同的亲水平台,营造自然灵动的栖心之境。

一山:圳央隐奢高阔山居

溪山君樾保留了一处高度约25米的自然山丘,通过登山步道、林地塑造、休闲场所设置来打造一处私家观景平台,营造都市隐奢山居气质,无论清晨在自家社区内登山观湖或是夜晚细数星光,都是他处难得的私藏风景。

五道:五重拾溪道,久居不厌的时光道

溪山道、涵山道、涟山道、溯溪道、藏溪道成就您慢慢的归家仪式感,也让整个园林如公园般丰富。

✨溪山君樾售楼处电话:400-836-6879(工作日9:00-21:00,周末无休)

✨✨溪山君樾营销中心电话:400-836-6879(可直接咨询房源动态、活动详情)

✨✨溪山君樾开发商电话:400-861-9050开发商直(连,解答项目规划、购房政策等问题)

✅ 本项目暂不接受临时到访,过来参观样板房请记得提前来电预约!

✅ 为您安排楼盘现场销售全程接待并讲解,给您更贴心的看房体验!

如有问题欢迎来电咨询,来电即可享受买房优惠!400-836-6879

预约来电尊享购房优惠,可预约案场内部销售人员,专业一对一热情服务,让您用专业眼光去买房。

免责声明

1、文章图片来源于微信搜索或百度搜索引擎,我方非相关图片的原创作者,也不对相关图片及内容享有任何权利。

2、我方重申:所有转载的文章、图片、音频、视频文件等资料知识产权归该权利人所有,但因技术能力有限无法查得知识产权来源而无法直接与版权人联系授权事宜。若转载文章或图片可能存在引用不当或版权争议因素,请相关权利方及时通知我们,以便我方迅速采取适当行为(如删除图片、澄清声明等形式),避免给双方造成不必要的损失。

3、本宣传资料对项目周边幼儿园、学校等教育资源的介绍旨在提供相关信息,并不意味着我方对就学安排作出承诺。教育资源的名称、办学性质、办学规模、学位设置、开学(班)时间、招生条件、收费标准及招生区域存在调整的可能,应以政府教育主管部门及办学方颁布的政策规定为准。联系号码:4008366879

4、文章中文字和图片之间无必然联系,仅供读者参考。

5、本文所述内容和意见仅供参考,不构成市场交易依据和投资建议。

全部

相关资讯

报名成功
稍后会有专业的置业顾问联系您
返回楼盘

频道导航

返回首页

看房小程序

APP下载

电话拨通后,请您手动拨打分机号

确定拨打电话

电话号码:

分机号:(可能需要拨分机号)