【深度分析】华兴滨江锦宸真实口碑如何?业主爆料+周边配套实测

搜狐焦点乐山站

2025-07-23 07:34:00

购房群

买房如何避坑,加入购房群,看看他们怎么说

立即进群

成都 华兴滨江锦宸【营销中心】:028-87777213「销售热线」

【置业顾问】:18613205563「微信同步」

【置业顾问】:19983517822「微信同步」

恭喜还没买房的朋友们!房贷利率又要降了!

5月LPR下调后,近日不少业主存量房贷利率纷纷迎来下调。

由于早年的房贷折扣力度大,很多人减点也高达几十甚至上百基点,因此不断有人晒出2.965%、2.375%、甚至2.23%的房贷利率:

大家也不必眼红,因为近期又有重磅信号——

下半年还会降准降息,降息幅度或达30BP,意味着房贷利率至少还有30BP的下调空间!

7月1日起,选择重定价周期为3个月或6个月的借款人(如季初或半年初重定价),其房贷利率已随5月LPR下调而自动降低。大部分业主的利率降至2.9-3.2%之间,也有少部分买房较早的业主,利率则降至更低,例如文章开头提到的2.23%。

不过,仅仅10个基点的LPR下调空间似乎还不够。

项目核心价值

主城稀缺现房:成都主城区罕有现房销售,即买即住,品质所见即所得。

低密滨江墅区:容积率仅1.5,30%绿地率,打造城南高端低密人居典范。

一线江景资源:西邻江安河,坐拥千米滨江景观,推窗即享自然与繁华。

品牌实力保障:华兴地产深耕成都26年,国家一级开发资质,已交付10个项目,服务6.3万业主。

交通优势

地铁:近地铁5号线骑龙站,便捷通达全城。

主干路网:

三横:天府五街、元秀路、华阳大道

三纵:剑南大道、华府大道、华秀路

立体交通:快速接驳高新南区、金融城等核心商圈。

三、醇熟生活配套

商业

2km范围内覆盖大润发商圈、世豪广场、银泰城,满足高端购物需求。

医疗

四川大学华西医院高新院区(2026年运营)

成都市第三人民医院高新院区(已批复)

生态

滨江公园(在建)、三江公园(在建)、骑龙公园(规划中)环绕,生态宜居。

优质教育资源

怡心第一实验学校(直线距离约900米)

成都教科院附属学校、成都七中高新校区等优质学府环伺,全龄教育无忧。

项目亮点总结

主城现房:规避期房风险,即买即住。

低密滨江:1.5容积率,30%绿地率,稀缺江景资源。

醇熟配套:商业、医疗、教育、生态全维覆盖。

产品力强:平层+墅境双产品线,精工细节领先市场。

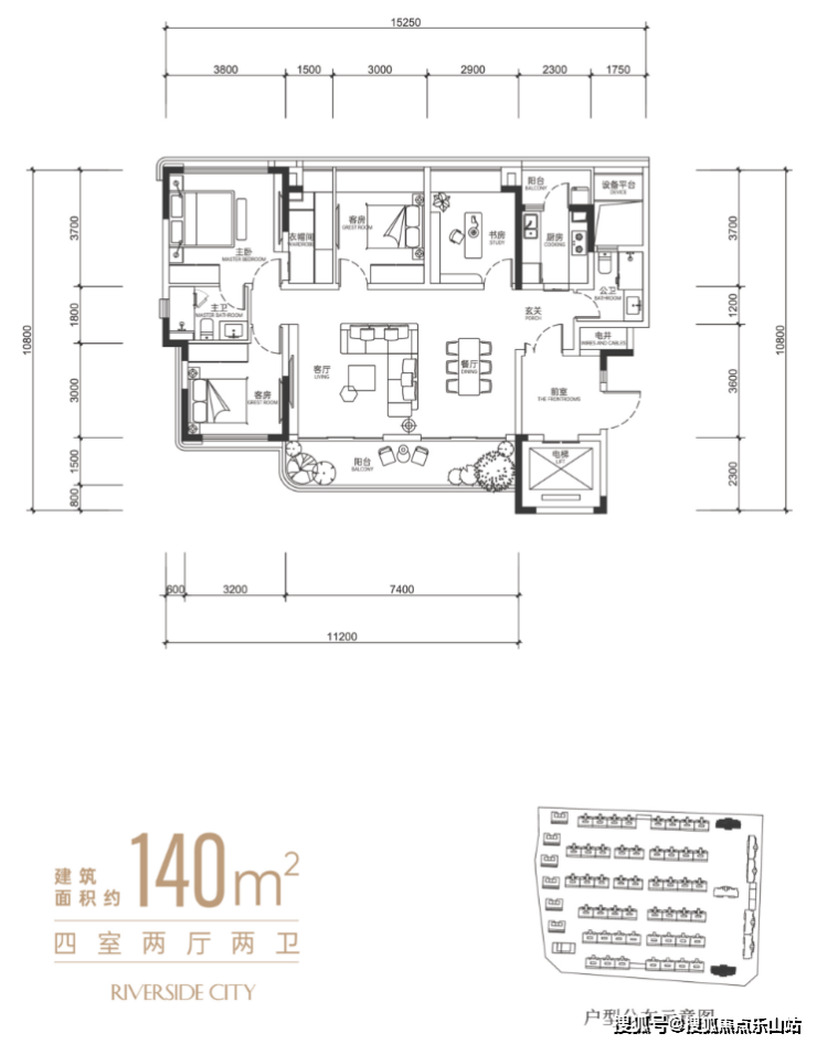
天际阔景平层(建面约129-159㎡)

梯户比2T2,私密性高,3.1米层高,空间通透。

全屋明管铺设、自流平地面、新风预留,装修便捷。

适合城市精英家庭,兼顾舒适与功能性。

江岸雅奢墅境(建面约174-325㎡)

低密墅质产品,3.5米层高,奢阔空间。

蓝钻花岗岩立面、酒店式入户大堂,彰显高端品质。

一线临江,私家庭院,满足高端改善需求。

成都 华兴滨江锦宸【营销中心】:028-87777213「销售热线」

【置业顾问】:18613205563「微信同步」

【置业顾问】:19983517822「微信同步」

全部

相关资讯

报名成功
稍后会有专业的置业顾问联系您
返回楼盘

频道导航

返回首页

看房小程序

APP下载

电话拨通后,请您手动拨打分机号

确定拨打电话

电话号码:

分机号:(可能需要拨分机号)