成都 梓潼宫汀澜【营销中心】:028-87777213「销售热线」
【置业顾问】:18613205563「微信同步」
【置业顾问】:19983517822「微信同步」
城市才具有抗风险能力,只有具备城市价值、城市概念的房子才最保值。
板块的价值,是由它的城市设计、形态规划、产业能级、投资强度,房地产总体的开发水平、定位共同决定的,不仅具备统一的价值属性,而且具备排他性。
当然,有些城市概念并不能完全转化成楼市概念,每一个行政区,都避免不了板块发育参差,无论是听起来很贵的高新区,还是老观念里穷搜搜的成华。但是这些地方的抗风险能力是很强的。
城市概念才能保住房价,而楼市概念只能随波逐流,只能拼行情,只能拼行情。
【项目概况】开发商:成都郫都区梓橦轨道城市发展有限公司,地址:成都·郫都区·地铁6号线(梓潼宫站),名称:梓潼宫TOD|汀蘭,占地:362亩(6期打造),在售住宅:79亩(一号板块1-8栋),拿地时间:2022年,开盘:2023年11月,交房时间:2024年12月,总户数:324户,绿地率:33%,容积率:1.5,产品:纯板式公园洋房,面积:133㎡-139㎡-154㎡都是套四,单价:18800元/㎡起,总价:133㎡:260-280万,139㎡:280-300万,154㎡:340-360万(122m²有1楼部分房源套三价格200万起),154平:临河,临公园,楼层:7-9层,层高:2.95-3M;梯户比:1T2,车位比例:1:1.6,物业:轨道万科,物业费:3.5元,银行:商业贷款,支持组合贷,温馨提示:一期高层/小高层:全部已售馨

【项目总平】
【户型鉴赏】
【133㎡户型:套四】
【板式结构】一梯两户,板楼设计,通风效果佳,双面采光。【LDKG】厨房、客厅、餐厅、阳台四个空间融为一体,是真正的LDKG设计。【流线设计,动静分区】休闲娱乐,私密生活,都做到动静分区,老人房远离主卧,让3代人共同生活有良好的私密空间。【港式横厅】餐娱一体,增加与家人相处时光。【超大阳台】约7米面宽大进深阳台,约8.3㎡生活阳台,延伸多样化生活场景,区域内独一无二;【无浪费空间】多数动线纳入客户面积,零浪费空间。
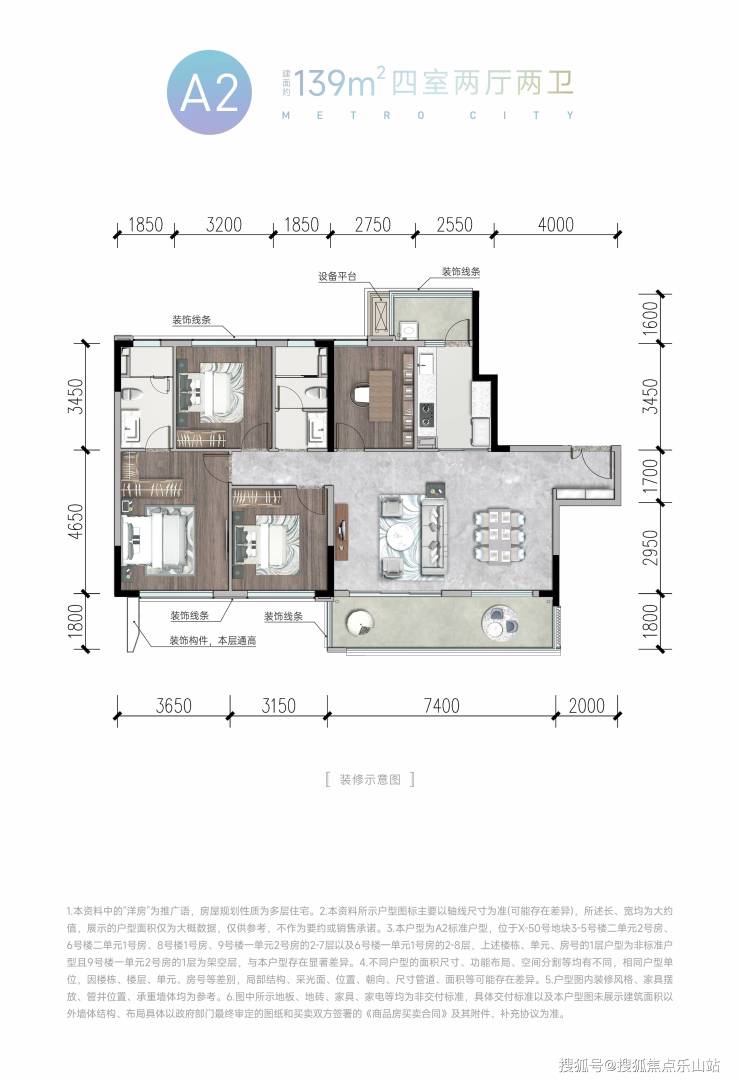
【139㎡户型:套四】
【入户收纳】:私人收纳展示区,区隔忙碌与舒适生活【流线设计,动静分区】:休闲娱乐,私密生活,都做到动静分区,老人房远离主卧,让3代人共同生活有良好的私密空间。【LDKG】LDKG一体化方厅设计,满足对空间多元化的需求。【双阳台】主城内少见贯通式阳台,约7.4M大进深阳台,连接客厅与次卧;双阳台,双面通透,双面采光。【无浪费空间】多数动线纳入客户面积,零浪费空间。
【154㎡户型:套四】
【L型阳台】:L型270°转角阳台,三面观景,一线河湾+园林景观,尽收眼底【端户瞰景】:端房户型,独享阔尺楼间距,保证客厅采光通风均好性,广角瞰景无遮挡,目之所及皆风景【尊享主卧】:约30㎡行政级主卧,阔尺衣帽间,约5.6米开间,私密性强【方正次卧】:3次卧户型方正,开间均达3.3米左右【LDKG 巨幕采光】:约18.9米巨幕采光面,客餐厅+主卧+次卧+生活阳台全部位于采光面
成都 梓潼宫汀澜【营销中心】:028-87777213「销售热线」
【置业顾问】:18613205563「微信同步」
【置业顾问】:19983517822「微信同步」