成都最新的购房政策解读-爱家春和凤鸣最新价格-楼盘解读

搜狐焦点乐山站

2025-06-03 11:24:26

购房群

买房如何避坑,加入购房群,看看他们怎么说

立即进群

爱家春和凤鸣【营销中心】:028-87777213「销售热线」

【置业顾问】:18613205563「微信同步」

【置业顾问】:19983517822「微信同步」

最新消息,刚刚央妈官宣了5月的最新LPR报价!

终于等到你,还好我没放弃!成都的商贷利率终于降了!

这是自去年10月之后,时隔7个月之后,LPR报价迎来的首次下调!

其实这一轮LPR的下调完全在大家的意料之中,因为前段时间,在5月7日的重大会议上,多位领导明确了下调公积金利率和房贷利率的消息:

1、下调公积金利率至2.6%;

2、LPR预计下调0.1%。

公积金利率调降了0.25个百分点,该政策自5月8日起就正式施行了,但是LPR下调却要等到这一轮LPR报价的官宣。

不负众望的是,LPR新一轮报价迎来下调,至此,成都人苦等已久的2字头利率终于来了!

一、项目基础信息

项目名称:爱家春和凤鸣;项目占地:约36亩;项目总栋:8栋住宅;在售产品:98/109/107/116㎡;总层高:17/25层

容积率:2.5;绿化率:30%;物业:成都市泰达物业管理有限公司;物业费:2.1元/㎡/月;车位比:1:1.44;梯户比:2T2/2T3;装修情况:清水;交房时间:预计2026年6月

项目产品:纯三房产品,首开2T2小高层17F:116㎡

项目配套价值

1、地铁双线•下楼即至,步行友好的高效生活配套

步行即至的凤溪河地铁站,享受地铁4号线、19号线双线

2、三轴一高快捷路网,高效出行•无界全城

邻凤溪大道,光华8线,光华大道,和成温邛高速联通,全城皆能快速直抵。

3、光华活力核芯•繁华俱揽,同频一线商业能级

让逛街购物也能成为下班途中的顺道之旅。楼下就是大润发,闲逛之间就已到家。

繁华近享新光天地,合生汇,伊藤洋华堂,永辉超市等,每天逛得不重样,生活时刻保鲜。

4、一河三公园自然滋养,静赏时光漫步

茶余饭后的散步间,即抵杨柳河生态走廊,清风拂面,静享怡然。周边光华公园,凤栖湖中央公园,温江公园环伺,让生活回归自然。

5、书香诗礼•优质学府领衔,让成长天生与众不同

川师温江附属学校,东一杨柳河小学,嘉祥外国语学校等,雄厚的师资配置,开启孩子们智慧的大门。西南财经大学,成都师范学院等大学高校,营造浓郁的诗书氛围,让孩子们更主动的去享受知识。

6、安心守护•健康陪伴,给予家人更好的医靠

温江区中医院,成都市第五人民医院等,为健康生活守护。

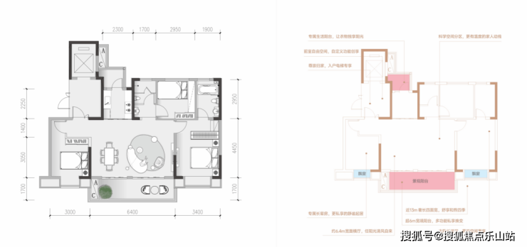
B1:约116㎡三室两厅双卫(清水)

电梯独立入户、纯板式结构、南北通透、得房率高

爱家春和凤鸣【营销中心】:028-87777213「销售热线」

【置业顾问】:18613205563「微信同步」

【置业顾问】:19983517822「微信同步」

温馨提示:专业一对一热情服务,为了节约您的等待时间,看房请提前致电预约!!!

免责声明:

以上内容仅作为邀约邀请,涉及的图片为部分区域实拍图和美学畅想图,具体内容请以现场公示和合同约定为准;本文部分资料、部分图片来源于网络,如有侵权请联系我们删除。

全部
报名成功
稍后会有专业的置业顾问联系您
返回楼盘

频道导航

返回首页

看房小程序

APP下载

电话拨通后,请您手动拨打分机号

确定拨打电话

电话号码:

分机号:(可能需要拨分机号)