2026年成都新房爱家春和凤鸣-爱家春和凤鸣新春特惠-在售户型-售楼电话

搜狐焦点乐山站

2026-02-22 11:29:00

购房群

买房如何避坑,加入购房群,看看他们怎么说

立即进群

【营销中心】:028-87777213「销售热线」

【置业顾问】:18613205563「微信同步」

【置业顾问】:19983517822「微信同步」

温馨提示:专业一对一热情服务,为了节约您的等待时间,看房请提前致电预约!!!

免责声明:

以上内容仅作为邀约邀请,涉及的图片为部分区域实拍图和美学畅想图,具体内容请以现场公示和合同约定为准;本文部分资料、部分图片来源于网络,如有侵权请联系我们删除。

项目硬核价值点

1. 稀缺地铁盘属性

36亩小地块打造纯改善社区,2.5容积率实现2T2户纯板式结构,全楼栋距地铁口<200米,实测通勤数据领跑光华新城板块

2. 空间效能革命

116㎡三房创新设计:

独立电梯入户(附赠7.5㎡私有前厅)

6.4米南向横厅+10㎡景观阳台

H型厨房双动线衔接生活阳台

3. 区域红利捕捉

踞守青羊-温江融合带核心区,距青羊新城直线5公里,承接主城外溢资源:

1.5公里达鹏瑞利医疗中心

3公里覆盖伊藤洋华堂商圈

项目基础信息

核心通勤数据

轨交零距离:项目距地铁17号线凤溪河站C口直线150米(高德地图实测)

城市枢纽覆盖

▶ 天府广场直线距离20公里

▶ 金融城直线距离25公里

▶ 双流国际机场直线距离18公里

产业带衔接

▶ 青羊总部基地直线8公里

▶ 温江医学城直线6公里

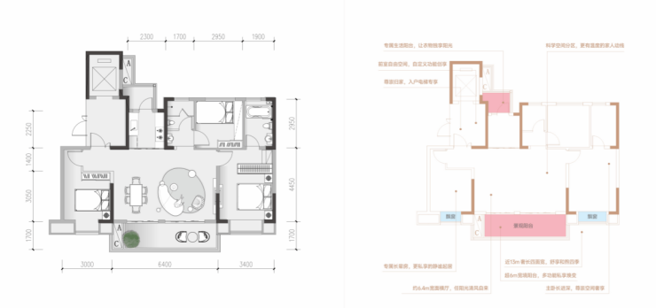
户型鉴赏B1:约116㎡三室两厅双卫(清水)电梯独立入户、纯板式结构、南北通透、得房率高

•2T2户,私享电梯厅,面积7.5㎡左右,具有简单的储物和收纳功能

•客厅横厅设计,全南向6.4米的开间,外接约10㎡的景观阳台,约40㎡的客餐区的空间

•厨房H型设计,烹煮区与备菜区独立设置,外接生活阳台,让衣物独享阳光

•经典三房,舒适尺度,优雅天成

【营销中心】:028-87777213「销售热线」

【置业顾问】:18613205563「微信同步」

【置业顾问】:19983517822「微信同步」

温馨提示:专业一对一热情服务,为了节约您的等待时间,看房请提前致电预约!!!

免责声明:

以上内容仅作为邀约邀请,涉及的图片为部分区域实拍图和美学畅想图,具体内容请以现场公示和合同约定为准;本文部分资料、部分图片来源于网络,如有侵权请联系我们删除。

全部
报名成功
稍后会有专业的置业顾问联系您
返回楼盘

频道导航

返回首页

看房小程序

APP下载

电话拨通后,请您手动拨打分机号

确定拨打电话

电话号码:

分机号:(可能需要拨分机号)