中海云缦源境值得买吗?楼盘最新信息更新-楼层查询-价格查询-优惠

搜狐焦点乐山站

2025-07-15 09:27:00

购房群

买房如何避坑,加入购房群,看看他们怎么说

立即进群

成都中海云缦源境售楼处电话:028-87777213【营销中心】

☎【置业顾问】:18613205563「微信同步」☎

☎【置业顾问】:19983517822「微信同步」☎

据成都购房通数据显示,2025年上半年,成都住宅共计成交了17.6万套,较去年同期竟然上涨了15%。

2025年1-6月,大成都新房成交总套数共计53240套,总销售面积约70.12万㎡,较去年同期增加了3180套(2024年新房销售50060套),套均面积约132㎡。

2025年上半年,成都主城+高新地区的新房单价已涨至3万/㎡以上,上车门槛已涨至390万以上。

主城去化周期基本都在8个月以内,最短的仅约1.4个月,反映了大家对主城新房市场的认可。

总的来说,今年新房的市场分化更为严重,主城热门地段、高品质项目,依然能做到开盘即清;而位置一般、不是新产品的项目,认购率低,进入滞销阶段。

所以今年上半年,大家能明显感受到:新房以卷产品、增加得房率为主流,最大得房率已有120%。

2t2纯板式独立光厅入户

法务区地铁6号线百米直达

双TOD|万方法务岛绿廊

基础信息

总占地:93亩

总户数:871户

面积区间:100-103-112-132

楼层:7-17层

梯户比:1T2、2T2、2T4

容积率:2.0

交付时间:预计25年底

装修标准:2950元

物业:中海物业

坐享天府CBD&天府中央法务区双重区域优势

建面约100-132㎡公园艺境臻宅,首发成都

中海新南图 天府东翼2.0战略启新

2019年,以天府CBD人居地标-天府里启幕天府东翼1.0

2022年,于新川、麓山、中央法务区四子成川,全面焕新商务区板块人居风貌

中海云缦源境坐拥双区高能级配套,精粹生活圈,麓湖公园区-中央法务区-天府CBD聚合式铁三角,更有国际会议中心、中国西部国际博览城等世界级文化交流配套,大悦城等高阶商业配套,匹配您的丰盛生活。

【高阶商业】

天府大悦城、天府和悦广场、麓湖水镇、麓湖伊藤店(在建中),满足大型购物及居家消费需求,享受便捷生活。

【健康医疗】

近享四川省第二人民医院、四川天府新区人民医院(在建中)、四川大学华西天府医院等健康医疗

【全龄优教】

香山k12教育组团、成都市实验外国语学校、天府三中、麓山国际光亚学校等0-18岁全系教育资源丰富。

【项目规划】

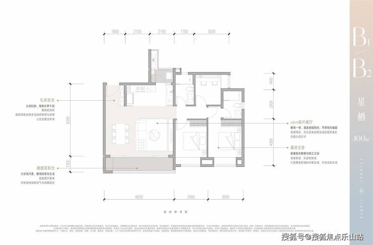
A户型 建面约100㎡三室两厅两卫

成都中海云缦源境售楼处电话:028-87777213【营销中心】

☎【置业顾问】:18613205563「微信同步」☎

☎【置业顾问】:19983517822「微信同步」☎

___欢迎来电咨询丨专业一对一热情服务丨看房需提前预约

——如有侵权请联系我们删帖——

温馨提示:为了节约您的等待时间,看房请提前致电售楼处预约!!!

全部

相关资讯

报名成功
稍后会有专业的置业顾问联系您
返回楼盘

频道导航

返回首页

看房小程序

APP下载

电话拨通后,请您手动拨打分机号

确定拨打电话

电话号码:

分机号:(可能需要拨分机号)