成都中海云缦源境新房_售楼电话_最新项目情况_中海云缦源境年中大促

搜狐焦点乐山站

2025-07-01 11:06:00

购房群

买房如何避坑,加入购房群,看看他们怎么说

立即进群

【营销中心】:028-87777213「销售热线」

【置业顾问】:18613205563「微信同步」

【置业顾问】:19983517822「微信同步」

温馨提示:专业一对一热情服务,为了节约您的等待时间,看房请提前致电预约!!!

基础信息

总占地:93亩(1、2、3号地块)

总户数:871户

面积区间:100-103-112-132

首开:1地块2.4号楼、2地块1.2号楼

楼层:7-17层

梯户比:1T2、2T2、2T4

绿化率:35%

容积率:2.0

交付时间:预计25年底

装修标准:2950元

物业:中海物业(物业费:待定)

🏙坐享天府CBD&天府中央法务区双重区域优势

建面约100-132㎡公园艺境臻宅,首发成都

【品牌简介】

央企中海 稳健经营 领航行业标准

中海地产:隶属于世界500强第9位中国建筑工程总公司,连续18年获中国蓝筹地产企业、中国房地产行业领导品牌,2023年荣获中国房企交付力第1名。主流市场市占率、现金充裕度、信用评级等在内的十项指标行业领先,是全行业唯一获得国际评级机构给予A级评级的企业。中海地产匠心筑造城市各个区域标杆,中海品牌项目在同区域同类别产品中,二手房价相对更高。

中海物业:中海物业成立于1986年,是中国首批获得一级资质的物业管理品牌。截至2023年12月31日,中海物业服务范围覆盖港澳及内地164个主要城市、1999个物业项目、服务业主850万客户、在管面积超4亿平方米,超100家世界500强企业指定物业服务商。在成都国家级文旅项目宽窄巷子、熊猫基地、文殊坊、天府美术馆等也是由中海物业服务。

(数据来源于中海地产、中海物业官方网站)

中海新南图 天府东翼2.0战略启新

2019年,以天府CBD人居地标-天府里启幕天府东翼1.0

2022年,于新川、麓山、中央法务区四子成川,全面焕新商务区板块人居风貌

2024年,天府总部商务区扩容,中海远瞻天府CBD与天府中央法务区一体化发展利好,于CBD与法务区中轴,再启天府东翼2.0战略,中海·云缦源境再领城南新十年

【区域优势】

天府总部商务区 天府新区核心引擎

总部经济核心引领,会展经济、法律服务为重要带动,建设面向世界的中央商务区

天府中央法务区 压轴天府心

2023年《四川天府新区直管区国土空间总体规划(2021-2035年)》草案中,明确天府总部商务区扩容,天府中央法务区作为CBD扩容第一站,成为与CBD关系更紧密、规划能级更高的留白之地

世界一流法商融合产业示范区

全国首个省级层面主导建设的现代法务聚集区

优享CBD&法务区双重地利优势

中海云缦源境坐拥双区高能级配套,精粹生活圈,麓湖公园区-中央法务区-天府CBD聚合式铁三角,更有国际会议中心、中国西部国际博览城等世界级文化交流配套,大悦城等高阶商业配套,匹配您的丰盛生活。

【精粹配套】——进则CBD退则公园境

地处约46.8万㎡法务岛绿廊(规划中),出门即享城市生态大境。

其中天府前湾将以粉色系为主,布局200亩樱花特色园、60亩海棠特色园;天府左岸以红黄色系为主,40亩银杏特色园、25亩枫林特色园、3公里水杉漫步道;天府右岸以绿色为主,茉莉园、栀子花园、迷迭香园。万亩绿肺环伺,实现真正的公园城市生活

(数据来源于天府中央法务区官方公众号)

🛍【高阶商业】——直揽CBD高阶商业群,繁华正心丰盛人生

天府大悦城、天府和悦广场、麓湖水镇、麓湖伊藤店(在建中),满足大型购物及居家消费需求,享受便捷生活。

【健康医疗】——优享众多优质医疗,护航健康人生

近享四川省第二人民医院、四川天府新区人民医院(在建中)、四川大学华西天府医院等健康医疗

📚【全龄优教】——天新优质教育资源,助力孩子创智成长

香山k12教育组团、成都市实验外国语学校、天府三中、麓山国际光亚学校等0-18岁全系教育资源丰富。(入学以当地教育主管部门安排为准,开发商及中介机构未做任何承诺)

【项目规划】

A户型 建面约100㎡三室两厅两卫

通透双阳台,生活处处向阳

H型厨房,享约4.2米面宽尺度

LDKG格局,阳台/横厅/厨房/餐厅无缝连接

约6米阔尺横厅,家庭社交第一聚厅

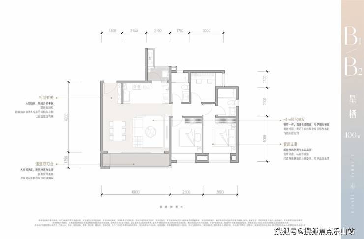
B2户型 建面约100㎡三室两厅两卫

礼制玄关,从容归家,隔绝外界干扰

约6米阔尺横厅,直连宽境阳台,尽享阳光偏爱

通透双阳台,兼得诗意与生活

套房主卧,配备阳光飘窗与独立卫浴,私属品质生活

C户型 建面约103㎡三室两厅两卫

L型玄关,转角设计,巧妙利用空间折叠理念

通透双阳台,一面生活一面诗意

LDKG格局,客厅、餐厅、厨房、阳台一线贯通

套房主卧,带独立卫浴与飘窗,舒适尊崇休憩空间

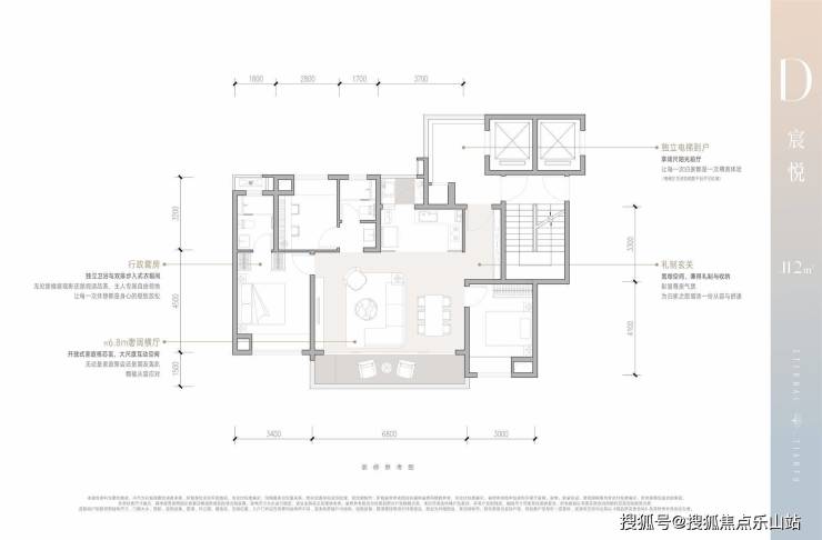
D户型 建面约112㎡三室两厅两卫

约6.8m奢阔横厅开间,开放式家庭核芯区,大尺度互动空间

行政套房,独立卫浴与双排步入式衣帽间

独立电梯到户,享阔尺阳光前厅

礼制玄关宽敞空间,兼得礼制与收纳

E户型 建面约132㎡四室两厅两卫

雅致方厅,可幻变出独立书房/瑜伽室/儿童天地

四开间大采光面,极致居住体验,生活从此向阳而生

独立电梯到户享阔尺阳光前厅

通透双阳台,观景阳台+生活阳台

【营销中心】:028-87777213「销售热线」

【置业顾问】:18613205563「微信同步」

【置业顾问】:19983517822「微信同步」

温馨提示:专业一对一热情服务,为了节约您的等待时间,看房请提前致电预约!!!

免责声明:

以上内容仅作为邀约邀请,涉及的图片为部分区域实拍图和美学畅想图,具体内容请以现场公示和合同约定为准;本文部分资料、部分图片来源于网络,如有侵权请联系我们删除。

全部

相关资讯

报名成功
稍后会有专业的置业顾问联系您
返回楼盘

频道导航

返回首页

看房小程序

APP下载

电话拨通后,请您手动拨打分机号

确定拨打电话

电话号码:

分机号:(可能需要拨分机号)