成都西环290房价_西环290户型图_售楼电话_基础信息大全

搜狐焦点乐山站

2025-06-01 09:10:43

购房群

买房如何避坑,加入购房群,看看他们怎么说

立即进群

【营销中心】:028-87777213「销售热线」

【置业顾问】:18613205563「微信同步」

【置业顾问】:19983517822「微信同步」

温馨提示:专业一对一热情服务,为了节约您的等待时间,看房请提前致电预约!!!

免责声明:

以上内容仅作为邀约邀请,涉及的图片为部分区域实拍图和美学畅想图,具体内容请以现场公示和合同约定为准;本文部分资料、部分图片来源于网络,如有侵权请联系我们删除。

💕青羊芯 💕三通类住宅💕

【西环290】

👉产品信息:

✅6号楼(3-5楼),面积:70-80-107-130(套二、三)

✅单价:9900-12000

✅公摊:32% 总高:22层

✅物管费:3.2

✅梯户比:4T10

✅交付标准:清水

✅交付时间:2025年6月底

3月份可进场装修

💚6号楼

✅面积:130-160-177-290(套二三四)(从楼顶往下卖)

✅单价:1.6-2.2万 梯户比:4T5

✅公摊:8-22% 物管费:4.8

✅🉑️精装🉑️清水

✅精装2025.10月交付,清水25.6交付

👉产品优势:

1️⃣西贵⻘⽺,生态⼈⽂之上,新兴产业⾼地

2️⃣成熟交通 ,四线地铁交汇 ,无缝接驳全城

3️⃣龙湖物业保驾护航

4️⃣区域独有类住宅产品,且三通

5️⃣低总价,精装清水双选择

6️⃣享受小区环境,绿意盎然

7️⃣大面积玻璃用材,奢华感满满

三通建面约60-110 ㎡ ,特惠单价10500元/㎡起

【稀缺地脉】:项目位于成都青羊区西三环外侧日月大道和武青北路的交汇处,上风上水的城西坐拥成都最丰富的自然资源,土拍屡创新高,让城西价值,在“西贵”的传统下变得更加凸显

「板块价值」:项目所处城西目前最为繁华的外光华片区,也是目前区域内在售的唯一一个拥有三地铁+BRT加持的项目,周边配套丰富,交通、教育、医疗、商业等均醇熟呈现

「土拍价格」:德商、保利、中铁建、中绿等品牌商云集,土拍屡创新高,楼面地价最高已超18000/㎡

【国际视野】:大师级设计团队倾力打造,奢享臻品的现代美学大平层【景观设计-AECOM】:世界排名前三的景观设计单位,代表作①上海国际⾦融中⼼ ②深圳湾1号 ③纽约世界贸易中⼼(重建) ④伦敦奥运及⾥约奥运整体规划 ⑤林肯中⼼【建筑设计-上海天华建筑设计】:中国甲级建筑设计公司,代表作①上海闵⾏⻰湖天街 ②北京⼤兴⻰湖天街 ③上海七宝万科⼴场 ④⻘岛环球⾦融中⼼ ⑤武汉福莱中⼼【精装设计-SSD】:大师级精装设计单位,代表作①济南融汇城销售中⼼ ②深圳华润银湖蓝⼭全景私家会所 ③三亚颐和湖光⼭舍

【醇熟配套】

「生态」:百花潭公园、浣花溪公园、杜甫草堂

「交通」:三横+两纵立体路网,地铁4/9/13号线(规划建设中)、有轨电车蓉2号线k5快速公交等多维交通路网

「商业」:以深圳鸿荣源旗下壹方商置运营,自持约5万方西环·壹方里商业街,另享青羊万达广场、鹏瑞利广场、中铁西城新天地三大商圈

「学校」: 成都市同辉(国际)学校、 树德中学(光华校区)、 实验小学西区分校

「医疗」:成都市妇女儿童医院(三甲)、成飞医院(三甲)「产业」:成飞集团、青羊工业总部基地

【奢装大平层】西环290以全智能、科技概念打造奢装大平层,以智能门禁系统、全息3D智能管家、智能机器人服务、未来感悬浮台、星空顶、3D智能公区、华为全屋智能等九大智能科技配套,典范科技新时代

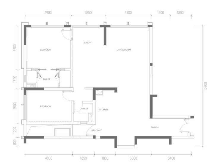
【至臻户型】建面约130/160/177/290㎡奢装大平层

【290户型】:大横厅+12米开间全明采光面,IMAX级环幕瞰景,全景双翼主卧套房

【290户型鉴赏】

【177户型】:大横厅巨幕式纵深空间,全境大开,高得房率,纵享尺度进阶

【177户型鉴赏】

【160户型】:独立玄关,纯粹动静分离,纵深空间布局

【160户型鉴赏】

【130户型】:宝格丽奢华风,阔尺双户型设计,百变大客厅

【130户型鉴赏】

【营销中心】:028-87777213「销售热线」

【置业顾问】:18613205563「微信同步」

【置业顾问】:19983517822「微信同步」

温馨提示:专业一对一热情服务,为了节约您的等待时间,看房请提前致电预约!!!

免责声明:

以上内容仅作为邀约邀请,涉及的图片为部分区域实拍图和美学畅想图,具体内容请以现场公示和合同约定为准;本文部分资料、部分图片来源于网络,如有侵权请联系我们删除。

全部

相关资讯

报名成功
稍后会有专业的置业顾问联系您
返回楼盘

频道导航

返回首页

看房小程序

APP下载

电话拨通后,请您手动拨打分机号

确定拨打电话

电话号码:

分机号:(可能需要拨分机号)