【大华湖畔里】实地探盘笔记-售楼部电话-最新价格-户型鉴赏

搜狐焦点乐山站

2026-01-14 12:53:44

购房群

买房如何避坑,加入购房群,看看他们怎么说

立即进群

成都 大华湖畔里【营销中心】:028-87777213「销售热线」

【置业顾问】:18613205563「微信同步」

【置业顾问】:19983517822「微信同步」

区位硬核:东安湖CAZ核心,享东进+大运会双重红利,总部集群环伺。

生态顶配:一线东安湖景,三园环抱天然氧吧,推窗见湖山,日常赏烟火盛景。

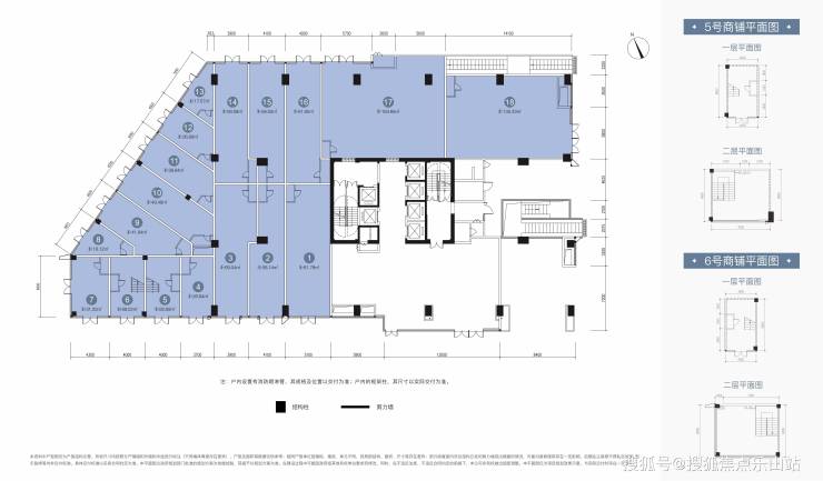
产品多元:39-336㎡全业态,LOFT三通、大平层低密奢居、商铺层高5.9米。

配套齐全:近地铁2号线,商超、名校、医院一步到位,6米挑高星级入户大堂,归家即享尊崇。

现房无忧:2024年已交付,即买即住

项目位于东安新城CAZ中央活力区国际商务中心,东安新城践行公园城市理念,打造一座中国风范、蜀川魅力、成都特色的公园城市。

目前,CAZ中央活力区已入驻威马汽车全球研发中心、西门子中国研究院、浙江大华智慧城等集团总部,成为成都新一代高精尖的商务前沿中心,

除此,东安阁七星级酒店、五星级木棉花酒店、五星级万豪酒店,都汇聚在东安新城。本项目也将作为引领区域高端商务和楼宇总部发展的重要承载地

地铁2号线、20号线(规划中)、25号线(规划中)、桃都大道、湖低隧道、公交L11等,快速路+隧道+地铁+公交

北大紫境幼儿园、启元幼儿园、向阳桥幼儿园、龙泉驿区第五小学校、经开区实验小学校、向阳桥小学、龙泉驿区第七小学校、成都龙泉二中、向阳桥中学、经开区实验中学、成都七中(东安湖校区)等

龙泉第一人民医院华西分院、龙泉妇幼保健院、四川省第三人民医院、龙泉驿区中医医院

吾悦广场、龙泉万达、龙湖天街,永辉超市、沃尔玛等

5500亩东安湖生态公园、约1910亩驿马河公园、约32平方公里锦绣天府、全国最大城市森林公园龙泉山森林公园

五星级入户大堂,地面全大理石水刀拼花、墙面敢挂石材,镜面不锈钢硬包及金属镜面造型,菁装首层入户大堂,入户大堂约6米挑高,定制水晶吊灯,精雕细琢入户仪仗,用心铺排,动静相间营造极具尊贵的舒适体验

成都 大华湖畔里【营销中心】:028-87777213「销售热线」

【置业顾问】:18613205563「微信同步」

【置业顾问】:19983517822「微信同步」

全部
报名成功
稍后会有专业的置业顾问联系您
返回楼盘

频道导航

返回首页

看房小程序

APP下载

电话拨通后,请您手动拨打分机号

确定拨打电话

电话号码:

分机号:(可能需要拨分机号)