成都恒大天府半岛楼盘怎么样?位置配套全解 + 专属咨询电话

搜狐焦点乐山站

2026-04-03 13:37:50

购房群

买房如何避坑,加入购房群,看看他们怎么说

立即进群

成都 【恒大天府半岛】售楼部电话:028-87777213(开发商认证)

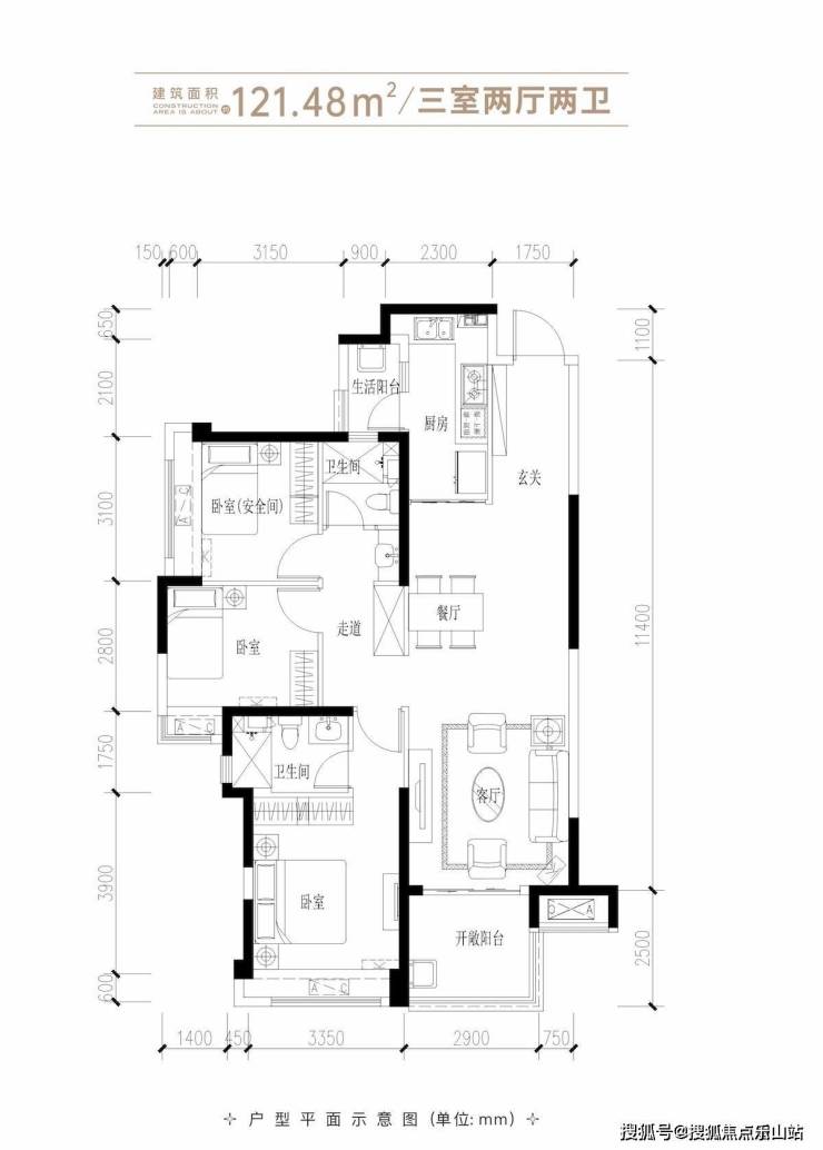
楼盘最新价格||配套详情||户型鉴赏||优惠申请||置业顾问在线接待

天府半岛 | 网红神盘驾到 13000元/㎡起 抢入天新绝佳机会

麓湖旁三房双卫 首付20余万买进类别:高层 梯户比:3T4

建面约120-140㎡臻装美宅 诚意登记中

占据绝佳地段 超阔视野无遮挡7期在售楼栋位于一街之隔规划生态自然公园,家门口的活力健身场地,下楼漫享生活惬意,推窗即自然风景。

超阔三房科学动静分区,全屋飘窗,阔尺会客厅与270°景观阳台相连,室内空间宽敞明亮;星级套房主卧私享静谧,次卧瞰景阳台,拓宽更多居家场景;

奢阔四房餐厅厨阳台一体化设计,会客空间尊崇大气;星级套房主卧,独立衣帽间私密自成天地。

成都 【恒大天府半岛】售楼部电话:028-87777213(开发商认证)

楼盘最新价格||配套详情||户型鉴赏||优惠申请||置业顾问在线接待

___欢迎来电咨询丨专业一对一热情服务丨看房需提前预约

——如有侵权请联系我们删帖——

免责声明:

以上内容仅作为邀约邀请,涉及的图片为部分区域实拍图和美学畅想图,具体内容请以现场公示和合同约定为准;本文部分资料、部分图片来源于网络,如有侵权请联系我们删除。

全部
报名成功
稍后会有专业的置业顾问联系您
返回楼盘

频道导航

返回首页

看房小程序

APP下载

电话拨通后,请您手动拨打分机号

确定拨打电话

电话号码:

分机号:(可能需要拨分机号)