【深度分析】新希望天屹真实口碑如何?业主爆料+周边配套实测

搜狐焦点乐山站

2025-07-26 09:13:00

购房群

买房如何避坑,加入购房群,看看他们怎么说

立即进群

成都 新希望天屹【营销中心】:028-84385818「销售热线」

【置业顾问】:18613205563「微信同步」

【置业顾问】:19983517822「微信同步」

恭喜还没买房的朋友们!房贷利率又要降了!

5月LPR下调后,近日不少业主存量房贷利率纷纷迎来下调。

由于早年的房贷折扣力度大,很多人减点也高达几十甚至上百基点,因此不断有人晒出2.965%、2.375%、甚至2.23%的房贷利率:

大家也不必眼红,因为近期又有重磅信号——

下半年还会降准降息,降息幅度或达30BP,意味着房贷利率至少还有30BP的下调空间!

7月1日起,选择重定价周期为3个月或6个月的借款人(如季初或半年初重定价),其房贷利率已随5月LPR下调而自动降低。大部分业主的利率降至2.9-3.2%之间,也有少部分买房较早的业主,利率则降至更低,例如文章开头提到的2.23%。

不过,仅仅10个基点的LPR下调空间似乎还不够。

东安湖中央居住区 2.0低密纯居洋房

建面约116-143㎡新派隐逸奢宅

货源充足

✔1#:143㎡(30套)

价格:预计2万/㎡

✔2#:116㎡(40套)

价格:预计2万/㎡

【项目基础信息】

开发商:千亿国企经开发展&先锋民企新希望地产

总占地:44亩

容积率:2.0

物业形态:10栋纯洋房

产品面积:建面约116㎡/143㎡

总层高:10-16F洋房

梯户比:1T2/2T2

绿化率:约35%(不含东干水渠)

交付标准:精装交付

项目地址:龙泉驿区东安街道跨湖路

【项目十大核心亮点】

经开发展/新希望地再联手,第四个作品,交付和品质绝对保障

东安湖中央居住区,核心首熟区,15分钟生活圈

区域唯一在售2.0低密,纯住宅,纯洋房小区

区域唯一下沉式真会所,宝格丽主题

东干水渠滨河绿道穿过小区,双超大中庭园林景观,内外双园

区域唯一独立光厅带梯控入户,比肩新希望D10配置

区域稀缺116㎡1T2户三室两厅两卫户型

区域最大面宽143㎡户型,带入户光厅,超高得房率

区域最高装标,日立中央空调、落地式一体马桶、12套洗碗机

新希望豪宅物业服务一脉相承,保驾护航

【经开发展】一部经开史,半座龙泉城

千亿国企 立足龙泉 服务民生

成都经开发展集团注册资本200亿,资产总规模达2500亿元,全资控股经开国投、经开产投、经开资本、经开置业、经开建工5家二级企业,31家三级企业,深耕龙泉驿、匠心筑大城,为龙泉驿城市发展贡献了重要力量。

【新希望地产】精致绿色,让生活更美好

世界500强品质,城东品质舒居缔造者

新希望集团,2021年荣登世界500强榜单,2023年排名363位。新希望地产为百强房企TOP30,聚焦城市“中高端”住宅产品开发,以天系、锦系享誉全国。于成都龙泉,皇冠湖壹号、锦粼府、锦粼云境、长粼府,以高阶产品力赢得市场的高度认可。

【核心首熟区】东安湖中央居住区,核心首熟区,15分钟生活圈

【商业】约500米龙湖东安天街,约600米新城吾悦广场,约2.5公里万达广场,尽享湖芯醇熟生活圈

【交通】依靠蜀都大道/驿都大道/桃都大道等四横三纵道路网,通达全城;距地铁2号线书房站约800米,远期规划有11、22、25号线

【教育】比邻向阳桥幼儿园/小学/中学、经开区实验中学(教科院领办)、成都市实验小学(和雅校区)、成都市实验小学(和雅校区、乐雅校区)等全龄优质教育资源,板块内更有四川师范大学成龙校区、四川财经职业学院等高等学府

【医疗】半径为4公里范围内,汇集有四川大学华西医院龙泉医院(距项目约1.6km)、成都中医药大学附属医院龙泉医院(距项目约3.5km)、龙泉驿妇幼保健院(距项目约2km)、四川省第三人民医院(距项目约3.9km)等三甲医院

【公园】近邻东安湖公园、驿马河公园、龙泉山城市森林公园,构建优质生活圈

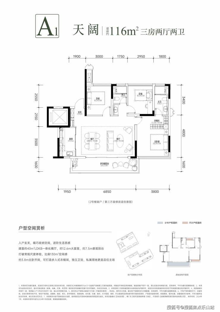
【极质116㎡】横厅三房两厅双卫

目前片区唯一在售120㎡以下洋房产品,超高使用率,婚房最佳选择,全盘仅198套,首开仅30套

A户型 |116 ㎡三房两厅两卫亮点:

1.约12.6m大面宽,全南北朝向

2.约44㎡LDKG一体化横厅

3.约6.85m南向景观阳台

4.约3.8m主卧开间,步入式衣帽间

【越级143㎡】四房两厅双卫

区域最大面宽143㎡产品,光厅入户带梯控,比肩一线豪宅,邻一线河景(部分房源),区域改善首选

B户型 |143㎡四房两厅两卫亮点:

1.全明入户光厅带梯控,比肩一线豪宅

2.约16.2m大面宽,四开间朝南

3.约7.2m超大横厅+阳台

4.约27㎡豪华套房主卧,步入式衣帽间

东安新城,为什么选择经开新希望天屹?

看位置:东安新城是整个龙泉最新、规划最科学、发展最迅速、城市界面最好的核心地段

看配套:15分钟范围内,商场、学校、地铁口、医院、文化、体育、娱乐配套齐全

为什么买天屹:

做别人没有的围合式大中庭花园:

项目分立河流两侧,景观生态资源优质,低建筑密度,突破传统的阵列式布局,打造片区独有的超大中庭花园。内外双园出门皆是绿意。

做别人的没有的会所:

不做架空层会所,而是真正的星级下沉式会所,涵盖健身房、书吧。。。

做别人没有的产品:

只有洋房,没有高层,不做商住混合;可以住洋房何必住高层

做别人没有的户型:

区域最低门槛的板式套三洋房,片区没有,只有天屹有。

区域唯一带梯控的光厅入户花园,天屹真改善。

成都 新希望天屹【营销中心】:028-84385818「销售热线」

【置业顾问】:18613205563「微信同步」

【置业顾问】:19983517822「微信同步」

温馨提示:专业一对一热情服务,为了节约您的等待时间,看房请提前致电预约!!!

免责声明:

以上内容仅作为邀约邀请,涉及的图片为部分区域实拍图和美学畅想图,具体内容请以现场公示和合同约定为准;本文部分资料、部分图片来源于网络,如有侵权请联系我们删除。

全部
报名成功
稍后会有专业的置业顾问联系您
返回楼盘

频道导航

返回首页

看房小程序

APP下载

电话拨通后,请您手动拨打分机号

确定拨打电话

电话号码:

分机号:(可能需要拨分机号)