成都 华兴滨江锦宸【营销中心】:028-87777213「销售热线」
【置业顾问】:18613205563「微信同步」
【置业顾问】:19983517822「微信同步」
温馨提示:专业一对一热情服务,为了节约您的等待时间,看房请提前致电预约!!!
虽然成都土拍价格越拍越高,但主城市场卖得好的,还是那些主力总价在400万级的产品。
比如八开八罄的招商锦城序、多次登顶主城销冠的华润置地中环天宸等。
这背后的原因其实很清晰,虽然土拍价格持续走高,但大多数购房者的购买力是没有明显提升的。
对于绝大多数家庭而言,总价400万级就能在主城实现居住的全面迭代,这种吸引力,无疑是精准且难以抗拒的。
通过这些现象级热盘,我们就不难总结出,要想卖的好,控总价+高品质+高舒适度,以上三者缺一不可。
——项目指标——【项目占地】:约86亩【容积率】:1.5【绿化率】:30%绿地率【梯户比】:高层2T2【面积段】:建面约174-325㎡江岸雅奢墅境建面约129-159㎡天际阔景平层【安心置业】:现房销售
——核心价值——【实力品牌】深耕本土人居26载,用心服务每位业主【坐享繁华】2km大源核心区,尽享城南繁华生活配套【一线滨江】江安河畔滨水墅居,揽城市稀缺景观资源【便捷出行】项目近地铁5号线,三横三纵路网立体交通【主城现房】成都主城区臻罕现房低密滨江墅区
成都市华兴住宅房地产开发有限公司,创立于1998年,深研成都本土人居26载,具备国家一级房地产开发资质。
华兴地产截止2024年,已累计交付10个项目,服务约6.3万户业主。在产品规划、景观设计、物业服务等维度,均获得了广大业主与合作伙伴的广泛赞誉。

项目作为主城罕有现房开售的滨江墅质藏品,不仅拥有相比期房更短的入住等待期,也是「所见即所得」的置业安心优选,更以仅1.5容积率,立序城南墅质人居典范。
大源核芯区作为城南置业首选区域,板块趋近饱和、人口密度大,宜居性降低。同时发展时间长、老旧小区多,改善需求大,但板块房价高昂,且几乎没有产品上新。
大源南板块共享大源核芯区醇熟资源的同时,生态资源优渥、人口密度低,规划有「骑龙创新园」与「民乐站TOD」,是成都城南臻罕高端低密品质居住区。
项目西邻江安河,景观资源得天独厚,千米江景推窗即见。周边滨江公园(在建)、三江公园(在建)、骑龙公园(规划中)环绕。于城市繁华之畔,开启城南低密人居新版图。
▍纵横畅行:一轨:5号线骑龙站;三横:天府五街、元秀路、华阳大道;三纵:剑南大道、华府大道、华秀路。立体路网无界城芯生活。
▍繁华荟萃:大润发商圈、世豪广场商圈、银泰城商圈。三大繁华商圈环绕。
▍学府环伺:约900米怡心第一实验学校(直线距离)成都教科院附属学校、成都七中高新校区等,公立、私立优资学府环伺。
▍三甲医资:项目邻四川大学华西医院高新院区,预计2026年可投入运营。成都市第三人民医院高新院区(已批复),为每一位业主家人的健康保驾护航。
项目择址主城滨河墅区,定义成都豪宅新标准:繁华在侧,江安为邻,拥揽一线滨江景观,近享万象繁华配套;繁花内秀,园林级景观设计、墅质建筑立面、墅境空间营造。革新成都高端墅质生活想象。
项目奢造“一门一径”、“双园五巷”,四重归家礼序,层层深入移步易景,以精制园林盛景串联生活场域,情景交融成趣,自成风范领地。
▍崇奢府门,彰显层峯不凡气派项目斥资千万匠造社区大门,高度约13M,宽度约39M,整个大门采用不锈钢曲线工艺设计,石材柱体,屋顶香槟金全铝板挑檐,大气煊赫,气象卓然。
▍一径探幽,花木掩映奢雅园境「一径」是园区内贯通南北的景观中轴线,林间悠境一步一景,景观流转悠然,亲朋友邻都能在园境中与自然舒适互动。
▍双园错落,繁华中芯难得悠适「双园」是主入口两侧的两座主题花园,左侧为中庭会客区,奢造叠水景观;右侧为儿童乐园与下沉庭院,提供全龄儿童游乐、业主私享惬意悠境。
▍五巷礼遇,自然墅境生活场域「五巷」是散布墅区的五径花园宅巷,每一巷都栽培大量芬芳类和观赏类植物。巷道栽嵌众多名贵乔木,四季幽香常伴,尽藏时光美好。
作为华兴集团城南墅质标杆产品,华兴·滨江锦宸对建筑细节也是匠心淬炼,从建筑立面到入户大堂,乃至地下空间,处处细节尽显墅质标杆底蕴。
▍奢石立面,昭彰墅质风范项目高层建筑立面,以玫瑰金不锈钢及铝板修饰大面积真石漆,将自然灵动的简约曲线,和沉稳大气的中式线条巧妙糅合。墅区立面以蓝钻花岗岩、冰川白花岗岩等,高品质奢石石材打造,呈现墅质臻境。
▍奢雅门厅,尊崇归家感受项目入户大堂采用酒店式入户大堂设计手法,地面采用900×1800大规格岩板无缝拼接,墙面采用大版铝板嵌玫瑰金不锈钢线条,重点区域采用高级奢石过度,尽显奢雅格调。
▍奢逸地库,尽显不凡质感项目主车库入口采用出入双向车道,车库地面采用太古里同款环氧地坪工艺,增强地面耐磨、耐压和耐冲击性,地库门厅入口采用大规格岩板无缝拼接,简约奢逸,大气隐然。
华兴·滨江锦宸不止对标行业豪宅标准,更同频世界人居潮流,以人性化细节考量、超越同类产品的标准。打造大源芯南城市向往的墅质标杆。
▍奢谧入户,私谧入户空间以2T2梯户比打造稀贵高层产品,为业主营造拒绝喧扰的层峯领地。
▍奢工精研,全屋明管铺设全屋水管采用成本更高的明管铺设,方便渗漏检修的同时便于业主装修改造。
▍奢艺考究,全地面自流平全地面自流平工艺,超越市场标准。室内免打地坪即可安装地暖。
▍奢装预留,预留新风孔洞全户型预留新风系统安装孔洞,避免业主装修时对建筑梁体造成损害,细节领先成都大部分楼盘。
▍奢阔层高,奢阔墅质层高项目高层打造朗阔3.1米层高,叠拼、双拼产品奢造3.5米层高,营造高阶墅质生活的空间享受。
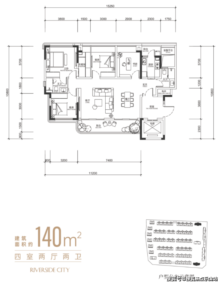
▍建面约129-159㎡天际阔景平层



▍建面约174-325㎡江岸雅奢墅境
成都 华兴滨江锦宸【营销中心】:028-87777213「销售热线」
【置业顾问】:18613205563「微信同步」
【置业顾问】:19983517822「微信同步」
温馨提示:专业一对一热情服务,为了节约您的等待时间,看房请提前致电预约!!!
免责声明:
以上内容仅作为邀约邀请,涉及的图片为部分区域实拍图和美学畅想图,具体内容请以现场公示和合同约定为准;本文部分资料、部分图片来源于网络,如有侵权请联系我们删除。