成都明信四季东安售楼处电话:028-87777213【营销中心】
☎【置业顾问】:18613205563「微信同步」☎
☎【置业顾问】:19983517822「微信同步」☎
___欢迎来电咨询丨专业一对一热情服务丨看房需提前预约
反转!LPR降基点后,成都房贷利率下限却上调了?
今天上午(5月20日),央行公布了最新一期LPR。
2025年5月20日贷款市场报价利率(LPR):1年期LPR为3.0%,5年期以上LPR为3.5%,以上LPR在下一次发布LPR之前有效。
如果按照之前的首套房贷利率执行标准(LPR-60BP),成都最低首套房商贷将降至2.9%。
5月20日起,成都新受理按揭贷款,5年期以上个人住房贷款定价底线由LPR-60BP调整为LPR-50BP,目前执行利率依然3%。
已审过未放款的,部分银行按照审过执行3.5%-0.6%=2.9%,部分银行按照放款执行,会把利率调整为3.5%-0.5%=3%。
对于已放款客户,到利率调整日根据最新lpr -对应bp:
即,首套房最低房贷利率为(LPR-60BP)2.9%;二套房最低房贷利率为(LPR-30BP)3.2%。
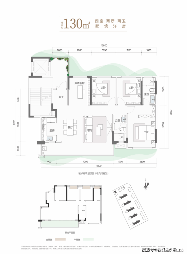
基础信息
【总占地面积】(34亩)
【容积率】1.5
【总户数】276户
【总栋数】10栋
【产品类型】 洋房
【装修情况】首批次清水
【层高】7-11层
【梯户比】1T2
【交房时间】预计26年1月
【物业】 3元/月/㎡

坐拥一湖一山一园
一湖:成都·东安湖【5887亩】
世界级国家体育公园,围绕“一湖三岸”建设
一山:成都·龙泉山【海拔1051米】
国家城市森林公园,城市自然分界线
一园:成都·驿马河公园【1910亩】
城市中央公园,城市生态连廊,“天然氧吧”

5纵4横2轨多维立体交通
2轨:地铁2号线龙平路站(约1.5km)、地铁13号线(规划中);
5纵:蜀都大道、桃都大道中段、董朗路、桃源街、双龙路等;
4横:湖岸南路、桃都大道、红岭路、龙都路(5环路)。
4大商圈集群:1公里以内万达广场、永辉超市;2公里以内东方华大广场;3公里以内龙湖东安天街、吾悦广场等。
3大名校体系:东安湖学校(成都七中领办)、成都实验小学(和雅校区)、成都实验小学(乐雅校区)。5大优质学府:龙泉第七中学、驿马河第一幼儿园、常春藤龙都国际幼儿园、龙泉驿区第二小学、龙泉二中等,享一站式全龄优教。

1.5容积率纯洋房· 7F-11F全板式真洋房超强私密性,别墅级高端社区享受兼具现代时尚建筑立面以当代美学打磨时代高光

携手知名景观设计团队GVL怡境国际集团取意传世名画,诠释人文特色,结合现代精工手法凝练“溪山雅苑·行驿桃源”主题打造现代酒店式高定艺奢居住空间



成都明信四季东安售楼处电话:028-87777213【营销中心】
☎【置业顾问】:18613205563「微信同步」☎
☎【置业顾问】:19983517822「微信同步」☎
___欢迎来电咨询丨专业一对一热情服务丨看房需提前预约
——如有侵权请联系我们删帖——
温馨提示:为了节约您的等待时间,看房请提前致电售楼处预约!!!