房贷利率再次下调-广都鑫中心优劣势分析-价格走势-营销热线

搜狐焦点乐山站

2025-06-05 07:30:00

购房群

买房如何避坑,加入购房群,看看他们怎么说

立即进群

广都鑫中心【营销中心】:028-87777213「销售热线」

【置业顾问】:18613205563「微信同步」

【置业顾问】:19983517822「微信同步」

温馨提示:专业一对一热情服务,为了节约您的等待时间,看房请提前致电预约!!!

最新消息,刚刚央妈官宣了5月的最新LPR报价!

终于等到你,还好我没放弃!成都的商贷利率终于降了!

这是自去年10月之后,时隔7个月之后,LPR报价迎来的首次下调!

其实这一轮LPR的下调完全在大家的意料之中,因为前段时间,在5月7日的重大会议上,多位领导明确了下调公积金利率和房贷利率的消息:

1、下调公积金利率至2.6%;

2、LPR预计下调0.1%。

公积金利率调降了0.25个百分点,该政策自5月8日起就正式施行了,但是LPR下调却要等到这一轮LPR报价的官宣。

不负众望的是,LPR新一轮报价迎来下调,至此,成都人苦等已久的2字头利率终于来了!

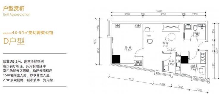
🏗️【项目参数】🍃占地面积:28.35亩🍃建筑面积:241470.5m🍃目前主售:双发天禧中心2号楼1、2单元🍃主力户型:57㎡🍃面积段:43㎡-91㎡(主力面积52-60)🍃层高:3.25-3.3米🍃总高:25层🍃首开楼层:7、22🍃三通:水电气三通🍃公摊:约30%🍃梯户比:6T33户 6T37户🍃物管费:4.9元🍃交付时间:合同2025年12月31日前🍃交付标准:清水💰均价:6600-7500💰付款方式:一次性

✅开发商:成都双发君地置业有限公司✅物业公司:四川博蕙京通物业管理有限公司

💯【核┃心┃卖┃点】1⃣️天府大道中轴线上 唯一在售总价低 小面积水电气三通产品 周边楼盘无竞品 2⃣️双地铁(1号线/18号线)便捷出行3⃣️可交于 锦江国际(世界第二,亚洲第一酒店集团)旗下"欧暇地中海"酒店运营,清水交房后8个月为装修期(没有收益),装修好后6个月期间作为酒店培育期,没有保底收益,享受酒店运营分红收益(收益五五分成),从第7月开始,正式享受保底(保底30元/平)加酒店运营五五分红, 平均收益:3800-4000/月!4⃣️地处于金融城,新川科技园,天府新区中央商务区三大板块交汇的黄金金三角区域,桥头堡价值洼地,大大吸附周边区域人流。5⃣️每层自带600-700㎡高线公园。 每层只有十户享受额外赠送7-9㎡阳台空间。

⭕【区域位置】位于成都市天府新区天府大道1888号,是智能化绿色长廊的菁英空间,含有高端酒店、文化会所及中高端商业配套的综合体物业。

🚗【交通配套】:双地铁上盖:1号线华阳站(300米)18号线海昌路站(400米)503 504 T205等二十条公交线路五纵四横立体网络五纵:剑南大道、益州大道、天府大道、梓州大道(科华路南延线)、成自泸高速;四横:三环路、绕城高速、华阳大道、麓山大道。

🎏【商业配套】:项目1-4楼自带30000方的上海协星星光商业体,-1楼大型超市盒马生鲜,-2至-4楼自带1661个停车位 。项目斜对面是家乐福购物中心项目南面300米是正在修建的三利广场,是集商务办公、综合购物、高端酒店、商业体验为一体的综合性购物广场,项目对面还有金地三期约70万方的大型商业综合体,周边还有沃尔玛山姆会员店、红星美凯龙、富森美等综合性商业,实现人居蓝本的同时,项目在后期还会迎来配套的再一次升级。

🏥【医疗配套】:拥有天府新区人民医院、四川石油总医院、玛利亚天府妇产儿童医院、天府新区安琪儿国际妇女儿童医院、四川省中西医结合医院、四川宝石花医院等。

🌴【生态娱乐】:项目旁边是海昌极地海洋公园、南湖梦幻岛,南湖湿地公园等。

🎓【优质教育】:金苹果幼儿园 天府四小 天府五小 天府实验小学 天府实验中学 天府实验外国语学校等。

✅【多变户型】

【营销中心】:028-87777213「销售热线」

【置业顾问】:18613205563「微信同步」

【置业顾问】:19983517822「微信同步」

温馨提示:专业一对一热情服务,为了节约您的等待时间,看房请提前致电预约!!!

免责声明:

以上内容仅作为邀约邀请,涉及的图片为部分区域实拍图和美学畅想图,具体内容请以现场公示和合同约定为准;本文部分资料、部分图片来源于网络,如有侵权请联系我们删除。

全部
报名成功
稍后会有专业的置业顾问联系您
返回楼盘

频道导航

返回首页

看房小程序

APP下载

电话拨通后,请您手动拨打分机号

确定拨打电话

电话号码:

分机号:(可能需要拨分机号)