蓝润春风屿湖最新动态-蓝润春风屿湖剩余房源及最新活动优惠

搜狐焦点乐山站

2024-02-24 10:10:00

购房群

买房如何避坑,加入购房群,看看他们怎么说

立即进群

蓝润春风屿湖销售电话:028-64545329(售楼部电话)

蓝润春风屿湖置业顾问电话:13668208612(微信同号)

新年新气象,开工第一天,上一些轻松的内容。最近不少人在咨询购房政策,2024年成都的最新购房政策如何,是否有新变化?于是,小编汇总了成都最新的楼盘介绍, 2024年有买房计划的小伙伴,必须收藏起来!

面积92-124-169-185-200平 现房

车位配比:1.1.7

绿化率:35%

物业费:2.9元/平方米/月

梯户比:2T4户 3T6户

交房时间:清水现房(2022年10月交付)

付款方式:全款/贷款首付三成

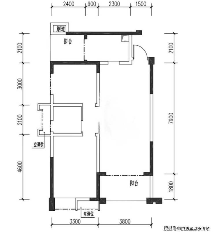
户型图

面积185平米 套四三卫 南北(东北看公园,看江)

面积124平米舒适性套三双卫 朝南

92平米宽敞套二单卫 朝南

92平米宽敞套二单卫

200平米跃层 南北向(东北看公园,看江)

配套信息

交通:地铁5号线。剑南大道、牧华路。

教育:天府一幼、南湖光亚国际幼儿园;天府四小、天府三小、天府新区华阳小学、双流协和小学;天府新区华阳中学、天府四中、成都市实验外国语学校西区

商业:13万方环宇荟一街之隔

医院:天府新区第一人民医院

蓝润春风屿湖销售电话:028-64545329(售楼部电话)

蓝润春风屿湖置业顾问电话:13668208612(微信同号)

免责声明:

以上内容仅作为邀约邀请,涉及的图片为部分区域实拍图和美学畅想图,具体内容请以现场公示和合同约定为准;本文部分资料、部分图片来源于网络,如有侵权请联系我们删除。

全部

相关资讯

报名成功
稍后会有专业的置业顾问联系您
返回楼盘

频道导航

返回首页

看房小程序

APP下载

电话拨通后,请您手动拨打分机号

确定拨打电话

电话号码:

分机号:(可能需要拨分机号)