梓潼宫TOD汀澜优缺点-售楼中心-最新楼盘动态消息

搜狐焦点乐山站

2026-01-13 13:08:00

购房群

买房如何避坑,加入购房群,看看他们怎么说

立即进群

成都 梓潼宫TOD汀澜【营销中心】:028-87777213「销售热线」

【置业顾问】:18613205563「微信同步」

【置业顾问】:19983517822「微信同步」

【项目总平】

【户型鉴赏】

【133㎡户型:套四】

【板式结构】一梯两户,板楼设计,通风效果佳,双面采光。【LDKG】厨房、客厅、餐厅、阳台四个空间融为一体,是真正的LDKG设计。【流线设计,动静分区】休闲娱乐,私密生活,都做到动静分区,老人房远离主卧,让3代人共同生活有良好的私密空间。【港式横厅】餐娱一体,增加与家人相处时光。【超大阳台】约7米面宽大进深阳台,约8.3㎡生活阳台,延伸多样化生活场景,区域内独一无二;【无浪费空间】多数动线纳入客户面积,零浪费空间。

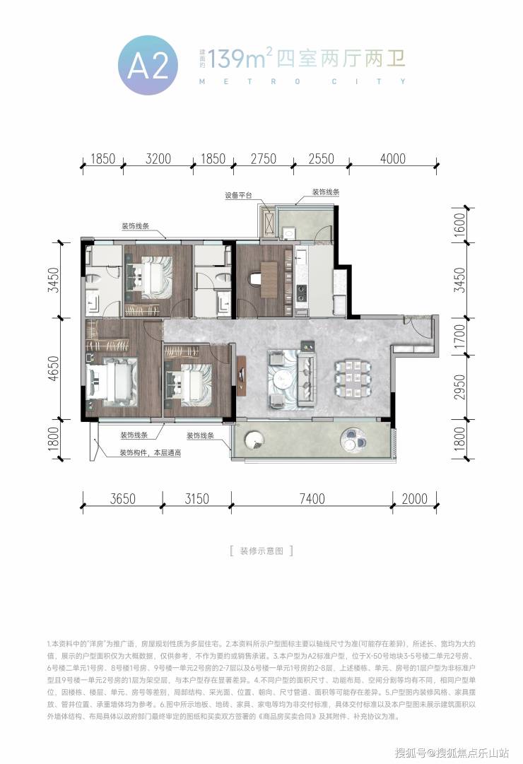
【139㎡户型:套四】

【入户收纳】:私人收纳展示区,区隔忙碌与舒适生活【流线设计,动静分区】:休闲娱乐,私密生活,都做到动静分区,老人房远离主卧,让3代人共同生活有良好的私密空间。【LDKG】LDKG一体化方厅设计,满足对空间多元化的需求。【双阳台】主城内少见贯通式阳台,约7.4M大进深阳台,连接客厅与次卧;双阳台,双面通透,双面采光。【无浪费空间】多数动线纳入客户面积,零浪费空间。

【154㎡户型:套四】

【L型阳台】:L型270°转角阳台,三面观景,一线河湾+园林景观,尽收眼底【端户瞰景】:端房户型,独享阔尺楼间距,保证客厅采光通风均好性,广角瞰景无遮挡,目之所及皆风景【尊享主卧】:约30㎡行政级主卧,阔尺衣帽间,约5.6米开间,私密性强【方正次卧】:3次卧户型方正,开间均达3.3米左右【LDKG 巨幕采光】:约18.9米巨幕采光面,客餐厅+主卧+次卧+生活阳台全部位于采光面

成都 梓潼宫TOD汀澜【营销中心】:028-87777213「销售热线」

【置业顾问】:18613205563「微信同步」

【置业顾问】:19983517822「微信同步」

免责声明:

以上内容仅作为邀约邀请,涉及的图片为部分区域实拍图和美学畅想图,具体内容请以现场公示和合同约定为准;本文部分资料、部分图片来源于网络,如有侵权请联系我们删除。

全部
报名成功
稍后会有专业的置业顾问联系您
返回楼盘

频道导航

返回首页

看房小程序

APP下载

电话拨通后,请您手动拨打分机号

确定拨打电话

电话号码:

分机号:(可能需要拨分机号)