成都 新希望天屹【营销中心】:028-84385818「销售热线」
【置业顾问】:18613205563「微信同步」
【置业顾问】:19983517822「微信同步」
东安湖中央居住区 2.0低密纯居洋房
建面约116-143㎡新派隐逸奢宅
货源充足
✔1#:143㎡(30套)
价格:预计2万/㎡
✔2#:116㎡(40套)
价格:预计2万/㎡

【项目基础信息】
开发商:千亿国企经开发展&先锋民企新希望地产
总占地:44亩
容积率:2.0
物业形态:10栋纯洋房
产品面积:建面约116㎡/143㎡
总层高:10-16F洋房
梯户比:1T2/2T2
绿化率:约35%(不含东干水渠)
交付标准:精装交付
项目地址:龙泉驿区东安街道跨湖路
【项目十大核心亮点】
经开发展/新希望地再联手,第四个作品,交付和品质绝对保障
东安湖中央居住区,核心首熟区,15分钟生活圈
区域唯一在售2.0低密,纯住宅,纯洋房小区
区域唯一下沉式真会所,宝格丽主题
东干水渠滨河绿道穿过小区,双超大中庭园林景观,内外双园
区域唯一独立光厅带梯控入户,比肩新希望D10配置
区域稀缺116㎡1T2户三室两厅两卫户型
区域最大面宽143㎡户型,带入户光厅,超高得房率
区域最高装标,日立中央空调、落地式一体马桶、12套洗碗机
新希望豪宅物业服务一脉相承,保驾护航
【经开发展】一部经开史,半座龙泉城
千亿国企 立足龙泉 服务民生
成都经开发展集团注册资本200亿,资产总规模达2500亿元,全资控股经开国投、经开产投、经开资本、经开置业、经开建工5家二级企业,31家三级企业,深耕龙泉驿、匠心筑大城,为龙泉驿城市发展贡献了重要力量。
【新希望地产】精致绿色,让生活更美好
世界500强品质,城东品质舒居缔造者
新希望集团,2021年荣登世界500强榜单,2023年排名363位。新希望地产为百强房企TOP30,聚焦城市“中高端”住宅产品开发,以天系、锦系享誉全国。于成都龙泉,皇冠湖壹号、锦粼府、锦粼云境、长粼府,以高阶产品力赢得市场的高度认可。
【核心首熟区】东安湖中央居住区,核心首熟区,15分钟生活圈
【商业】约500米龙湖东安天街,约600米新城吾悦广场,约2.5公里万达广场,尽享湖芯醇熟生活圈
【交通】依靠蜀都大道/驿都大道/桃都大道等四横三纵道路网,通达全城;距地铁2号线书房站约800米,远期规划有11、22、25号线
【教育】比邻向阳桥幼儿园/小学/中学、经开区实验中学(教科院领办)、成都市实验小学(和雅校区)、成都市实验小学(和雅校区、乐雅校区)等全龄优质教育资源,板块内更有四川师范大学成龙校区、四川财经职业学院等高等学府
【医疗】半径为4公里范围内,汇集有四川大学华西医院龙泉医院(距项目约1.6km)、成都中医药大学附属医院龙泉医院(距项目约3.5km)、龙泉驿妇幼保健院(距项目约2km)、四川省第三人民医院(距项目约3.9km)等三甲医院
【公园】近邻东安湖公园、驿马河公园、龙泉山城市森林公园,构建优质生活圈
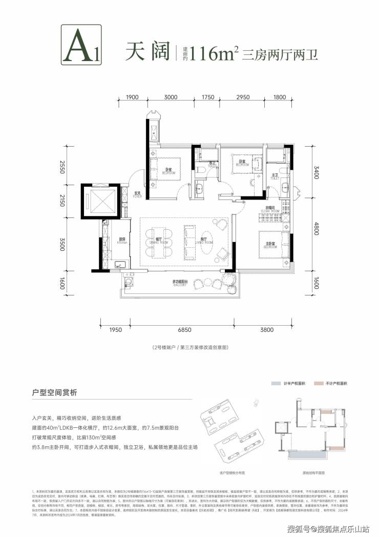
【极质116㎡】横厅三房两厅双卫
目前片区唯一在售120㎡以下洋房产品,超高使用率,婚房最佳选择,全盘仅198套,首开仅30套
A户型 |116 ㎡三房两厅两卫亮点:
1.约12.6m大面宽,全南北朝向
2.约44㎡LDKG一体化横厅
3.约6.85m南向景观阳台
4.约3.8m主卧开间,步入式衣帽间
【越级143㎡】四房两厅双卫
区域最大面宽143㎡产品,光厅入户带梯控,比肩一线豪宅,邻一线河景(部分房源),区域改善首选
B户型 |143㎡四房两厅两卫亮点:
1.全明入户光厅带梯控,比肩一线豪宅
2.约16.2m大面宽,四开间朝南
3.约7.2m超大横厅+阳台
4.约27㎡豪华套房主卧,步入式衣帽间
东安新城,为什么选择经开新希望天屹?
看位置:东安新城是整个龙泉最新、规划最科学、发展最迅速、城市界面最好的核心地段
看配套:15分钟范围内,商场、学校、地铁口、医院、文化、体育、娱乐配套齐全
为什么买天屹:
做别人没有的围合式大中庭花园:
项目分立河流两侧,景观生态资源优质,低建筑密度,突破传统的阵列式布局,打造片区独有的超大中庭花园。内外双园出门皆是绿意。
做别人的没有的会所:
不做架空层会所,而是真正的星级下沉式会所,涵盖健身房、书吧。。。
做别人没有的产品:
只有洋房,没有高层,不做商住混合;可以住洋房何必住高层
做别人没有的户型:
区域最低门槛的板式套三洋房,片区没有,只有天屹有。
区域唯一带梯控的光厅入户花园,天屹真改善。
成都 新希望天屹【营销中心】:028-84385818「销售热线」
【置业顾问】:18613205563「微信同步」
【置业顾问】:19983517822「微信同步」
温馨提示:专业一对一热情服务,为了节约您的等待时间,看房请提前致电预约!!!
免责声明:
以上内容仅作为邀约邀请,涉及的图片为部分区域实拍图和美学畅想图,具体内容请以现场公示和合同约定为准;本文部分资料、部分图片来源于网络,如有侵权请联系我们删除。