【营销中心】:028-87777213「销售热线」
【置业顾问】:18613205563「微信同步」
【置业顾问】:19983517822「微信同步」
温馨提示:专业一对一热情服务,为了节约您的等待时间,看房请提前致电预约!!!
免责声明:
以上内容仅作为邀约邀请,涉及的图片为部分区域实拍图和美学畅想图,具体内容请以现场公示和合同约定为准;本文部分资料、部分图片来源于网络,如有侵权请联系我们删除。
【核心价值】
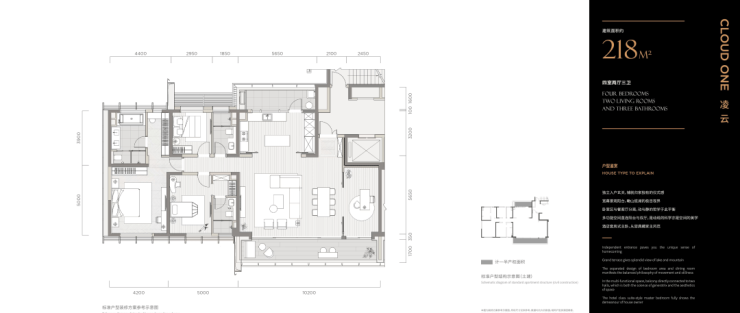
成都东安湖现象级顶豪——恒邦天府·东安湖壹号以180米摩天地标重塑城市天际线,推出181-276㎡全景舱大平层,直线距离东安湖水域仅300米,携手万豪酒店集团打造国际住区,单价1.74万/㎡起抢占湖居制高点。

顶级配置解析
1. 国际大师团队联袂
建筑由新加坡SCDA曾仕乾操刀,设计费投入超5000万
外立面采用全铝板+玻璃幕墙,顶部10米玻璃塔冠
2. 一线临湖生态特权
300米直面东安湖,俯瞰5公里生态绿廊
度假式园林配置镜面水景、世纪白金石材景墙
3. 万豪酒店配套加持
引入万豪高端系列酒店,业主享专属礼宾服务
酒店空中大堂与住宅空中会所无缝衔接
4. 超规格产品设计
181㎡起步全四房格局,最小户型面宽达7.2米
276㎡户型配置9米转角阳台,270°环幕视野
5. 良心精装标准
2999元/㎡装标含:
贝洛克系统门窗
主卧定制柜体
超长线性地漏
全屋空调架空层
6. 准现房销售保障
2025年实景交付,外立面、示范区已呈现
对比期房项目风险更低






【户型鉴赏】






【营销中心】:028-87777213「销售热线」
【置业顾问】:18613205563「微信同步」
【置业顾问】:19983517822「微信同步」
温馨提示:专业一对一热情服务,为了节约您的等待时间,看房请提前致电预约!!!
免责声明:
以上内容仅作为邀约邀请,涉及的图片为部分区域实拍图和美学畅想图,具体内容请以现场公示和合同约定为准;本文部分资料、部分图片来源于网络,如有侵权请联系我们删除。