成都卡地亚湖滨壹号(售楼处)楼盘详情-最新房价|户型|容积率|

搜狐焦点乐山站

2025-10-17 15:14:23

购房群

买房如何避坑,加入购房群,看看他们怎么说

立即进群

成都 卡地亚湖滨壹号【营销中心】:028-87777213「销售热线」

【置业顾问】:18613205563「微信同步」

【置业顾问】:19983517822「微信同步」

虽然成都土拍价格越拍越高,但主城市场卖得好的,还是那些主力总价在400万级的产品。

比如八开八罄的招商锦城序、多次登顶主城销冠的华润置地中环天宸等。

这背后的原因其实很清晰,虽然土拍价格持续走高,但大多数购房者的购买力是没有明显提升的。

对于绝大多数家庭而言,总价400万级就能在主城实现居住的全面迭代,这种吸引力,无疑是精准且难以抗拒的。

通过这些现象级热盘,我们就不难总结出,要想卖的好,控总价+高品质+高舒适度,以上三者缺一不可。

【产品基础信息】

面积及成交价格: 148平米套二:280-330万,168平米套二:350-480万(可变套三),305-310平米:800-1100万 ,630平米1层1户限量定制:1500-2200万,单价1.8-3.5万/平米

物业费:6元,梯户比:3梯1户/3梯2户/3梯4户,奢华空间享受,每一户畅享270—360度全景视野,层高:3.4米-3.9米阔尺空间感,39-45层

【区域】城南黄金左轴C位的“天府怡心湖”板块中心,北承高新区金融城板块,南接天府新区总部商务区,西临航空港自贸区+天府国际生物城

【交通】: TOD多维立体交通主干道剑南大道+五环路: 高新区金融城板块+天府新区中央商务区,5号+19号线双地铁枢纽,直接接驳双机场

【规划+环境+配套】沿湖2.7km湖岸线国际化地标建筑群,建筑、灯光、商业、室内、公园规划等均由全球顶级设计师团队倾力打造!(SCDA,PLD,BIG,WATG,TCDL),1000亩湖滨公园,500亩辽阔湖域景观,,三大商业配套:北岸商业+南岸商业+地铁枢纽商业集群,国际文化艺术新地标:湖滨文化艺术中心,新加坡国宝级设计大师曾仕乾先生设计,双国际五星级酒店配套:凯悦Alila阿丽拉+凯悦尚萃(全球十大酒店管理集团品牌)

独立住区【蔚蓝湖滨1号】新加坡国宝设计大师SooKChan成就时代之作,艺术建筑,公建化建筑立面,经典隽永;

独立住区.静物景观:灵感源自蒙德里安,3栋楼即享私密独立超大中庭静物景观;

国际精装风格公区:每栋楼都拥有星级大堂、独立泳池会所、健身房瑜伽室、咖啡区图书区,足不出户即可满足日常健身、休闲、社交等需求;

国际品质精装配置:斯麦格、杜拉维特、汉斯格雅等国际品牌配置,诠释顶级服务式产品非凡气度,尽享湖滨之畔的国际化生活方式;

【星级服务团队】管家服务:入室保洁、定制洗衣、房屋保养、托管服务、家私皮具及石材地板养护、虫害防治、居室主题布置、宠物植物照料等,星级配套:商务中心服务、恒温游泳、健身中心、大堂吧,定制服务:私人定制家宴、定制派对、会议及宴会服务,代行服务:代租服务、出行预约、鲜花预定等,礼宾及安保服务:湖滨艺术中心VIP服务、酒店预订、物品行李寄存、24小时安保巡逻、叫车服务等

【价值汇总】品牌价值:蔚蓝卡地亚是身份的象征,更是品质的保证;城市价值:全球湖滨城市新名片(业态涵盖星级酒店,企业公馆,写字楼宇,国际艺展中心及国际化湖滨商业);区域价值:城南核心C位、天府怡心湖千亩湖滨公园,收藏稀缺资源;投资价值:高端不动产是财富累积的首选,更是抵御风险的投资利器;

拥有蔚蓝湖滨城,您拥有的不止是一套房而是一座城; 更是拥有国际化生活方式。

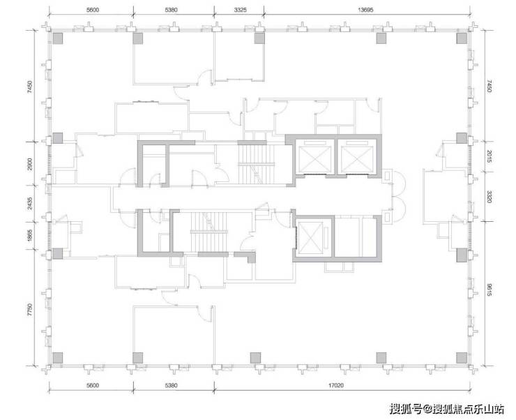
【户型鉴赏】

一户一层,整层630㎡

成都 卡地亚湖滨壹号【营销中心】:028-87777213「销售热线」

【置业顾问】:18613205563「微信同步」

【置业顾问】:19983517822「微信同步」

温馨提示:专业一对一热情服务,为了节约您的等待时间,看房请提前致电预约!!!

免责声明:

以上内容仅作为邀约邀请,涉及的图片为部分区域实拍图和美学畅想图,具体内容请以现场公示和合同约定为准;本文部分资料、部分图片来源于网络,如有侵权请联系我们删除。

全部
报名成功
稍后会有专业的置业顾问联系您
返回楼盘

频道导航

返回首页

看房小程序

APP下载

电话拨通后,请您手动拨打分机号

确定拨打电话

电话号码:

分机号:(可能需要拨分机号)