国际传媒中心(三亚)首页网站丨国际传媒中心(楼盘详情/户型/配套/最新房价

搜狐焦点丽江站

2025-06-16 17:37:00

购房群

买房如何避坑,加入购房群,看看他们怎么说

立即进群

三亚国际传媒中心位于三亚主轴迎宾路,眦邻东岸单元总部经济区,目前已有10家世界500强落子于此。IMC云+总高度约170米的超高地标建筑,涵盖奢享酒店(规划中)、精英俱乐部、阔景平层、城景SOHO、精品沿街商业等多元业态的垂直综合体。

☎售楼处热线:0898-83090009【营销中心】

☎专属销售顾问:13379999860 【微信同步】

★★售楼中心——欢迎来电咨询——线上售楼处★★

预约看房可免费享受海南三天两晚酒店吃住、往返机票

【六大财富价值】

1、三亚CBD新地标

位于汇集碧桂园、中粮、中交、中航、保利等超10家世界500强企业的迎宾路,毗邻东岸单元黄金地段,环伺宇内,商业资源醇熟,CBD壹号资产。正如北京东三环,上海陆家嘴,深圳前海,下一个中国的华尔街将是三亚迎宾路

2、世界500强房企匠心巨筑

由《财富》世界500强房企碧桂园集团匠心筑就。同时己与抖音、今日头条等知名品牌达成初步合作意愿,联手打造互联网文娱企业总部。

3、顶层精英会所垂直城市客厅(规划中)

约170米垂直综合体,树立城市商办新地标。顶层拟打造奢享酒店和精英俱乐部,并配有享城市天际景观的空中泳池,同时约6米秒的高速电梯,约30秒可达顶层,尽享都市繁华。

4、32项专属业主服务定制铂金礼遇

碧桂园物业是2020年中国物业服务百强企业第一名,2020 年中国上市物业服务企业综合实力第一名,打造无优专PT管家,提供32项高端增值服务。

5、紧邻10万方国际免税城

中国自贸港,免税天堂,项目与三亚市内规模最大的免税店 不足约500米的距离。地段影响价值,独特彰显优势。

6、国际知名品牌奥克伍德酒店托管经营

项目毗邻三亚海旅免税城,千古情景区以及大悦城购物中心(建设中)、约3公里到环岛东线高速,约5公里到三亚湾,约6公里到达动车站,多维立体交通,商业资源环伺。地段影响价值,独特彰显优势。自贸港优资产,城央礼臻藏。

碧桂园传媒中心项目周边地图

产品解读

【在售产品—3#楼百变空间】

C户型——66.46㎡

B户型——70.29㎡

A户型——113.17㎡

【在售产品—2#楼云端叠墅】

C户型——43.68/43.70㎡

B户型——106.12㎡

A户型——118.46㎡

【东岸CBD 三亚城市新中芯】

三亚中央商务区是海南自贸港11个重点园区之一,东岸单元作为三亚中央商务区总部经济核心,以“大型消费商圈+总部经济”为引领,全力打造全球总部商务CBD。

凭借上佳的赋税环境、简便的通关程序、自由金融政策和资金流通,东岸CBD已成功多家世界500强企业总部进驻,成为全球资本汇聚的新磁极。

【项目配套】

枢纽之上 多维立体交通

项目位于迎宾路、海螺路、腊尾路三路交汇处,坐拥繁华枢纽,汇聚四通八达交通路线,串连城市脉络,便捷城市生活圈。

距离荔枝沟互通约3公里;

距离三亚湾约5公里;

距离三亚动车站约6公里;

距离凤凰机场约14公里。

天然氧吧 毗邻千亩湿地公园

项目毗邻东岸千亩湿地公园,享受大自然天然氧吧。繁华之中,邻水而居,景致在旁,长青乔木,应时花草,感受在城市繁华之外,动态自然中。

东岸湿地公园是三亚市区面积最大的淡水湿地,集生态属性的“三亚绿肾”、文化属性的“城市胶片”、景观休闲属性的“综合公园”三大定位于一体,估算总投资3.2亿元。

揽尽繁华 生活坐享其“城”

坐拥繁华商业中心,城市生活配套近在咫尺,购物、美食、休闲、商务、医疗、教育等配套醇熟,全方位满足生活所需。

项目自带6981㎡商业配套,精品主题餐厅、精品零售、生活美学、文创体验等,下楼即享都会繁华。

<繁华商业> 阳光金融广场、青春颂、金润阳光、蓝海国际、三亚免税店......

<健康医院>三亚市妇幼保健院、人民医院、农垦医院、三亚市中医院等“三甲医院”......

<文化教育>琼大双语幼儿园、荔枝沟小学、丰和学校、三亚一中、琼州学院、三亚理工学院、三亚热带海洋学院.....

<农贸市场>荔枝沟路南新农贸市场、乐天城购物中心、东岸农贸市场、鸿港批发市场......

【项目概述】

开 发 商 :三亚允达置业有限公司

占地面积:约3.3万㎡

建筑面积:约16万㎡

容 积 率 :3.6

绿 化 率 :35.65%

停 车 位 :1219个(地上200个/地下1019个)

商业配套:约6981㎡商业

产业规划: 2#、3#楼规划中小企业孵化基地

可售楼栋:3#楼(在售)、2#楼(在售)

在售面积:约66-113㎡百变空间(3#楼)

约44-118㎡云端叠墅(2#楼)

交付标准:硬装交付

交付时间:2024年6月-9月

【3#楼户型鉴赏——百变空间】

——C户型约66.46㎡

【3#楼户型鉴赏——百变空间】

——B户型约70.29㎡

【3#楼户型鉴赏——百变空间】

——A户型约113.17㎡

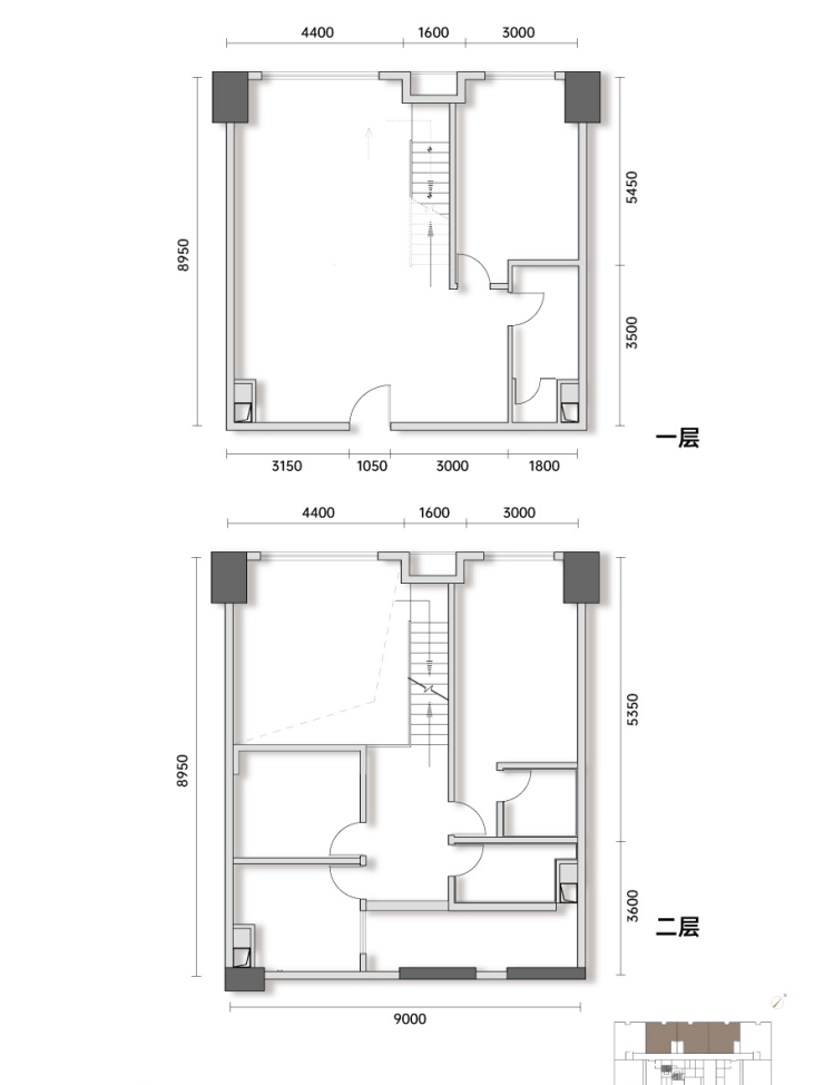
【2#楼户型鉴赏——云端叠墅】

——C户型约43.68/43.70㎡

【2#楼户型鉴赏——云端叠墅】

——B户型约106.12㎡

【2#楼户型鉴赏——云端叠墅】

——A户型约118.46㎡

【3#楼价值】

均带户外露台:每户均带户外露台,空间延伸运用更加自由,美景自然延入,;

户型通透方正:3梯8户,单边廊设计,户户通透,采光通风效果极佳;

共享花园阳台:约30-70㎡共享花园阳台,休闲天地,专属活动空间,工作之余放松身心;

小户型低总价:建面约66-70㎡小户型,具有低总价优势,可置业三亚中央商务区。

【2#楼价值】

买一层享两层:约5.4米阔绰挑高,奢享双层空间,超性价比;

入驻舒适度高:6梯12户,约等于1梯2户,入驻舒适度高;

小户型低总价:建面约44㎡小户型,具有低总价优势。

【项目价值】

硬装准现房:赠送硬装交付,省时省力,准现房,2024年6-9月交付;

社区园区配套:围合式设计,具有独立社区园林,自带双泳池,儿童娱乐、休闲、健康设施;

自带商业配套:拥有6981㎡商业配套,即享一站式商业便捷服务。

☎售楼处热线:0898-83090009【营销中心】

☎专属销售顾问:13379999860 【微信同步】

★★售楼中心——欢迎来电咨询——线上售楼处★★

预约看房可免费享受海南三天两晚酒店吃住、往返机票

全部

相关资讯

报名成功
稍后会有专业的置业顾问联系您
返回楼盘

频道导航

返回首页

看房小程序

APP下载

电话拨通后,请您手动拨打分机号

确定拨打电话

电话号码:

分机号:(可能需要拨分机号)