2025三亚海棠墅度假中心最新发布-海棠墅度假中心欢迎您-海棠墅户型价格+配套

搜狐焦点丽江站

2025-09-07 18:17:00

购房群

买房如何避坑,加入购房群,看看他们怎么说

立即进群

海棠墅 · 国际康养度假中心

三亚海棠湾 低密康养墅

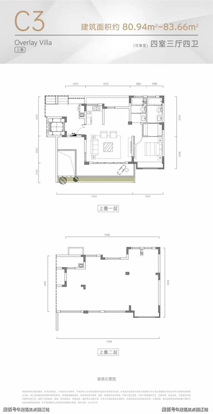
建面约80.94-92.13㎡板式叠拼

售楼处咨询专线:4008682289【售楼中心】

金牌置业顾问:13379996468【微信同步】

★★售楼中心——欢迎来电咨询——线上售楼处★★

预约看房可免费享受海南三天两晚酒店吃住、往返机票

海南岛内免费专车接送看房

【区域优势】

国家海岸——三亚·海棠湾,全国知名“国家海岸”,建设三大国家级品牌:国际顶级品牌滨海酒店带、世界级游艇休闲区、国际级医疗及康养基地;对标迈阿密、黄金海岸等世界滨海度假区,打造代表中国热带滨海旅游新品牌!北纬18°——位居北纬18°黄金度假带,堪比马尔代夫、夏威夷、巴厘岛等颐养度假胜地,海岸线22公里,平均气温25℃,全年日照降雨适中,是海南岛中当之无愧的珍宝之湾。

【交通优势】

海棠墅国际度假康养中心项目择址林旺南路以东,301医院以北,位于海棠湾医疗康养核心区内,与G98高速、两条轨道交通以及数十条公交线路相互连接。距离亚龙湾高铁站约16公里,距离三亚市中心约28公里,距离凤凰机场约35公里。

【景点优势】

风景名胜众多,无尽海岸风光蜈支洲岛5A风景区、后海、妈祖庙、椰子洲岛、南田温泉、亚特兰蒂斯水世界、海昌梦幻海洋不夜城、HELLO KITTY主题乐园(在建中)等。

【医疗优势】

毗邻301医院,鼎级医疗资源荟萃紧邻301解放军总医院海南医院、近享国寿嘉园康复医院、广安门医院(在建中)、恒大妇产医院(在建中)、北大口腔(在建中)等。

【教育】中国人民大学附属中学三亚学校等。

【购物】亚洲最大CDF单体免税店、总建筑约226万方华润超级万象城(规划中)、SKP商场(规划中)等。

【酒店】亚特兰蒂斯、艾迪逊、洲际、威斯汀、香格里拉、华尔道夫、文华东方、四季等35家一线滨海五星级酒店。

海棠墅,全时家庭康养度假目的地

【项目概况】

开发商:四川宏凌集团占地面积:249亩建筑面积:约99000㎡土地出让时间:2016年3月28日交房时间:2023年09月30日容积率:一期0.6绿化率:40%产权年限:40年总楼栋户数:14栋180户(叠拼墅)总层高:4层 (1梯2户)每层层高:1-3层3.6米,4层3.5米朝向:南北通透物业:中海物业物业费:叠拼6元/平/月 独栋别墅11.8元/平/月

【建筑】新地域主义度假风格,寄予海边的诗意取度假风格之精髓,以本土文化为建筑灵魂,保留精巧建筑布局,引入新的秩序,以满足现代的诗意栖居。

【景观】四大花园景观,私藏一处海岛秘境知名景观设计师操刀,打造四大主题花园景观,创造无数种关于各种康养度假的居住意向。雨林秘境云滴花园浮光林屿云漫花园

【社区配套】全能社区配套,全时缤纷度假生活·星级酒店·健康管理中心·亲子乐园·精致餐厅·健身馆

低密社区,天地院墅,收藏美好时光健康颐养——紧邻301解放军医院海南分院,全岛绩优医养资源聚集地

低密纯粹——全板式叠拼、独栋,高阶高知康养社区,使用群体高度纯粹

奢享产品——首批次约80.94-92.13㎡ 叠墅,下叠前后双花园,上叠超大星空露台

缤纷社群——1个专属生活会馆,海棠荟+海棠社2大社群平台,丰富的社群活动

定制服务——联袂中海物业,围绕健康度假定制六大服务体系(共81项),全维度呵护

【项目解读】

海棠墅国际度假康养中心项目二期香榭新品加推,建面约43.67-90.41㎡跃式创界空间、建面约155.22-232.24㎡独栋创界空间,毛坯交付,40年产权年限。

【户型解读】

跃式创界空间户型鉴赏:户型方正朗阔格局,全明通透,约4.5-6米奢阔挑高,超高开阔感,阔绰外摆空间,四维空间自由拓展。

·叠墅--C户型

售楼处咨询专线:4008682289【售楼中心】

金牌置业顾问:13379996468【微信同步】

★★售楼中心——欢迎来电咨询——线上售楼处★★

预约看房可免费享受海南三天两晚酒店吃住、往返机票

海南岛内免费专车接送看房

全部

相关资讯

报名成功
稍后会有专业的置业顾问联系您
返回楼盘

频道导航

返回首页

看房小程序

APP下载

电话拨通后,请您手动拨打分机号

确定拨打电话

电话号码:

分机号:(可能需要拨分机号)