2025重磅上新㊖(海口)观澜湖星光里售楼处电话〢欢迎您〢首页网站〢预约看房〢楼盘配套/位置/户型

搜狐焦点丽江站

2025-06-15 17:36:00

购房群

买房如何避坑,加入购房群,看看他们怎么说

立即进群

海口观澜湖星光里

☆推窗即星光☆家在景区里☆

售楼处咨询专线:0898-65565655【售楼中心】

金牌置业顾问:13379996468【微信同步】

★★售楼中心——欢迎来电咨询〢——匠心钜制恭迎品鉴★★

预约看房可免费享受海南三天两晚酒店吃住、往返机票

海南岛内免费专车接送看房

项目介绍

【开发商】海南观澜湖华谊冯小刚文化旅游实业有限公司

【位置】海口市龙华区羊山大道东侧观澜湖华谊冯小刚电影公社内

【项目名称】观澜湖·星光里(推广案名)

【总占地面积】约1400亩

【总建筑面积】约93万㎡

【容积率】1.2

【洋房层数】6-8层

【洋房套数】324套

【梯户比】1梯2户

【车位比】1:1.2

【产权】70年

区位图

在售:02地块商墅

三期开发,一期J01/D02地块,D02地块1/2号楼

【面积】:161㎡ (露台20-50㎡ )

【挑高】:3.3米

【层高】:3层

【交付标准】:毛坯

【总价】:520-560万

【产权】:40年

付款方式:一次性,按揭,公积金,分期

地块分布图

J01楼栋分布图

J01户型分布图

J01交通分布图

J01楼栋平面图

▼购买观澜湖星光里的十大理由▼

自贸港重点园区,潜力无限

观澜湖14载全新力作,品质保障

世界级旅游目的地

万亩生态绿肺,百亩季节湖

交通轴心,畅达全岛

全龄多维文化教育

三甲医疗服务保障

百年记忆公社,特色文化旅游

海口商业新集群

观澜湖新城

海南华侨中学观澜湖学校

观澜湖双优实验学校

五星级酒店集群

中国足球(南方)训练基地

火山岩高尔夫球场

狂欢水世界

NBA互动体验馆与NBA篮球训练中心

巴萨足球世界

海南省人民医院观澜湖分院

省委省政府的决策部署下,优化省会三级医院,惠及百姓的重点工程,总投资12个亿,占地154亩,设有1000个床位,于2023年12月完工;

海南大学国际校区(建设中)

总投资27个亿,占地约1011亩,海南大学观澜湖校区教学及生活服务设施(一期)项目5月13日动工。该校区主要任务是开展国际合作办学,以旅游教育为重点,为海南自贸港建设培养更多国际化人才。

海南世界新能源汽车体验中心(规划中)

▼项目产品介绍▼

1、洋房立面及装修风格

(现代简约及中式建筑风格)

2、洋房园林效果图

▼洋房户型赏析▼

产品面积:建面约106-130㎡ 板式精装洋房

户型特点:一梯二户、板式设计、南北通透、户型方正、横厅设计、阔大飘窗、宽大景观阳台;

A户型——建面约110-116㎡

B户型——建面约106-110㎡

E户型——建面约120-131㎡

▼联排商业户型鉴赏▼

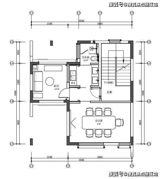
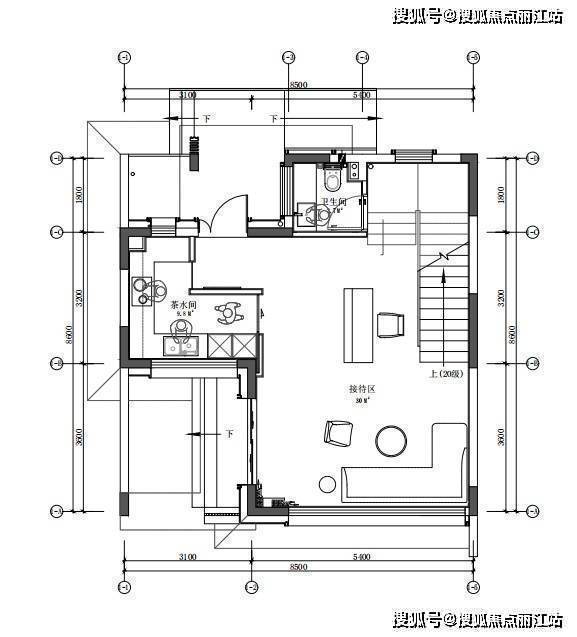
首层▼

二层▼

三层▼

欢迎来电预约

售楼处咨询专线:0898-65565655【售楼中心】

金牌置业顾问:13379996468【微信同步】

让您买的放心,住的舒心

全部

相关资讯

报名成功
稍后会有专业的置业顾问联系您
返回楼盘

频道导航

返回首页

看房小程序

APP下载

电话拨通后,请您手动拨打分机号

确定拨打电话

电话号码:

分机号:(可能需要拨分机号)