海口千江悦东汇网上售楼处---千江悦东汇最新动态-售楼处地址→营销中心电话-户型-线上售楼处

搜狐焦点丽江站

2025-07-08 19:45:00

购房群

买房如何避坑,加入购房群,看看他们怎么说

立即进群

富德千江悦·东汇

千江涌金,潮悦东岸

江东新区 / 南渡江畔 / 千亩欢乐城邦

置业顾问一对一联系 热心服务 专业专心

☎售楼处咨询专线:4008682289【售楼中心】

☎专属金牌置业顾问:13379996468【微信同步】

★★售楼中心——欢迎来电咨询——线上售楼处★★

预约看房可免费享受海南三天两晚酒店吃住、往返机票

项目信息

项目名称:《千江悦•东汇》

项目地址:海口江东新区南渡江东岸

地块名称:2+3期A区(推广名:千江悦.东汇)

开发商:海南富德房地产开发有限公司

占地面积:项目总占地964亩

建筑面积:东汇约289107平方米

容 积 率:1.5

绿 化 率:44%

物业公司 : 富德物业

物业管理费:4.8元/平•月

项目总户数:2030户

小区栋数:24栋

楼层总高:13~15层小高层

交付标准:精装交付

地理位置:江东新区CAZ,南渡江东岸

学校:东岸小学,海师大附中

全新东汇组团——南渡江岸 悦动幸福时光东汇组团以全龄、同享、生活浪漫为设计原点。打造满足全家不同年龄段,不同生活场景的,容积率仅约1.5的滨江生活社区。

[01] 富德集团,潮向安心人居

千江悦项目由香港富德集团实力打造。让每一次居住潮向的迭代,都趋向于更好的空间享受与品质重塑。

早在1992年,富徳就已进入海南房地产市场,秉持以人为本的理念,先后在海口开发了 “海名轩” “海悦轩”等高品质楼盘。在三亚海棠湾,集团投资超过35亿打造了国际五星君悦酒店及君御别墅。2019年7月,富德集团与三亚市、三丽欧集团签署合作协议,共同打造海南首家国际IP主题乐园度假村 -HELLO KITTY主题乐园,预计2024年开园营业。

[02] 潮立江东,盘活未来风口

作为海口未来世界性、品质型、便利化的一站式宜居社区大盘,位于江东新区滨江活力中心CAZ的千江悦项目,整体规划商业约 22 万方,承载着江东新区活跃的南岸商圈,将成为一个兼具生活与发展、教育与医疗全维度覆盖的新商业活力中心。

积聚城市高品位、高净值客群,实现住宅群落、业态和人群的联动,千江悦将以品质住区的丰富和多元业态组合,引领新海口的都会生活方式,盘活这一社区型群落的价值风口。

[03] 立体便捷交通

——5大过江通道/5大城市干道交汇

[04] 醇熟配套,焕启人居生态

千江悦,千江悦项目总占地近千亩,分三期开发,由港企富德地产倾力打造海口百万方江湾宽境低密住区,整体规划有高档住宅、特色商业街等于一体的综合型高尚社区,以高瞻远瞩之姿,用实力和品味构筑当代人居理想。

在教育方面,周边有北师大附中、美舍学校(枫叶国际)、哈罗学校及未来规划的15所中小学或高等院校。

在医疗方面,周边有省中医院及海口妇幼保健院,及未来规划的4所大型综合医院及近10所社区医院;

西边主城区一江之隔,紧邻国兴CBD省政府商圈有博物院,歌剧院,购物有国兴大润发,日月广场等;海瑞桥过去是琼山区政府,双创广场,海口东站枢纽中心,这些都是项目周边5-15分钟的生活圈,20分钟就能去到东海岸旅游度假区,欣赏红树林等高品质的生态美景,也能到美兰国际机场、江东临空产业园等便利的交通和无限的商机。

目前1AB区1D区已全面交付

[05] 园林亮点

千江悦·东汇规划约125000m²园林空间,汲取南渡江元素,打造十大健康生活剧场。营造全龄共享,悠闲日常的度假式私家园林,平衡工作与生活的尺度,形成一座嵌于南渡江带状公园旁的,一片活力、运动、健康的诗意自然。

?【详情请点击图片查看】

[06] 艺术景观设计

以高于城市标准的美学品位勾勒生活肌理,超大体量的社区艺术景观设计,开启海口国际都会人居胜境新篇章,以深耕多年的经验累积,缔造品质入微的时代居所。

无论是并排环抱的楼宇格局,多个动静皆宜的园林及多变公共绿地空间,还是超大室内空间与内园外江盛景的无缝对接,都是为你量身定制的低密舒居宽境社区,舒适实用方正格局,尊重未来人居理念。

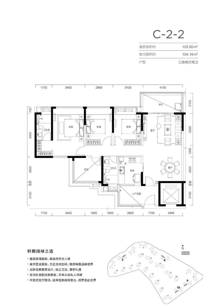
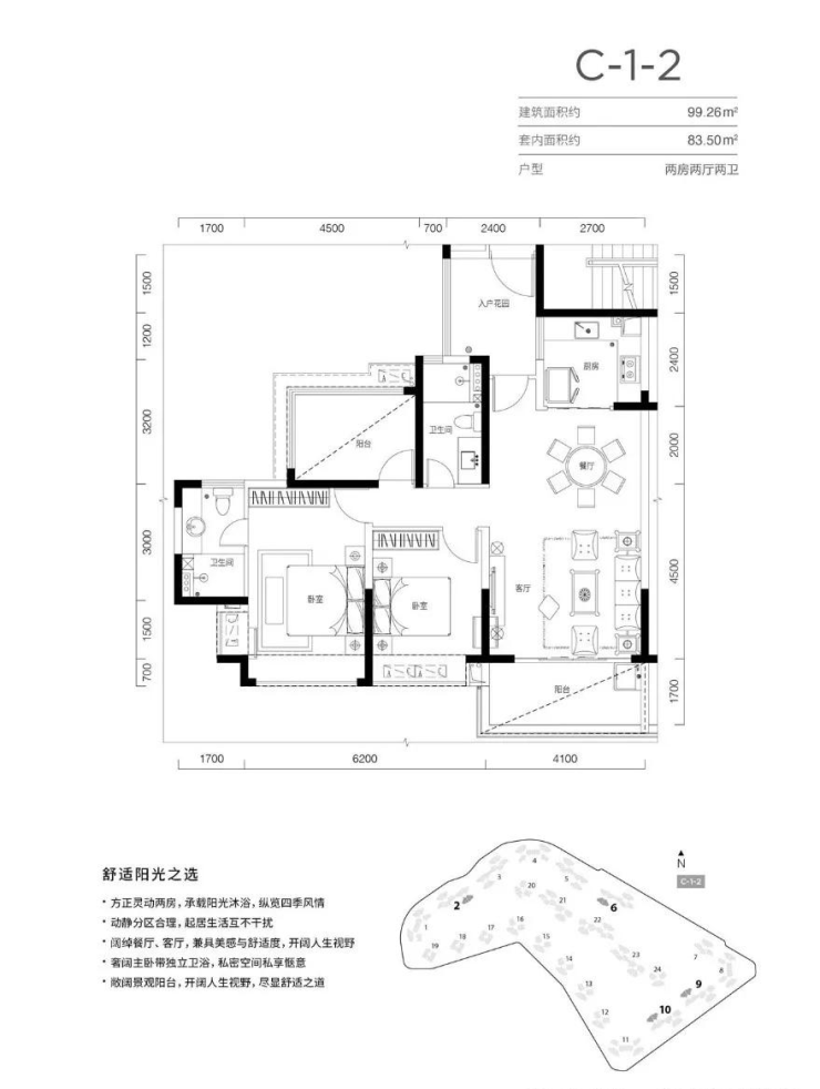
户型图

结语:这里,装得下全家人的美好生活,更装得下金「潮」涌动的创新财富机遇。拥享人居理想高地,吸纳来自世界的客流、物流、资金流等优级要素,跟着城市发展规划去投资,以江东高尚住区、千亩城市江湾大盘的独领优势,开启都会之芯的理想乐活之城。千江悦,撬动未来商业价值的全新蓝图正在展开。

千江悦东汇组团,宏境人居体验

99-126平三房至四房更将为您跃新而来……

置业顾问一对一联系 热心服务 专业专心

☎售楼处咨询专线:4008682289【售楼中心】

☎专属金牌置业顾问:13379996468【微信同步】

★★售楼中心——欢迎来电咨询——线上售楼处★★

预约看房可免费享受海南三天两晚酒店吃住、往返机票

全部

相关资讯

报名成功
稍后会有专业的置业顾问联系您
返回楼盘

频道导航

返回首页

看房小程序

APP下载

电话拨通后,请您手动拨打分机号

确定拨打电话

电话号码:

分机号:(可能需要拨分机号)