2025陵水富力湾香水文华-线上销售/最新配套/最新房价-最新户型图

搜狐焦点丽江站

2025-10-28 19:38:00

购房群

买房如何避坑,加入购房群,看看他们怎么说

立即进群

【海南富力湾香水文华产品资料(开间至二房55-147㎡)】

大三亚香水湾旅游度假区,3200亩醇熟大盘

7000户业主的共同选择。

香水文华售楼处电话☎:0898-83090009【搜狐认证】

香水文华一对一置业顾问☎:13379999860【微信同步】

在售房源丨项目介绍丨最新户型丨周边配套丨详细解答

项目区位图:

香水文华位置:

产品简介:

海南富力湾香水文华,一线亲海,

户户拥享4.2公里一线热带海景资源,

房型有开间至二房,多种房型随心选择。

交房时间:2023年12月30日

交楼标准:精装修

产权年限:40年

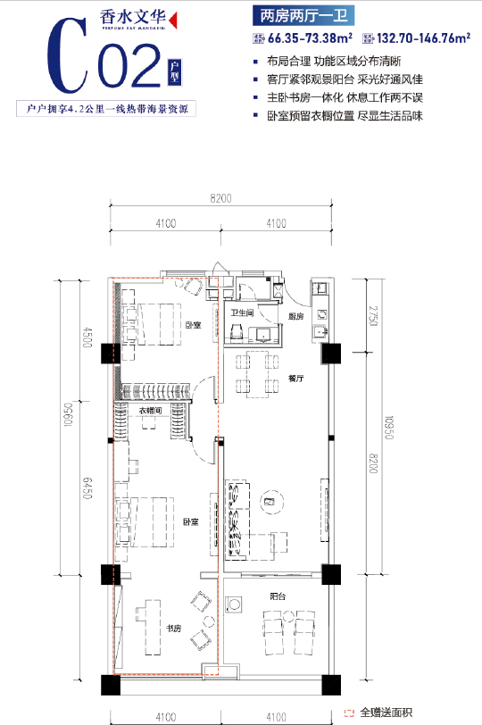
使用面积:55-147 ㎡

总户数:252户

物业管理费:5.68元/㎡/月

户型图:

样板间实景图:

【产品价值点】

土地价值:百米亲海一线无敌海景

产品价值:稀缺55-147㎡开间-二房海景;

赠送价值:大赠送得房率最高400%

景观价值:背山面海全球顶级典藏佳作

商业价值:7500㎡完配式商业 一楼一城

贵族基因:五星级酒店臻品设计传承

配套价值:全景无边际泳池业主专属私享

圈层价值:三大别墅组团顶尖圈层认定;

【项目卖点提炼】

1、北纬18°:全球滨海度假胜地,热带海洋气候,年均温24℃

2、纯熟社区:富力地产13载匠心打造3200亩品质大盘

3、4.2公里:美丽海岸线海水15米能见度

4、南北万豪:超人气湾区两大五星级度假酒店

5、游艇码头:游艇码头、游艇会、游艇4s店、游艇培训基地

6、文体中心:5500㎡豪华文体中心,海边美术馆、综合运动馆、书吧等

7、康悦学院:共开设5大学院,19个兴趣社群班,创建人文精神社区;

项目实景图:

南北万豪酒店:

游艇码头:

海上大数据中心:

最美滨海公路:

激情玩海-风筝冲浪:

激情玩海-水上飞行器:

香水文华售楼处电话☎:0898-83090009【搜狐认证】

香水文华一对一置业顾问☎:13379999860【微信同步】

在售房源丨项目介绍丨最新户型丨周边配套丨详细解答

全部

相关资讯

报名成功
稍后会有专业的置业顾问联系您
返回楼盘

频道导航

返回首页

看房小程序

APP下载

电话拨通后,请您手动拨打分机号

确定拨打电话

电话号码:

分机号:(可能需要拨分机号)