—— 兴隆·依山云锦 ——
十年匠心臻品,度假康养7星品质!
重磅推出叠拼、平墅、洋房、公寓4大系列高品质户型自由选择,独享极致舒适的度假康养体验。
☏售楼部VIP热线:0898-65565655【百度认证】
☏专属置业顾问热线:13379996468【微信同步】
预约登岛活动:1.三天两晚住宿 2.成交报销往返机票
【效果图】
项目概况
总占地:约25716㎡
总建筑面积:约36254.91㎡
容积率:0.91
绿化率:40.38%
建筑密度:22.77%
总户数:270套
总楼栋数: 24栋
停车位:共计205停车位,包含地上车位24个,地下181个(其中普通车位181个,人防车位0个)
车位配比:约1:1
预计交付时间:2025年底
【效果图】
精致园林,绿意环绕

【效果图】
尊贵归家,全程礼遇

【效果图】
生活配套,完备齐全

【效果图】
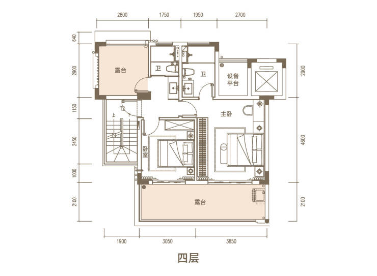
户型鉴赏—3大系列7种高品质户型自由选择
【云锦叠墅(叠拼)】 A1、A2户型
兼具私密性与空间感的双层空间设计
布局精妙,每处空间都畅享自然美景
尊享独一无二的墅级高品质生活体验

【效果图】
A1户型三房两厅三卫:建筑面积约116㎡
叠拼北向入户花园
【效果图】
叠拼南向花园
【效果图】
叠拼北向花园
【效果图】
A2户型三房两厅三卫:建筑面积约134㎡
顶层露台
【效果图】
【依山雅居(洋房、平墅)】B1、B2户型
一流户型,阳光与空气流动完美交融
超大阳台,空间开阔灵动,尽显温馨
超大赠送,幸福演绎无限美好生活
洋房:B1户型两房两厅两卫:建筑面积约101㎡
平墅:B2户型三房两厅两卫:建筑面积约110㎡
平墅样板间


【效果图】
?【锦栾云邸(公寓)】C1、C2、C3户型
户型设计精巧,每处空间都精心打磨
LOFT设计,灵动空间,双重生活体验
三种户型,满足高品质生活的多样选择

【效果图】
C1户型三房两厅两卫:建筑面积约64㎡
C2户型一房两厅两卫:建筑面积约36㎡
C3户型三房两厅两卫:建筑面积约67㎡
LOFT客厅

【效果图】
☏售楼部VIP热线:0898-65565655【百度认证】
☏专属置业顾问热线:13379996468【微信同步】
预约登岛活动:1.三天两晚住宿 2.成交报销往返机票