富德千江悦·东汇
千江涌金,潮悦东岸
江东新区 / 南渡江畔 / 千亩欢乐城邦
置业顾问一对一联系 热心服务 专业专心
☎售楼处咨询专线:0898-65565655【售楼中心】
☎专属金牌置业顾问:13379996468【微信同步】
★★售楼中心——欢迎来电咨询——线上售楼处★★
预约看房可免费享受海南三天两晚酒店吃住、往返机票

项目名称:《千江悦•东汇》
项目地址:海口江东新区南渡江东岸
地块名称:2+3期A区(推广名:千江悦.东汇)
开发商:海南富德房地产开发有限公司
占地面积:项目总占地964亩
建筑面积:东汇约289107平方米
容 积 率:1.5
绿 化 率:44%
物业公司 : 富德物业
物业管理费:4.8元/平•月
项目总户数:2030户
小区栋数:24栋
楼层总高:13~15层小高层
交付标准:精装交付
地理位置:江东新区CAZ,南渡江东岸
学校:东岸小学,海师大附中

全新东汇组团——南渡江岸 悦动幸福时光东汇组团以全龄、同享、生活浪漫为设计原点。打造满足全家不同年龄段,不同生活场景的,容积率仅约1.5的滨江生活社区。

江东新区是国务院部署、2018年6月3日宣布打造的自贸港先行试验区,集全省之重开发区域;成为展示整个海南自由贸易港建设发展的窗口,面向全世界的城市名片。

作为海南未来整体规划最快看到成果的一个地方,创新发展的示范之区,江东新区——这片承载新时代梦想与未来的海南发展热土,以“两年出形象、三年出功能、七年基本成型”为目标,将承接如企业总部、金融机构等高端资源,立足生态之上构建全球未来城市。
同时,更将肩负东盟自贸区桥头堡的重要使命,面向泛南海经济圈,担当重要历史性角色,在强劲有力的“一港双心四组团”规划引领下,交通建设、人才引进、企业入驻、教育医疗等资源优势加速汇聚,正在打造中国向南开放的国际自由创新区,引领生态文明发展的未来花园城市,现已实现良好开局。

正如他们所见,打造世界领潮的CBD和走向世界的先锋之城势在必行,下一个十年,江东新区持有一线城市核心资产的方式也将随之发生转变。

[01] 富德集团,潮向安心人居
千江悦项目由香港富德集团实力打造。让每一次居住潮向的迭代,都趋向于更好的空间享受与品质重塑。
早在1992年,富徳就已进入海南房地产市场,秉持以人为本的理念,先后在海口开发了 “海名轩” “海悦轩”等高品质楼盘。在三亚海棠湾,集团投资超过35亿打造了国际五星君悦酒店及君御别墅。2019年7月,富德集团与三亚市、三丽欧集团签署合作协议,共同打造海南首家国际IP主题乐园度假村 -HELLO KITTY主题乐园,预计2024年开园营业。

[02] 潮立江东,盘活未来风口
作为海口未来世界性、品质型、便利化的一站式宜居社区大盘,位于江东新区滨江活力中心CAZ的千江悦项目,整体规划商业约 22 万方,承载着江东新区活跃的南岸商圈,将成为一个兼具生活与发展、教育与医疗全维度覆盖的新商业活力中心。
积聚城市高品位、高净值客群,实现住宅群落、业态和人群的联动,千江悦将以品质住区的丰富和多元业态组合,引领新海口的都会生活方式,盘活这一社区型群落的价值风口。

[03] 立体便捷交通
——5大过江通道/5大城市干道交汇

[04] 醇熟配套,焕启人居生态
千江悦,千江悦项目总占地近千亩,分三期开发,由港企富德地产倾力打造海口百万方江湾宽境低密住区,整体规划有高档住宅、特色商业街等于一体的综合型高尚社区,以高瞻远瞩之姿,用实力和品味构筑当代人居理想。
在教育方面,周边有北师大附中、美舍学校(枫叶国际)、哈罗学校及未来规划的15所中小学或高等院校。
在医疗方面,周边有省中医院及海口妇幼保健院,及未来规划的4所大型综合医院及近10所社区医院;
西边主城区一江之隔,紧邻国兴CBD省政府商圈有博物院,歌剧院,购物有国兴大润发,日月广场等;海瑞桥过去是琼山区政府,双创广场,海口东站枢纽中心,这些都是项目周边5-15分钟的生活圈,20分钟就能去到东海岸旅游度假区,欣赏红树林等高品质的生态美景,也能到美兰国际机场、江东临空产业园等便利的交通和无限的商机。

目前1AB区1D区已全面交付



[05] 园林亮点
千江悦·东汇规划约125000m²园林空间,汲取南渡江元素,打造十大健康生活剧场。营造全龄共享,悠闲日常的度假式私家园林,平衡工作与生活的尺度,形成一座嵌于南渡江带状公园旁的,一片活力、运动、健康的诗意自然。
?【详情请点击图片查看】




[06] 艺术景观设计
以高于城市标准的美学品位勾勒生活肌理,超大体量的社区艺术景观设计,开启海口国际都会人居胜境新篇章,以深耕多年的经验累积,缔造品质入微的时代居所。
无论是并排环抱的楼宇格局,多个动静皆宜的园林及多变公共绿地空间,还是超大室内空间与内园外江盛景的无缝对接,都是为你量身定制的低密舒居宽境社区,舒适实用方正格局,尊重未来人居理念。
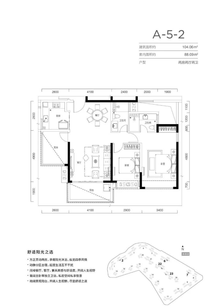
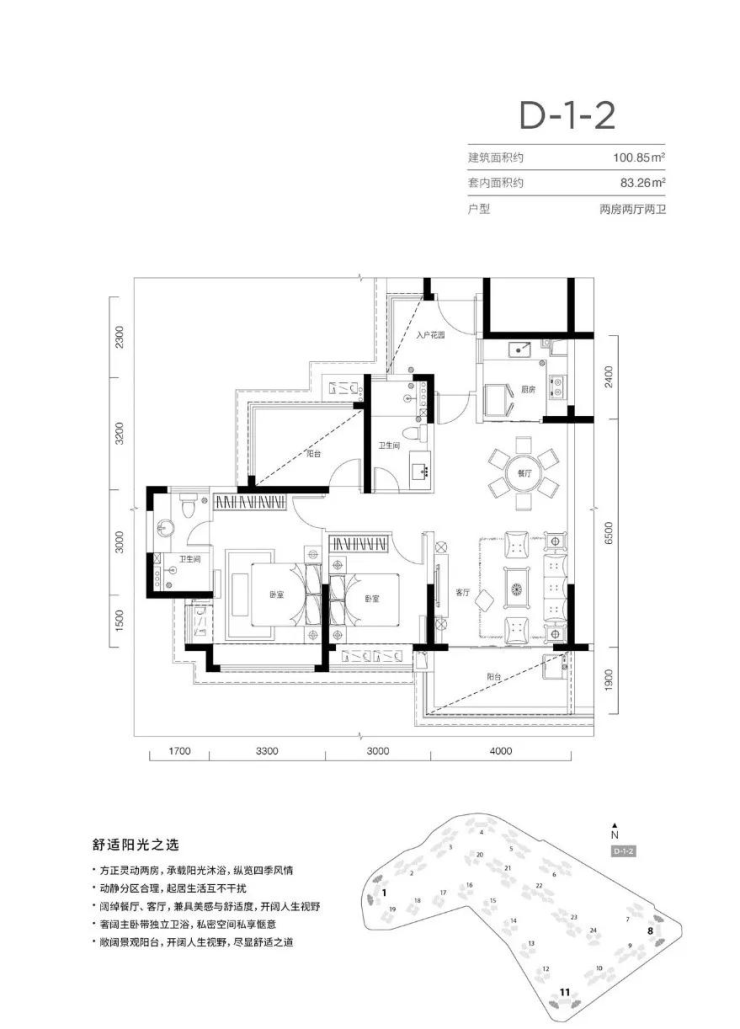
户型图








结语:这里,装得下全家人的美好生活,更装得下金「潮」涌动的创新财富机遇。拥享人居理想高地,吸纳来自世界的客流、物流、资金流等优级要素,跟着城市发展规划去投资,以江东高尚住区、千亩城市江湾大盘的独领优势,开启都会之芯的理想乐活之城。千江悦,撬动未来商业价值的全新蓝图正在展开。

千江悦东汇组团,宏境人居体验
99-126平三房至四房更将为您跃新而来……
置业顾问一对一联系 热心服务 专业专心
☎售楼处咨询专线:0898-65565655【售楼中心】
☎专属金牌置业顾问:13379996468【微信同步】
★★售楼中心——欢迎来电咨询——线上售楼处★★
预约看房可免费享受海南三天两晚酒店吃住、往返机票