三亚-【麓鸣901】
咨询预约看房热线:0898-65565655【售楼中心】
专属置业顾问电话:13379996468(微信同步)
✅提前线上预约可享团购价,额外98折+提前预约可享专车接送
✅ 购房成功可以报销往返机票
自贸港·新绿奢·总部资产
项目地址:三亚市吉阳区海螺南路9号
主要经济指标:
总用地面积:56695.26 ㎡
总建筑面积:约17万 ㎡
容积率:1.8
建筑高度:45米
建筑密度:35%
绿化率:33%
停车位:1052个

以划时代为名,为海罗CLD商务时代开幕
麓鸣901,矗立三亚CBD起步区海罗单元,是三亚CLD的开篇钜作,也是自贸海罗时代开场者新宝盛的时代之作,建筑面积约17万㎡,打造集办公、商务、商业、酒店于一体的自贸港新绿奢总部资产,开创自贸港商办物业新纪元。作为海罗CLD的地标建筑,自贸港国际战略的开篇之作,麓鸣901势将挺拔而出,重塑自贸港商务封面。





双15%政策,自贸港发展的“助推器”
三亚中央商务区,自贸港建设桥头堡
在国家的顶层设计之下,三亚中央商务区将会成为一个超量级的经济磁极,拥有无限广阔的发展空间。目前,三亚CBD入驻企业已经超过2000家。

海罗单元,三亚CLD强大磁场
海罗CLD(中央生活区)犹如一个蕴含巨大能量的“磁场”,依托未来发展规划、绿色生态资源、繁华商业中心、多维便捷路网等优势,进而接收资本外溢,获得人气累积,影响和带动整个三亚的发展。

海/陆/空/轨便捷交通,连接世界通途
海:直线距离三亚凤凰岛国际邮轮港约6公里、三亚港约5公里。
陆:紧邻凤凰路、迎宾路等主干道,地块北面及东面临市政规划道路。
空:直线距离凤凰机场约13公里,为开拓事业版图赢得先机。
轨:直线距离三亚动车站约5公里、亚龙湾动车站约8公里。


融山绿之自然天赋,造山水城市新繁华
麓鸣901是三亚CBD人才后花园海罗片区中轴线上最南端的地块。尊重海罗单元的蓝绿生态本底,背靠海螺岭,三山环绕,与海罗片区商业轴线及三亚城市中心绿廊相对,是难得的北望城市繁华轴线,南面与东西两侧自然山体环绕的绝佳地段。

低密街巷组团缔造精奢商务新排场
麓鸣901总建筑面积约17万㎡,容积率1.8,绿地率33.03%,以低密街巷组团式布局,与山体融合,规划10栋商务办公建筑,楼高仅45米,配置五星级酒店、菁英幼儿园、精奢底商、社区医疗等服务配套,打造自贸港新绿奢商务场。
三轴两心规划格局,见山透绿融山入境
以自然为底,构建充分呼应三亚山水城市有机关系的绿色社区,形成三轴两心的规划结构,建筑形体与自然相互呼应。

LEED+GBL双绿色建筑认证
地标建筑的精魄和文明图腾
麓鸣901不仅遵循GBL(中国绿色建筑标签)绿色建筑国家一星级标准而设计,更是遵循有着“建筑界诺贝尔奖”的美国LEED”绿色认证而建设,为人们提供健康、适用和高效的使用空间,与自然和谐共生。

中庭露天演艺剧场 文化与自然和鸣
露天演艺剧场与建筑院落围合成中心庭院,与艺术长廊、艺术品展示大厅,为文化艺术创作提供碰撞、交流的自然舞台与开放场所,增加园区内的户外交流场所。
负一层多功能报告厅,双首层活力空间
为了最大限度的利用园区内的空间,于中心庭院地下负一层打造多功能报告厅,与下沉式的绿化广场连接,形成一个富有活力的中庭双首层空间,实现产品发布、企业年会、共享会议、艺术品拍卖、水幕影院、科技展示等等功能。
空中花园鲜活有氧,激发无限工作灵感
将绿色引入空中,有效阻隔热源,为商务白领提供一处散心小憩、谈客会晤的好地方。
穿行空中步道,尽享山林美景
二层架空连廊和底层配套营造丰富生活场景,鲜活的企业生态,成就顶尖智慧商务。
多层次共享绿色空间
首层架空层顶层花园,提供良好的入口空间和休憩场所,将绿色引入建筑竖向空间。

LOW-E中空玻璃,国际高端商务典范
外墙采用国际高端写字楼标配材质LOW-E中空玻璃,可有效阻隔日照,降低建筑能耗。
地下二层立体交通,畅通无忧
配备地下二层停车场,共1052个停车位(含300个新能源车位),总车位配比5:1,充分满足泊车需求。

6米挑高大堂,3.6-5.4米标准层高
规划6米挑高大堂,以大气之姿彰显企业风范;标准层高3.6-5.4米,突破常规的尺寸。

配套业态
1#
引进五星级酒店品牌
麓鸣901引进国际五星级酒店品牌,打造超2000㎡全系列功能配套,集特色餐吧、商务宴会厅、会议中心、云厅酒吧、屋顶花园、无界泳池等高档的设施配备于一体,完善全社区需求,同时配合一系列精奢服务,满足高端商务所需。

6#
幼儿园菁英式的童梦时光
是一所充满童趣的精品幼儿园,建面约1215.49㎡,可容纳3班幼儿。以“体验生活,锻造品格”为办园特色,设置室外游乐园、兴趣活动室、社区共享空间等,丰富学龄前儿童的童梦时光。
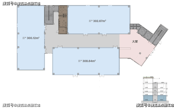
2#
约301-322㎡商务空间
首层6米层高;2-4层3.6米层高;5-9层5.4米层高

3#
约301-322 ㎡商务空间
首层6米层高;2-4层3.6米层高;5-9层5.4米层高

5#
约301-334㎡商务空间
首层6米层高;2-3层3.6米层高;4-7层5.4米层高

7#
约301-334 ㎡商务空间
首层5.4米层高;2-3层3.6米层高;4-5层5.4米层高

8#
约300-302 ㎡商务空间
首层5.4米层高;2-3层3.6米层高;4-5层5.4米层高
9#
约317-322㎡商务空间
首层5.4米层高;2-3层3.6米层高;4-5层5.4米层高

10#
约306-314㎡商务空间
首层5.4米层高;2-3层3.6米层高;4-5层5.4米层高
11#
约307-311㎡商务空间
首层5.4米层高;2-3层3.6米层高;4-5层5.4米层高

欢迎来电预约_
咨询预约看房热线:0898-65565655【售楼中心】
专属置业顾问电话:13379996468(微信同步)
✅提前线上预约可享团购价,额外98折+提前预约可享专车接送
✅ 购房成功可以报销往返机票