2025-㊖海口观澜湖星光里售楼处电话-地址-户型-观澜湖星光里价格-配套-楼盘网站-最新简介

搜狐焦点丽江站

2025-06-28 11:36:00

购房群

买房如何避坑,加入购房群,看看他们怎么说

立即进群

海口观澜湖星光里

☆推窗即星光☆家在景区里☆

售楼处咨询专线:0898-65565655【售楼中心】

金牌置业顾问:13379996468【微信同步】

★★售楼中心——欢迎来电咨询〢——匠心钜制恭迎品鉴★★

预约看房可免费享受海南三天两晚酒店吃住、往返机票

海南岛内免费专车接送看房

项目介绍

【开发商】海南观澜湖华谊冯小刚文化旅游实业有限公司

【位置】海口市龙华区羊山大道东侧观澜湖华谊冯小刚电影公社内

【项目名称】观澜湖·星光里(推广案名)

【总占地面积】约1400亩

【总建筑面积】约93万㎡

【容积率】1.2

【洋房层数】6-8层

【洋房套数】324套

【梯户比】1梯2户

【车位比】1:1.2

【产权】70年

区位图

在售:02地块商墅

三期开发,一期J01/D02地块,D02地块1/2号楼

【面积】:161㎡ (露台20-50㎡ )

【挑高】:3.3米

【层高】:3层

【交付标准】:毛坯

【总价】:520-560万

【产权】:40年

付款方式:一次性,按揭,公积金,分期

地块分布图

J01楼栋分布图

J01户型分布图

J01交通分布图

J01楼栋平面图

▼购买观澜湖星光里的十大理由▼

自贸港重点园区,潜力无限

观澜湖14载全新力作,品质保障

世界级旅游目的地

万亩生态绿肺,百亩季节湖

交通轴心,畅达全岛

全龄多维文化教育

三甲医疗服务保障

百年记忆公社,特色文化旅游

海口商业新集群

观澜湖新城

海南华侨中学观澜湖学校

观澜湖双优实验学校

五星级酒店集群

中国足球(南方)训练基地

火山岩高尔夫球场

狂欢水世界

NBA互动体验馆与NBA篮球训练中心

巴萨足球世界

海南省人民医院观澜湖分院

省委省政府的决策部署下,优化省会三级医院,惠及百姓的重点工程,总投资12个亿,占地154亩,设有1000个床位,于2023年12月完工;

海南大学国际校区(建设中)

总投资27个亿,占地约1011亩,海南大学观澜湖校区教学及生活服务设施(一期)项目5月13日动工。该校区主要任务是开展国际合作办学,以旅游教育为重点,为海南自贸港建设培养更多国际化人才。

海南世界新能源汽车体验中心(规划中)

▼项目产品介绍▼

1、洋房立面及装修风格

(现代简约及中式建筑风格)

2、洋房园林效果图

▼洋房户型赏析▼

产品面积:建面约106-130㎡ 板式精装洋房

户型特点:一梯二户、板式设计、南北通透、户型方正、横厅设计、阔大飘窗、宽大景观阳台;

A户型——建面约110-116㎡

B户型——建面约106-110㎡

E户型——建面约120-131㎡

▼联排商业户型鉴赏▼

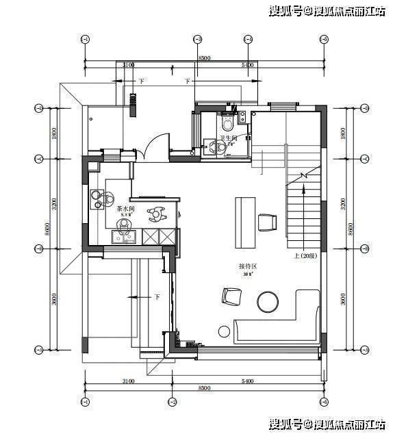
首层▼

二层▼

三层▼

欢迎来电预约

售楼处咨询专线:0898-65565655【售楼中心】

金牌置业顾问:13379996468【微信同步】

让您买的放心,住的舒心

全部
报名成功
稍后会有专业的置业顾问联系您
返回楼盘

频道导航

返回首页

看房小程序

APP下载

电话拨通后,请您手动拨打分机号

确定拨打电话

电话号码:

分机号:(可能需要拨分机号)