三亚铁建海语东岸售楼处电话→铁建海语东岸售楼中心电话→楼盘最新房价→最新解析

搜狐焦点丽江站

2025-08-09 19:26:43

购房群

买房如何避坑,加入购房群,看看他们怎么说

立即进群

【中国铁建·海语东岸】

三亚CBD 城央中心芯资产 旅居新生活

开发商预约看房热线:0898-83090009【售楼中心】

专属置业顾问电话:13379999860 【微信同号】

提前线上预约可享团购价,额外98折+提前预约可享专车接送

购房成功可以报销往返机票

【项目地址】

三亚·中央商务区·东岸中路1号

【项目优势】

海南—世界最大的自由贸易港

1、海南自贸港将成为香港后,不出国门的又一购物天堂。

2、现在已经开业的三亚海棠湾免税店、海口西海岸免税店,已经成为海南购物人群的必去之地

3、2025年实现封关运作后,全岛将成为免税岛,无需去免税店,全岛随意购。

交通便捷 珍藏三亚CBD资产

【交通】项目周边享迎宾路、凤凰路、环岛高速等城市主干道

距三亚凤凰国际机场直线约12公里

距三亚高铁站直线约3.5公里

【项目信息】

中国铁建·海语东岸项目购房服务指南

【区位】三亚东岸CBD 城市中轴资产

中国铁建·海语东岸位于三亚中央商务区东岸CBD单元(三亚中央商务区是海南自贸港11个重点园区中唯一位于城市核心区的园区)

周边汇聚世界500强企业总部、国际一流商业集群,依托世界级空港群/海港/路网/城铁及轨道等多维路网,畅达三亚擎动世界

【配套】都会旅居优择 享受城市繁华

项目位于三亚CBD繁华区域,汇集一座城的优质资源

周边荟萃旅游、商业购物、商务、医疗、生活等各类配套资源。与三座免税城(海旅免税城 /海旅二期/海旅免税奥莱),吃住玩购娱一应俱全

同享繁华配套又享近距离海湾

【社区】都会旅居样本 舒适旅居环境

项目内部配备无边际立体泳池

时尚商业外街、全龄互动花园等配套

同时高标准构筑多元社区

全方位打造安全便捷旅居环境

为您和家人解锁旅居更多美好想象

【产品】爆款品质商办产品 不限购

建面约76-121㎡精装商办产品

小户型低总价,方正通透户型

阔绰景观阳台,舒适空间布局

是板块内少有带独立阳台的优质商办产品

A户型 约76㎡

B1\B2户型 约90㎡

C户型 约92㎡ 两室两厅两卫

D户型 约121㎡

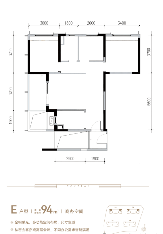
E户型 约94㎡

【服务】国家物业一级资质 定制美好生活每一天

基于项目客群定位,结合前期市场客户调研成果、项目现有规划功能配套,三亚海语东岸将以“管家式服务、旅居无忧”的服务理念,通过品质物业服务+生活运营服务,为三亚海语东岸项目打造符合城市特性、项目属性的专属物业服务体系。除基础服务外,增加16项无偿增值服务及4项特色服务。

开发商预约看房热线:0898-83090009【售楼中心】

专属置业顾问电话:13379999860 【微信同号】

提前线上预约可享团购价,额外98折+提前预约可享专车接送

购房成功可以报销往返机票

全部

相关资讯

报名成功
稍后会有专业的置业顾问联系您
返回楼盘

频道导航

返回首页

看房小程序

APP下载

电话拨通后,请您手动拨打分机号

确定拨打电话

电话号码:

分机号:(可能需要拨分机号)