星宇空间
售楼处咨询专线☎︎:0898-83090009【售楼中心】
金牌置业顾问☎︎:13379999860【微信同步】
★★售楼中心——欢迎来电咨询——线上售楼处★★
预约看房可免费享受海南三天两晚酒店吃住、往返机票
海南岛内免费专车接送看房
空天科技城 投资新领地

项目地址:三亚·红塘湾·中科遥感信息产业园(三亚太空科技馆旁)
开 发 商:三亚中科空天科技城开发建设有限公司
设计公司:中国建筑西北设计研究院有限公司
物业公司:三亚空天物业发展有限公司
总规划占地: 约22.72亩
建筑面积: 约6.53万平方米
其中计容面积: 约3.79万平米
产权年限:40年
总规划:共4栋,7~9层板式高层
总户数:535
容积率:2.5
绿地率:31%
停车位:401
交付标准:精装交付
物业费:待定
交房时间:2025年10月

鸟瞰效果图
星宇空间位于三亚中科遥感信息产业园内,是中科遥感信息产业园的商业生活服务配套项目。三亚中科遥感信息产业园是中国科学院空天信息研究院(由中国科学院电子学研究所、遥感与数字地球研究所、光电研究院整合组建)、海南科技厅和三亚市政府共建的高科技产业园。

区位图
立体交通网络 畅快链接世界
国家干道:项目紧邻G225国道海榆西线,距主城区约12公里
高速公路:G98高速公路(距离天涯互通入口约3.9公里)畅通全岛各市县
轨道交通:海南西环公交旅游化铁路(红塘湾站)、海南环岛高铁(可通过公交旅游化铁路无缝换乘)
国际空港:三亚凤凰国际机场(距离约11公里)
公共交通: 16路、K16路、25路、57路

示意图

示意图
出彩商务旅居资源 享受精彩纷呈生活
购物:天涯小镇各类美食小吃、生活商业配套满足日常生活需求
休闲:三亚红棠湾国际高尔夫俱乐部、三亚肖旗港游艇港、三亚亚沙公园
酒店:三亚红塘湾建国度假酒店、三亚天丽湾凯悦酒店、金莎珺唐酒店
超市:宏健超市(天涯店)、新百惠超市(天涯店)、腾辉易购百货超市(北京城建店)
旅游:天涯海角文化旅游区(4A)、西岛文化旅游区(4A)、南山文化旅游区(5A)、大小洞天文化旅游区(5A)
银行:三亚市农村商业银行(天涯支行)、中国邮政储蓄银行(天涯区营业所)、中国邮政储蓄银行24小时自助银行(天涯区营业所)

三亚天涯小镇

三亚崖城渔港

三亚南山文化旅游区
【教育资源】
小学:红塘小学、三亚市天涯区天涯小学
中学:中央民族大学附中三亚学校、上海外国语大学三亚附属中学、三亚南开学校、三亚市第一中学、三亚市丰和学校

上海外国语大学三亚附属中学
【医疗资源】
天涯区马岭卫生院、哈尔滨医科大学鸿森医院(三甲)、三亚国康医院(三甲)、三亚中心医院(三甲)三亚市人民医院&四川大学华西三亚医院(三甲)、三亚市妇幼保健院(三甲)、崖州湾科技城综合医院(在建三甲)

哈尔滨医科大学鸿森医院
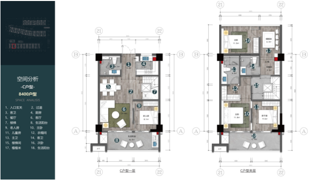
【户型鉴赏】
Aa户型:建筑面积约58㎡,套内面积约90㎡

Ab户型:建筑面积约62㎡,套内面积约94㎡

B户型:建筑面积约54㎡,套内面积约90㎡

C户型:建筑面积约88㎡,套内面积约160㎡

【样板间鉴赏】

客厅效果图

卧室效果图

客厅效果图

入户效果图

客厅效果图

客厅效果图

客厅效果图

客厅效果图

厨卫效果图
#项目6大必买价值#
【品牌价值】
①中科院品牌。中科遥感信息产业园由中国科学院空天信息研究院,海南省科技厅和三亚市政府共同建设的省级高新技术产业园。

【商业价值】
①商业用地属性,决定商业用途功能多样,可自行居住办公、企业会所、俱乐部、民宿运营等
②项目旁的三亚太空科技馆,是海南首家空天科技为主题的科普场馆,市民、游客可以零距离接触三亚空天科技的成果与技术,在这里仰望一座城市的未来。预计运营后人流量达50万\年。

三亚太空科技馆项目位于星宇空间项目旁,由三亚中科遥感信息产业园投资建设,是一座以空天科技为主题,集科普、研学、创新创业孵化为一体的科技类综合体建筑。
【规划价值】
①与三亚湾一并定位为主城区,引领总部经济及中央商务核心功能区,世界级旅游品牌消费和全球化文化艺术旅游、品牌体育赛事旅游消费中心。
②红塘湾是面向国际国内高端市场的综合性高端旅游度假区,其发展方向为“临空经济区”及“国际会展中心”。

【产品价值】
①南北通透板式高层,可瞰纯生态山景、海景
②约6米层高,可创多变空间

公共走廊效果图
【资源价值】
①项目距离红塘湾海边仅约550米,出门步行即享三亚6公里纯粹生态静海湾区

【红利价值】
2025年海南自贸港“封关”在即。岛上居民可享受自贸港红利
①税收:个人所得税最高15%;企业所得税最高15%;
②离岸资产:海南购置的房产,即成为个人“离岸资产”,将享受自贸政策红利;
③自由便利:贸易自由便利、投资自由便利、跨境资金流动自由便利、人员进出自由便利、运输来往自由便利、数据安全有序流动

三亚中央商务区实景
销售热线:0898-83090009【营销中心】
专属置业顾问电话:13379999860(微信同步)
预约登岛活动:
1.三天两晚住宿
2.成交报销往返机票