2025 万宁兴隆依山云锦售楼部电话丨兴隆依山云锦户型图丨兴隆依山云锦项目售楼处电话地址

搜狐焦点丽江站

2025-06-14 18:16:16

购房群

买房如何避坑,加入购房群,看看他们怎么说

立即进群

—— 兴隆·依山云锦 ——

十年匠心臻品,度假康养7星品质!

楼盘地址:

海南万宁 兴隆·依山云锦,十年匠心打磨,坐落于自然与人文和谐交融的兴隆华侨旅游经济区,拥抱山、海、湖、林、溪、岛6大自然稀缺资源:依山而居,享负氧离子浓度高达8万+的天然氧吧;近海而立,咫尺海南‘最美海湾’石梅湾。

重磅推出叠拼、平墅、洋房、公寓4大系列高品质户型自由选择,独享极致舒适的度假康养体验。

☏售楼部VIP热线:0898-65565655【欢迎致电】

☏专属置业顾问热线:13379996468【微信同步】

预约登岛活动:1.三天两晚住宿 2.成交报销往返机票

【效果图】

项目概况

总占地:约25716㎡

总建筑面积:约36254.91㎡

容积率:0.91

绿化率:40.38%

建筑密度:22.77%

总户数:270套

总楼栋数: 24栋

停车位:共计205停车位,包含地上车位24个,地下181个(其中普通车位181个,人防车位0个)

车位配比:约1:1

预计交付时间:2025年底

【效果图】

精致园林,绿意环绕

【效果图】

尊贵归家,全程礼遇

【效果图】

生活配套,完备齐全

【效果图】

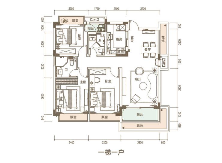
户型鉴赏—3大系列7种高品质户型自由选择

【云锦叠墅(叠拼)】 A1、A2户型

兼具私密性与空间感的双层空间设计

布局精妙,每处空间都畅享自然美景

尊享独一无二的墅级高品质生活体验

【效果图】

A1户型三房两厅三卫:建筑面积约116㎡

叠拼北向入户花园

【效果图】

叠拼南向花园

【效果图】

叠拼北向花园

【效果图】

A2户型三房两厅三卫:建筑面积约134㎡

顶层露台

【效果图】

?【依山雅居(洋房、平墅)】B1、B2户型

一流户型,阳光与空气流动完美交融

超大阳台,空间开阔灵动,尽显温馨

超大赠送,幸福演绎无限美好生活

洋房:B1户型两房两厅两卫:建筑面积约101㎡

平墅:B2户型三房两厅两卫:建筑面积约110㎡

平墅样板间

【效果图】

?【锦栾云邸(公寓)】C1、C2、C3户型

户型设计精巧,每处空间都精心打磨

LOFT设计,灵动空间,双重生活体验

三种户型,满足高品质生活的多样选择

【效果图】

C1户型三房两厅两卫:建筑面积约64㎡

C2户型一房两厅两卫:建筑面积约36㎡

C3户型三房两厅两卫:建筑面积约67㎡

LOFT客厅

【效果图】

☏售楼部VIP热线:0898-65565655【欢迎致电】

☏专属置业顾问热线:13379996468【微信同步】

预约登岛活动:1.三天两晚住宿 2.成交报销往返机票

全部

相关资讯

报名成功
稍后会有专业的置业顾问联系您
返回楼盘

频道导航

返回首页

看房小程序

APP下载

电话拨通后,请您手动拨打分机号

确定拨打电话

电话号码:

分机号:(可能需要拨分机号)