三亚天骄海棠湾区位优势、交通、周边配套、户型图详情

搜狐焦点丽江站

2024-03-16 13:29:16

购房群

买房如何避坑,加入购房群,看看他们怎么说

立即进群

三亚-【天骄海棠湾】

售楼处咨询专线:0898-83090009【售楼中心】

金牌置业顾问:13379996468【微信同步】

★★售楼中心——欢迎来电咨询〢——匠心钜制恭迎品鉴★★

预约看房可免费享受海南三天两晚酒店吃住、往返机票

海南岛内免费专车接送看房

三亚天骄海棠湾坐落于海棠湾度假区,位于三亚南田温泉热带风情旅游城,规划建设804户,公共部分带装修交房,绿化率42%,总占地面积约85亩,建筑面积约9.9万㎡,项目由1栋酒店,6栋住宅楼,15栋别墅组成。项目周边有三亚免税城、海昌梦幻不夜城、301医院、、甘什岭高尔夫球场,神泉高尔夫球场等醇熟度假配套。

【区位优势】天骄海棠湾坐落于国家海岸海棠湾国际度假区,项目距离市区约35公里,距离凤凰机场约40公里,与蜈支洲岛隔海相望,南距亚龙湾19公里,西至天涯海角30公里,并紧靠国道海榆东线交通便利。

【配套优势】项目内配有1000园林泳池儿童泳池(带有恒温系统,通过加热设备处理,适合人体温度)、九个户外温泉泡池、希尔顿欢朋酒店,200间客房及管家式服务、会所、健身房、棋牌室、超市,业主餐厅等配套。周边有三亚免税城、海昌梦幻不夜城、301医院、、甘什岭高尔夫球场,神泉高尔夫球场等醇熟度假配套。

【基本情况】

项目地址:海南省三亚市海棠湾镇南田大道珠江温泉酒店南

开 发 商:三亚伟奇投资有限公司

物业公司:自持物业

物业类型:住宅 · 公寓 · 别墅

容 积 率:1.2

产权年限:70年

绿 化 率:42%

规划户数:804户

车位情况:862个

规划面积:56666.67平方

建筑面积:99000平方

总栋数:22栋

【产品介绍】

产品户型:43平开间

63平两房

65平两房

86平三房

别墅:160㎡5房3厅4卫(可自行改8房,实得400㎡左右,加庭院500㎡左右 )

【户型鉴赏】

K1户型:43平米1房

K2户型:63平米2房

K3户型:86平米3房2卫

A户型:65平米2房1卫

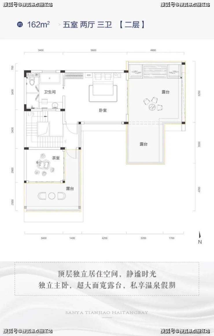
D户型:160平别墅5房3厅4卫,可改8房实得400平算庭院500平

预约专线:0898-83090009【售楼中心】

专属置业顾问电话:13379996468【微信同步】

看房提前1天预约可尊享内部专享特惠,价格包您满意!

专业楼盘内场销售接待服务,让您买的放心,住的舒心

购房成功可以报销往返机票

全部

相关资讯

报名成功
稍后会有专业的置业顾问联系您
返回楼盘

频道导航

返回首页

看房小程序

APP下载

电话拨通后,请您手动拨打分机号

确定拨打电话

电话号码:

分机号:(可能需要拨分机号)