海口雅居乐中心丨营销中心位置丨小区环境丨最新房价详情

搜狐焦点丽江站

2024-03-18 22:53:33

购房群

买房如何避坑,加入购房群,看看他们怎么说

立即进群

【雅居乐中心,立时代之心】

-全球滨水商务·艺术活力街区-

售楼处咨询专线:0898-65565655【售楼中心】

金牌置业顾问:13379999860【微信同步】

预约看房可免费享受海南三天两晚酒店吃住、往返机票

岛内专车接送

开发商:雅居乐集团

物业公司:雅居乐集团物业

项目占地面积:55亩

项目建筑面积:9万㎡

约9万平方滨水商业综合体,以生态焕新城市想象

开盘时间:2021年5月

交房时间:2022年10月

(商务是写字楼)商务面积:约4.63万㎡

(商业是商铺)商业面积:约4.73万㎡

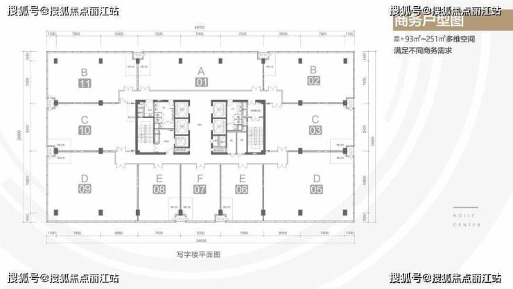
产品信息

写字楼:楼栋A栋16层,B栋18层(在售)

面积;92-253平,挑高4.2米,5梯10户

均价:22000~25000(毛坯刷白)

01号198㎡,02/11号180㎡,

03/10号-175㎡,05/09号-252㎡,

06/08号-102㎡,07号/93㎡

产品信息北区商铺:

海口沉浸式公园商业综合体

面积:约62-1888㎡灵活空间,铺铺临河临街

北区商铺:

一楼均价4.5万/㎡,层高6米;

二楼均价3.2万/㎡,层高4.5米;

三楼均价2.2万/㎡,层高4.5米;

商铺不反租

物业费8-12.5元/㎡/月

南区写字楼:

B座,五梯10户(层高1楼10.5米,2/3楼4.5米,4楼以上4.2米)

01号198㎡,02/11号180㎡,

03/10号-175㎡,05/09号-252㎡,

06/08号-102㎡,07号/93㎡。

物业费8-12.5元/

容积率:2.5 绿地率:15%

物业费:18~28元/㎡

水电费:水/5.12元 电/1.6元

必买的理由:

【6大独一无二规划亮点】

是艺术*伍兹贝格经典之作

是独特*公园/商业/商务 循环共生

是美丽*中央IP楼梯 城心艺术地标

是耀眼*建筑美学-如河浪般熠熠生辉

是生态*花园式企业总部

是有趣*沉浸式公园商业

【八大价值点,成就资产前景】

1.傲立国兴CBD,享五心合一资源

国兴片区,被誉为国际旅游岛中央商务区,政治/经济/文化/人气/商圈中心,约30万常驻人口,天赋贵地,前景无限。

2.以公园引导开发,构建多维度综合体

公园/商业/商务融合共生,三位合一,形成良性互动循环。

3.一轴三区一心,公园沉浸式商业

〔一轴〕

以一条主轴线联动不同区域,将游逛公园与商业经营完美融合。

〔三区〕 以三大艺术主题景观、活力开放空间,点缀滨水商业景观节点。

[图片]

〔一心〕 中央ip楼梯,整个商业的灵魂焦点,海口极具潮流艺术的打卡地。

4、携手伍兹贝格,筑艺术经典特邀全球十大建筑设计事务所、苹果集团御用建筑设计单位,世界大师操刀,以全球艺术视野,绘就时代作品。

5.无可取代的艺术美学,赋予建筑想象《 钻石建筑IP,熠熠生辉》《层层波浪退台式商业》《 河浪般粼粼耀眼的玻璃幕墙》

6、5A智能体系,赋能商务产品应用物联网、云计算、大数据、人工智能等技术,建设以人为本的智慧楼宇。AR技术覆盖楼宇,智能机器人贴心服务,带来高效便捷的智慧商务体验。

7.合作伙伴ATLAS寰图意向入驻国内领先的写字楼全链条运营商,率先以“星级酒店”标准运营写字楼,助力资产价值提升。提供会议、餐饮、健身、金融、商务、休闲的高品质写字楼全生态体系,重塑办公需求。通过四大业务板块——共享办公、商业管理、物业管理及建设管理,帮助写字楼实现资产价值最大化。布局二十四个国内一线城市顶尖写字楼,其成功案例的资产增值比率最高约达50%。

8.寰悦广场加持,统一招商管理引入知名商业运营方-寰悦广场,对整体商业统一进行〈国际、国内知名大品牌的招商运营管理〉,共享共荣。

〔一线品牌意向洽谈,共享财富盛宴〕

目前雅居乐中心已经提前启动招商,包括4层影院已在洽谈引进。

超市品牌将在国内一/二线品牌中挑选。

多家知名品牌商家与雅居乐中心达成了战略合作意向(肯德基、麦当劳、星巴克、盒马生鲜等国际品牌),商业前景可观。

驾车至项目周边配套:

约10分钟到达江东新区

约20分钟到市政府

约25分钟到达机场

约15分钟到达动车站

约10分钟到达海秀,国贸,明珠商圈

项目区位图

项目户型图

写字楼

商铺

欢迎来电预约_

品鉴专线:0898-65565655【售楼中心】

专属海南房产置业顾问接待!海南岛内免费专车接送

13379999860【微信同步】

让您买的放心,住的舒心

全部

相关资讯

报名成功
稍后会有专业的置业顾问联系您
返回楼盘

频道导航

返回首页

看房小程序

APP下载

电话拨通后,请您手动拨打分机号

确定拨打电话

电话号码:

分机号:(可能需要拨分机号)