海南富力湾香水文华产品资料
大三亚香水湾旅游度假区,3200亩醇熟大盘
1.7万㎡滨海商业街,
200亩私家游艇码头、海上运动基地;
约8000㎡码头商业街、万豪酒店等高端配套,
7000户业主的共同选择。
项目区位图:

香水文华位置:

产品简介:
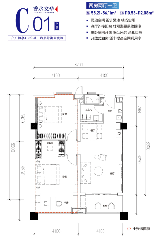
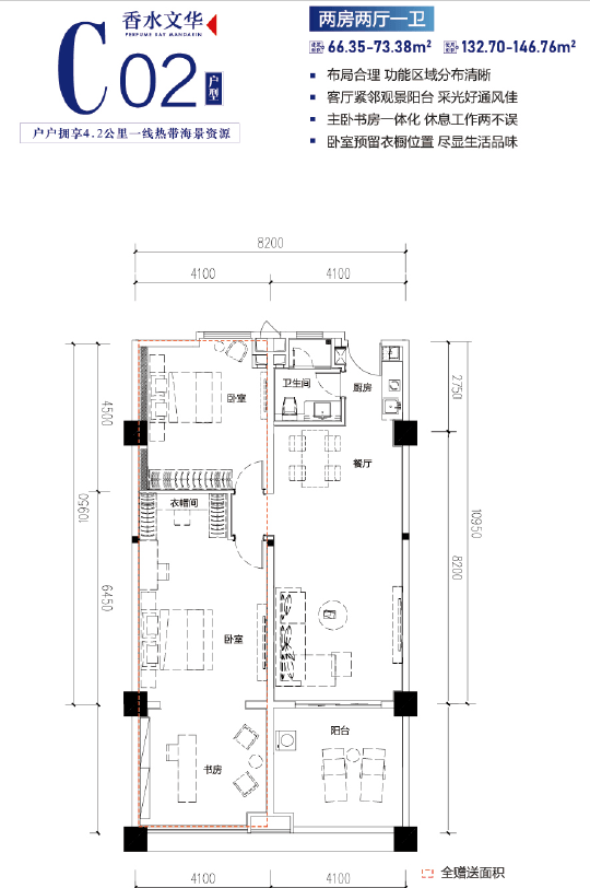
海南富力湾香水文华,一线亲海,
户户拥享4.2公里一线热带海景资源,
房型有开间至二房,多种房型随心选择。
交房时间:2023年12月30日
交楼标准:精装修
产权年限:40年
使用面积:55-147 ㎡
总户数:252户
物业管理费:5.68元/㎡/月
☎售楼处咨询专线:0898-66599661【售楼中心】
☎专属金牌置业顾问:133 7999 6468【微信同步】
★★售楼中心——欢迎来电咨询——线上售楼处★★
户型图:



样板间实景图:



【产品价值点】
土地价值:百米亲海一线无敌海景
产品价值:稀缺55-147㎡开间-二房海景;
赠送价值:大赠送得房率最高400%
景观价值:背山面海全球顶级典藏佳作
商业价值:7500㎡完配式商业 一楼一城
贵族基因:五星级酒店臻品设计传承
配套价值:全景无边际泳池业主专属私享
圈层价值:三大别墅组团顶尖圈层认定;
【项目卖点提炼】
1、北纬18°:全球滨海度假胜地,热带海洋气候,年均温24℃
2、纯熟社区:富力地产13载匠心打造3200亩品质大盘
3、4.2公里:美丽海岸线海水15米能见度
4、南北万豪:超人气湾区两大五星级度假酒店
5、游艇码头:游艇码头、游艇会、游艇4s店、游艇培训基地
6、文体中心:5500㎡豪华文体中心,海边美术馆、综合运动馆、书吧等
7、康悦学院:共开设5大学院,19个兴趣社群班,创建人文精神社区;
项目实景图:


南北万豪酒店:

游艇码头:

海上大数据中心:

最美滨海公路:

激情玩海-风筝冲浪:

激情玩海-水上飞行器:
☎售楼处咨询专线:0898-66599661【售楼中心】
☎专属金牌置业顾问:133 7999 6468【微信同步】
★★售楼中心——欢迎来电咨询——线上售楼处★★
预约看房可免费享受海南三天两晚酒店吃住、往返机票
