最新-武汉城建·承宁府售楼处400电话 | 楼盘详情丨项目介绍丨最新房源丨周边配套

丽水楼市

2025-10-13 21:31:12

购房群

买房如何避坑,加入购房群,看看他们怎么说

立即进群

武汉城建·承宁府

售楼处电话TEL:400-8787-098转接6666【营销中心】售楼处电话TEL:400-8787-098转接6666【已认证】

温馨提示:售楼中心〢预约可享内部优惠〢匠心钜制-恭迎品鉴〢 在售户型图丨项目介绍丨最新特价房源丨周边配套丨开发商售楼处电话

【项目位置】硚口区武胜路与京汉大道交汇处

【产权年限】70年

【交房标准】精装

【总占地面积】约3.24万方

【总建筑面积】约11.19万方

【绿地率】尚未公开

【容积率】2.5

【总户数】546户

【车位数量】593个

【车位比例】1:1.09

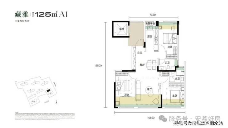
【户型】115-125㎡ 三房

【物业费】尚未公开

【物业公司】尚未公开

区位优势

项目区位图

项目位于项目位于硚口区汉正街板块,紧邻内环线,妥妥的武汉核心位置。

交通

自驾:项目出来就是航空路立交,纵横汉口中心;京汉大道、解放大道和利济北路的主轴动脉交汇的立体式交通,极速出行;鹦鹉大道则可直达汉阳。

地铁:项目距离地铁1号线利济北路站约200米,距离地铁2号线中山公园站约800米。

路网示意图(图源网络)

景观

项目到中山公园直线距离约600米,周边还有硚口公园。

中山公园实拍图(图源网络)

学校

项目周边有崇仁路小学、同济附小、武汉市十一初、同济附中、武汉市十一中、武汉外国语学校等全龄段优教。

武汉外国语学校高中部实拍图(图源网络)

商圈

项目到K11直线距离约100多米,到国际广场直线距离约300多米,到恒隆广场直线距离约400多米。

K11实拍图(图源网络)

医疗

项目到同济医院直线距离约400米,到协和医院直线距离约1公里,周边还有武汉市第一医院、武汉市第三人民医院、武汉市第四医院等优质医疗资源。

同济医院实拍图(图源网络)

产品亮点

效果图

约2.5容积率,首开楼栋最高约98%综合得房率,中心罕有的低密住区,社区整体抬高近1米,楼栋整体退让约21米,柔化城市界面,打造尺度宜人的商业街“漫街”。

效果图

酒店式环岛落客区,超70米东方豪门,集萃知足厅、玉带石桥、落差超5米瀑布等景观,选取名山原石,营造立体山水韵味,全楼栋皆以风雨连廊串联,廊中有景,眼中有画,归家有趣,无论晴雨出入从容。

效果图

对标安缦度假酒店,打造约1800m²下沉式会所,奢配标准四泳道恒温泳池、健身房、棋牌室、私宴厅、书吧、咖啡吧六大酒店式雅奢场景。

效果图

新风、中央空调、地暖三大奢宅标配,全屋配备智能家居系统,臻选日系、德系等世界一流的精工品牌。

户型鉴赏

武汉城建·承宁府

售楼处电话TEL:400-8787-098转接6666【营销中心】售楼处电话TEL:400-8787-098转接6666【已认证】

温馨提示:售楼中心〢预约可享内部优惠〢匠心钜制-恭迎品鉴〢 在售户型图丨项目介绍丨最新特价房源丨周边配套丨开发商售楼处电话

全部

相关资讯

报名成功
稍后会有专业的置业顾问联系您
返回楼盘

频道导航

返回首页

看房小程序

APP下载

电话拨通后,请您手动拨打分机号

确定拨打电话

电话号码:

分机号:(可能需要拨分机号)